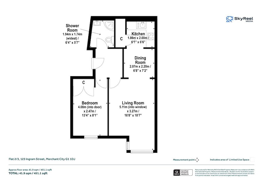
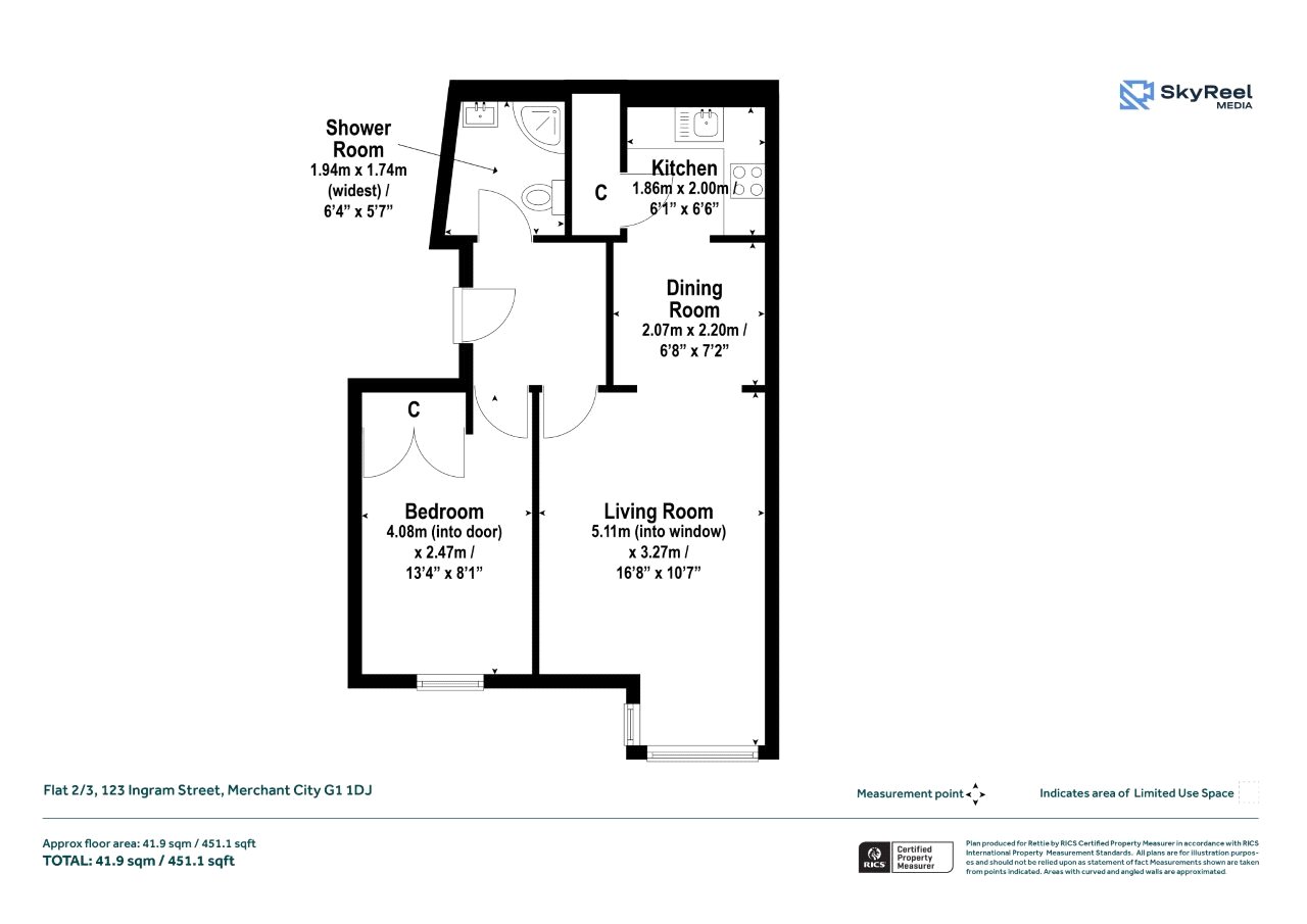
Flat 2/3, 123 Ingram Street, Merchant City, Glasgow City, G1 1DJ
Offers Over £149,000
Upper Floor Apartment
1 Bedroom
1 Bathroom
1 Reception Room
484 sq.ft
Communal Garden
On Street/Permit
Property Description
This modernised one-bedroom apartment occupies a second-floor position within a landmark ‘B’ listed sandstone building originally designed by Robert Billings and built in a Baronial style in 1854 as a department store the building was converted to residential apartments in the 1980’s and benefit from lovely residents enclosed courtyard gardens to the rear and access to Glasgow City Council’s Residents Parking Permit. The property is situated on Ingram Street and is exceptionally well placed to take advantage of an enviable selection of local amenities including excellent bars and restaurants, every day and leisure shopping and excellent transport links and recently set up with access to Hyperoptic Full Fibre Broadband.
Accessed via secure entry to communal stair, the entrance hallway has recently been redecorated and is freshly presented with new carpets. The interior is well presented and is of comfortable proportions with notable highlights including a living/dining/kitchen spanning almost 30 ft into the window alcove and features re-fitted kitchen with integrated appliances and store cupboard, double bedroom with fitted wardrobes and a stylish re-fitted shower room. In addition, there is excellent natural light provided by the tall windows in the living room/dining room. The property has double glazing with views over the courtyard away from street noise and electric heating.
Situation
This stylish apartment is situated in the heart of the Merchant Centre where there is an outstanding selection of shops nearby on Buchanan Street and Argyle Street together with a wonderful choice of restaurants and bars. Transport links are on the doorstep via bus and by rail at both Queen St Station and Glasgow Central Station are within a few minutes’ walk. There are a number of local hospitals nearby and the property is also well placed for road links including the M8 motorway network
Travel Directions
On foot from George Square head south onto South Frederick Street towards Ingram Street. At the traffic lights turn left onto Ingram Street and head east towards the junction with Montrose Street where you will find the entrance to No.123 is along on the right-hand side opposite Tinderbox Café.
More Details
Situation: Communal Garden
Council Tax Band: C
Tenure: Freehold
Your home may be repossessed if you do not keep up repayments on your mortgage. There may be a fee for mortgage advice. The actual amount you pay will depend upon your circumstances.
Similar Properties
Looking To Sell Or Let?
Rettie is one of the most trusted and well-respected names in property. Our unrivalled market knowledge helps people from around the world buy, sell, let and develop property in Scotland and the North East of England - from city apartments and rural cottages to large townhouses and prime country homes, farms and estates. We deal with some of the most prestigious properties on the market, but provide the same exceptional standards of service and value for money to all our clients.
