Property Description
An exceptional and rarely available main door double-fronted apartment in a prime location.
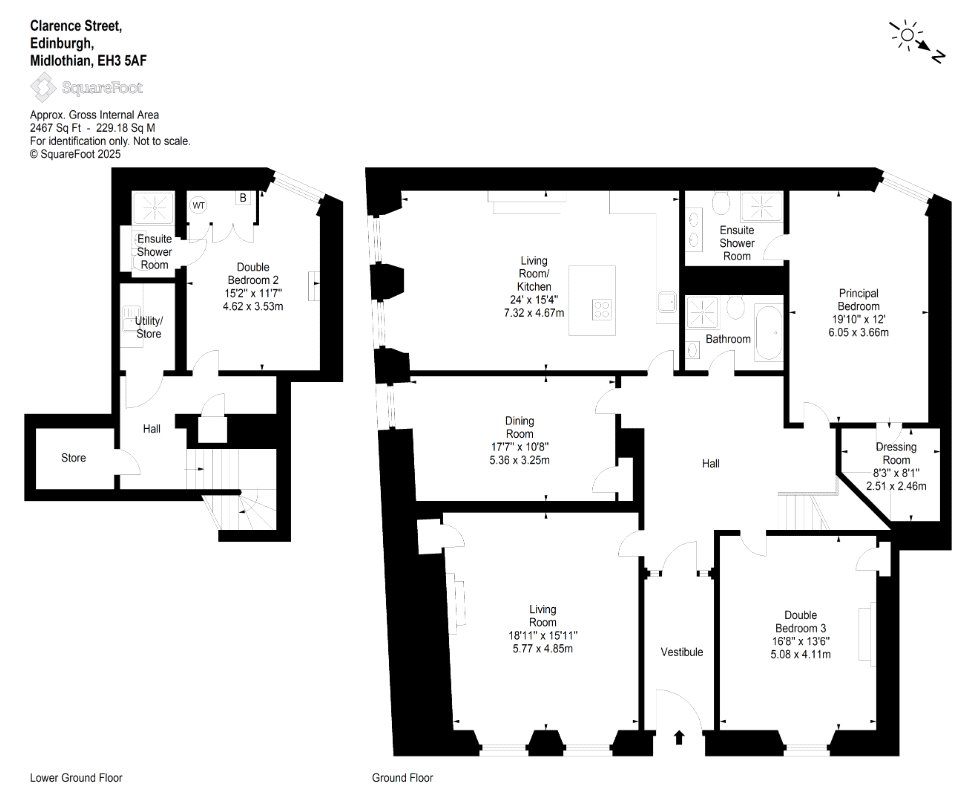
Extending to an impressive 2,467 sq ft over the ground and lower ground floors, 32 Clarence Street offers a highly desirable blend of period character, generous proportions, and contemporary finishes - all in a peaceful yet central setting on the edge of Stockbridge and Edinburgh’s New Town.
Key Features
- 2,467 sq ft of beautifully proportioned accommodation
- Private main door entrance
- Generous open plan kitchen/living/dining space
- Formal sitting room and dining room
- Three double bedrooms, two en suite
- Dressing room, utility room and storage
- Original flagstone floors and period details
- Quiet yet central location on the cusp of Stockbridge and New Town
- Ideal for buyers seeking step free access and versatile space
More Details
EPC: C
Council Tax Band: G
Tenure: Freehold
Viewing strictly by appointment.
Your home may be repossessed if you do not keep up repayments on your mortgage. There may be a fee for mortgage advice. The actual amount you pay will depend upon your circumstances.
Similar Properties
Looking To Sell Or Let?
Rettie is one of the most trusted and well-respected names in property. Our unrivalled market knowledge helps people from around the world buy, sell, let and develop property in Scotland and the North East of England - from city apartments and rural cottages to large townhouses and prime country homes, farms and estates. We deal with some of the most prestigious properties on the market, but provide the same exceptional standards of service and value for money to all our clients.
