Flat 1/1, 23 Bellwood Street, Shawlands, Glasgow, G41 3EU
Property Description
Impressive One-Bedroom Traditional Flat in ever popular area of Shawlands.
Located on the first floor of a traditional sandstone tenement, this beautifully proportioned one-bedroom flat offers a perfect blend of timeless character and modern living, situated in the ever-popular Shawlands area of Glasgow's vibrant Southside.
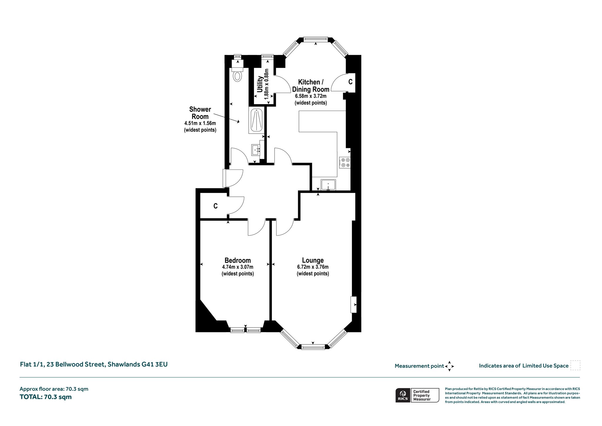
The property is accessed via a secure and well-maintained communal stairwell and opens into a spacious central hallway with excellent flow between rooms. To the front, the generously sized lounge is bright and welcoming, with a beautiful bay window that floods the space with natural light.
To the rear, the bright and expansive dining kitchen is a standout feature, offering modern cabinetry, integrated appliances, and an excellent dining area beneath another bay window. This versatile space is ideal for hosting or enjoying quiet meals at home. Additionally, there is a dedicated utility space provides convenient housing for laundry appliances and additional storage.
Adjacent, the stylish bathroom room is finished with contemporary fixtures, including a luxurious walk-in shower with a glass screen and sleek tiling.
Bellwood Street is a quiet yet conveniently located address in the heart of Shawlands, one of Glasgow’s most sought-after neighbourhoods. Residents enjoy easy access to an outstanding array of local amenities, including independent cafés, restaurants, bars, and boutique shops. Excellent transport links are within walking distance, with nearby Pollokshaws East train station and regular bus routes providing swift access to the city centre and beyond.
More Details
Situation: Communal Garden
Council Tax Band: C
Tenure: Contact Branch
Your home may be repossessed if you do not keep up repayments on your mortgage. There may be a fee for mortgage advice. The actual amount you pay will depend upon your circumstances.
Similar Properties
Looking To Sell Or Let?
Rettie is one of the most trusted and well-respected names in property. Our unrivalled market knowledge helps people from around the world buy, sell, let and develop property in Scotland and the North East of England - from city apartments and rural cottages to large townhouses and prime country homes, farms and estates. We deal with some of the most prestigious properties on the market, but provide the same exceptional standards of service and value for money to all our clients.
