Property Description
A delightful one bedroomed, ground floor flat situated in this popular pocket of Shawlands.
This red sandstone tenement building is accessed via secure door entry system into a well-kept communal close, where the flat is accessed on the right.
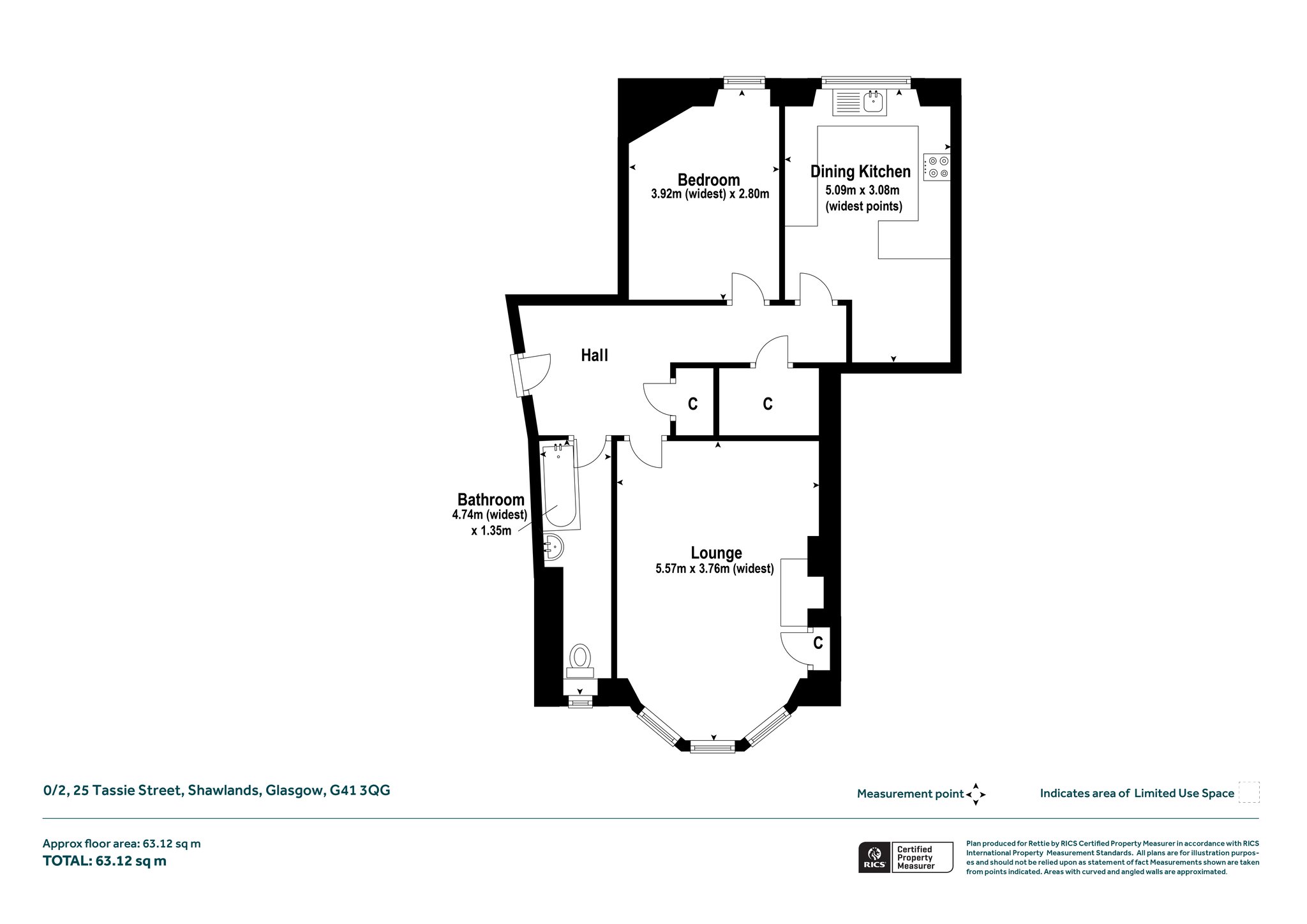
The accommodation of the flat itself comprises welcoming reception hallway with two cupboards off, bay windowed lounge with feature fireplace and cornicing, dining sized kitchen with a range of base and wall mounted units, breakfast bar and dining recess, double sized bedroom and tiled bathroom with white three piece suite and over bath shower.
The property also benefits from double glazing, gas central heating, high quality floor coverings and a neutral decor throughout. Externally there is a communal rear garden and private front garden.
Shawlands is considered by many to be the "brunch capital" of Glasgow, and was recently placed fifth on the Sunday Times Best Places to Live guide. While the brunch spots are excellent and numerous, there are also a wide range of other amenities including restaurants, bars, parks and much more. This flat is perfectly situated to enjoy everything that Shawlands has to offer, including excellent transport links with Pollokshaws East, Shawlands and Crossmyloof just a short walk away.
More Details
Situation: Communal Garden
Council Tax Band: C
Tenure: Freehold
Your home may be repossessed if you do not keep up repayments on your mortgage. There may be a fee for mortgage advice. The actual amount you pay will depend upon your circumstances.
Similar Properties
Looking To Sell Or Let?
Rettie is one of the most trusted and well-respected names in property. Our unrivalled market knowledge helps people from around the world buy, sell, let and develop property in Scotland and the North East of England - from city apartments and rural cottages to large townhouses and prime country homes, farms and estates. We deal with some of the most prestigious properties on the market, but provide the same exceptional standards of service and value for money to all our clients.
