Property Description
Conveniently location within the highly popular Woodlands district, this beautifully presented three-bedroom duplex offers spacious, flexible accommodation over two levels, combining period charm with modern convenience in one of Glasgow’s most desirable locations.
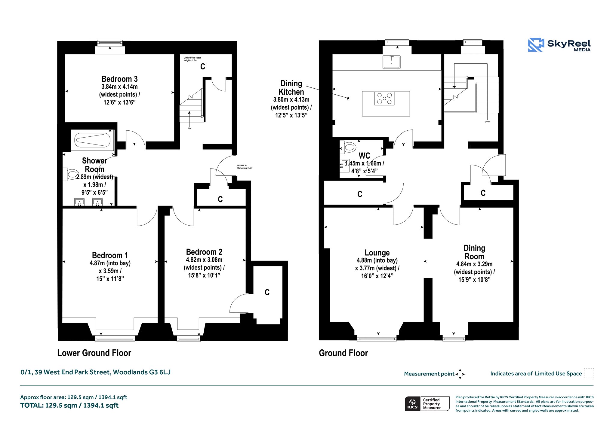
Occupying the ground and lower ground floors of a traditional sandstone tenement building, the property offers a thoughtfully laid out interior that is comfortably proportioned, immaculately presented throughout and benefits from excellent natural light. The ground level accommodation includes a bright and spacious main lounge, a separate dining room, a modern kitchen with central island and breakfasting bar. In addition, there is a two-piece WC and two useful storage cupboards off the reception hall. The lower ground level includes three spacious and adaptable double bedrooms, each. A stylish and contemporary four-piece shower room serves the lower level.
Set within the ever-popular Woodlands area, 39 West End Park Street enjoys easy access to an enviable selection of local amenities. Just moments from Kelvingrove Park, Kelvingrove Art Gallery & Museum, and Glasgow University, the area is rich in culture and green space. The vibrant Byres Road and Finnieston areas are within walking distance, offering a wide selection of cafés, restaurants, bars, and boutique shops. Public transport links are excellent, with Charing Cross and Kelvinbridge subway stations nearby, as well as multiple bus routes and easy access to the M8 motorway network, making commuting throughout the city and beyond both quick and convenient.
Accommodation:
- Security entry system
- Communal entrance close
- Welcoming reception hall with two useful storage cupboards off and staircase to lower ground level
- Superb main lounge with two section window to the front
- Versatile dining room with window to the front
- Impressive kitchen complete with a range of base and wall units, integrated appliances, central island with breakfasting bar and window to the rear
- Stylish two-piece WC off the reception hall
- Lower ground hall with storage cupboard off
- Bedroom one with two section window to the front
- Bedroom two with window to the front and storage cupboard off
- Bedroom three with window to the rear
- Contemporary four-piece shower room
- Gas central heating
- Shared garden to the rear of the building
- Availability of on street residents’ parking permit
More Details
Situation: Contact branch
Council Tax Band: E
Tenure: Contact Branch
Your home may be repossessed if you do not keep up repayments on your mortgage.
There may be a fee for mortgage advice. The actual amount you pay will depend upon your circumstances. The fee is up to 1% but a typical fee is 0.3% of the amount borrowed.
Similar Properties
Looking To Sell Or Let?
Rettie is one of the most trusted and well-respected names in property. Our unrivalled market knowledge helps people from around the world buy, sell, let and develop property in Scotland and the North East of England - from city apartments and rural cottages to large townhouses and prime country homes, farms and estates. We deal with some of the most prestigious properties on the market, but provide the same exceptional standards of service and value for money to all our clients.
