239 Ayr Road, Newton Mearns, Glasgow, G77 6AH

Newton Mearns, Glasgow, G77 6AH
Under Offer
Pin View on map

Offers Over £365,000

House

Detached House

Bed

3 Bedrooms

Bathroom

1 Bathroom

Reception

2 Reception Rooms

Tree

Private Garden

Garage

Garage

Telephone

Property Description

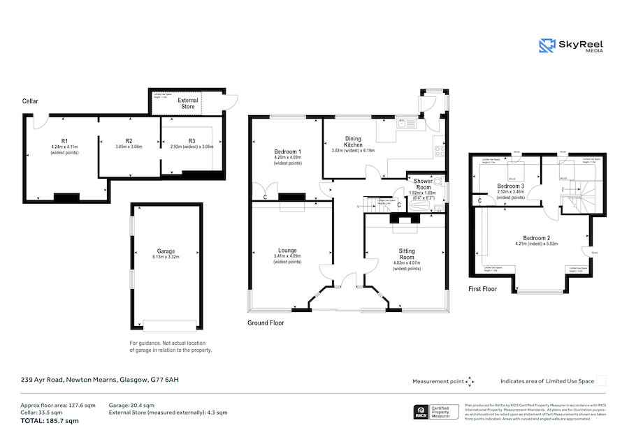
Located within highly sought-after Newton Mearns, this impressive detached bungalow offers flexible family accommodation across two well-proportioned levels.

The ground floor is arranged around a welcoming central hallway which connects seamlessly to the main living spaces. To the front, the bright and spacious lounge features a double aspect window that floods the room with natural light. Adjacent is a further sitting room—equally suitable as a family room, home office, or additional bedroom—offering further flexibility.

The dining kitchen sits at the heart of the home and garden access is provided through a rear porch. Also on the ground floor is a generous double bedroom and a fully tiled shower room.

The upper level provides two further bedrooms, the front one being a double size with dormer window and built in wardrobes.

Externally, the property benefits from a large cellar, which offers potential development opportunities and an attached garage with driveway parking. The front garden is laid to lawn with well stocked shrubbery, the back garden provides an outdoor dining area with a monoblocked terrace, large flat lawn and mature hedging.

This home combines spacious interiors with adaptable room layouts, making it particularly well suited to families, downsizers or anyone seeking single-level living with the bonus of additional upstairs accommodation. Situated close to highly regarded schools, local amenities, parks and transport links, it represents an exceptional opportunity in a premier Newton Mearns location.

The surrounding area provides access to some of Scotland’s highest attaining primary and secondary schools. A wide selection of amenities is available nearby, including supermarkets, healthcare centres, libraries, and The Avenue Shopping Centre. Residents also benefit from excellent leisure facilities such as Parklands Country Club, several renowned golf clubs, various private sports clubs, and East Renfrewshire Council’s own sports and leisure centre at Eastwood Toll.

More Details

Tenure: Freehold
EPC: D
Council Tax: F

Contact Us

Sophie Boyd

Sophie Boyd

Sales Negotiator
Roland Brownlee

Roland Brownlee

Mortgage & Protection Advisor
Mortgage Calculator
Monthly payments
Please set an interest rate.

Your home may be repossessed if you do not keep up repayments on your mortgage.

There may be a fee for mortgage advice. The actual amount you pay will depend upon your circumstances. The fee is up to 1% but a typical fee is 0.3% of the amount borrowed.

Tax Calculator
LBTT calculator for properties purchased in Scotland. Stamp Duty calculator for properties purchased in England.
Land & buildings transaction tax (LBTT)
= £0
New build house with stone and timber cladding

Looking To Sell Or Let?

Rettie is one of the most trusted and well-respected names in property. Our unrivalled market knowledge helps people from around the world buy, sell, let and develop property in Scotland and the North East of England - from city apartments and rural cottages to large townhouses and prime country homes, farms and estates. We deal with some of the most prestigious properties on the market, but provide the same exceptional standards of service and value for money to all our clients.