Graydon House, 55 Castle Street, Duns, Scottish Borders, TD11 3BD

55 Castle Street, Duns, Scottish Borders, TD11 3BD
Pin View on map
  • FloorplanEPC Rating Graph

Offers Over £300,000

House

Terraced House

Bed

4 Bedrooms

Bathroom

1 Bathroom

Reception

2 Reception Rooms

Size

179 sq.m

Tree

Private Garden

Telephone

Property Description

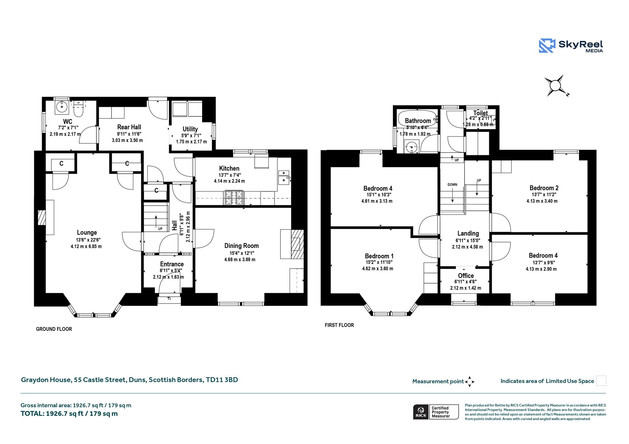
Graydon House is a handsome double-fronted, end-terrace stone-built home occupying a desirable position on Castle Street in the heart of Duns. Extending to approximately 179 sq. metres, the property offers bright, generously proportioned accommodation over two floors and retains an abundance of charm and period features throughout, creating a warm and characterful family home.

Accommodation Comprises

Ground Floor: Vestibule, Hallway, Lounge, Dining Room, Kitchen, Rear Hall/Boot room, Utility, Cloakroom.

First Floor: Landing, Four Double Bedrooms, Bathroom, WC.

Outside: Front Garden, Enclosed Rear Garden. On-Street Parking.

Distances: Berwick-upon-Tweed 15 miles, Edinburgh 40 miles, Newcastle 65 miles.

More Details

Tenure: Freehold
EPC: D (59)
Servicing All mains services connected.
Council Tax Band: E
Agents Notes: Please be aware the property lies within a conservation area.

Request More Details

Amy Brown

Amy Brown

Associate Director
Mortgage Calculator
Monthly payments
Please set an interest rate.

Your home may be repossessed if you do not keep up repayments on your mortgage.

There may be a fee for mortgage advice. The actual amount you pay will depend upon your circumstances. The fee is up to 1% but a typical fee is 0.3% of the amount borrowed.

Tax Calculator
LBTT calculator for properties purchased in Scotland. Stamp Duty calculator for properties purchased in England.
Land & buildings transaction tax (LBTT)
= £0
New build house with stone and timber cladding

Looking To Sell Or Let?

Rettie is one of the most trusted and well-respected names in property. Our unrivalled market knowledge helps people from around the world buy, sell, let and develop property in Scotland and the North East of England - from city apartments and rural cottages to large townhouses and prime country homes, farms and estates. We deal with some of the most prestigious properties on the market, but provide the same exceptional standards of service and value for money to all our clients.