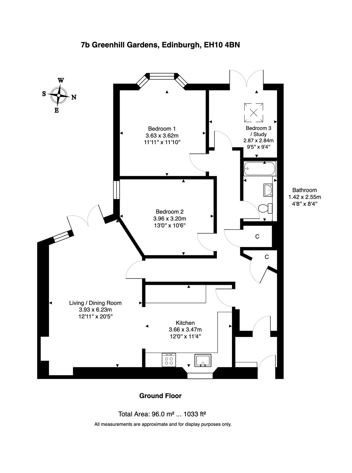
7b Greenhill Gardens, Edinburgh, EH10 4BN

Edinburgh, EH10 4BN
New
Pin View on map

Offers Over £745,000

House

Ground Floor Apartment

Bed

3 Bedrooms

Bathroom

1 Bathroom

Reception

1 Reception Room

Size

1,033 sq.ft

Tree

Private Garden

Telephone

Property Description

Sitting in a prominent position on the prestigious Greenhill Gardens, 7B provides the opportunity to purchase a ground floor, main door, three bedroom cottage style property with a beautiful, large private garden.

The property consists of a contemporary open plan living space with a scandi- style kitchen and electric Aga. The sitting room/ dining room offers direct access to the south west facing garden, providing a bright and airy space. There are three double bedrooms, a bathroom and plenty of cupboard space to complete the property.

Location
Sitting in a prominent position on the prestigious Greenhill Gardens, 7B provides the opportunity to purchase a ground floor, main door, three bedroom cottage style property with a beautiful, large private garden.

The property consists of a contemporary open plan living space with a scandi- style kitchen and electric Aga. The sitting room/ dining room offers direct access to the south west facing garden, providing a bright and airy space. There are three double bedrooms, a bathroom and plenty of cupboard space to complete the property.

More Details

EPC: E
Council Tax Band: E
Tenure: Freehold

Request More Details

Faith Peden

Faith Peden

Senior Sales Negotiator
Laura Mathieson

Laura Mathieson

Associate Director
Bob Duncan Cert CII (MP)

Bob Duncan Cert CII (MP)

Managing Director
Mortgage Calculator
Monthly payments
Please set an interest rate.

Your home may be repossessed if you do not keep up repayments on your mortgage. There may be a fee for mortgage advice. The actual amount you pay will depend upon your circumstances.

Tax Calculator
LBTT calculator for properties purchased in Scotland. Stamp Duty calculator for properties purchased in England.
Land & buildings transaction tax (LBTT)
= £0
New build house with stone and timber cladding

Looking To Sell Or Let?

Rettie is one of the most trusted and well-respected names in property. Our unrivalled market knowledge helps people from around the world buy, sell, let and develop property in Scotland and the North East of England - from city apartments and rural cottages to large townhouses and prime country homes, farms and estates. We deal with some of the most prestigious properties on the market, but provide the same exceptional standards of service and value for money to all our clients.