119(3f2), Warrender Park Road, Marchmont, Edinburgh, EH9 1EN

Marchmont, Edinburgh, EH9 1EN
New
Pin View on map

Offers Over £695,000

House

Duplex Apartment

Bed

8 Bedrooms

Size

2,578 sq.ft

Tree

Communal Garden

Parking

On Street/Permit

Telephone

Property Description

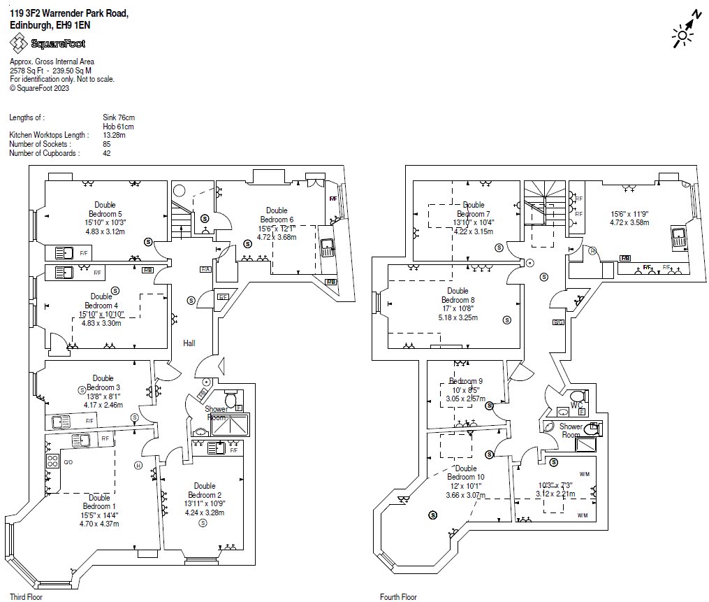
119(3f2) Warrender Park Road is a substantial duplex apartment with excellent views, forming part of an attractive Victorian tenement in the heart of Marchmont. Extending to over 2,500 sq ft, the property comprises 10 bedrooms and is currently licensed as an 8-bedroom HMO. 

The property is estimated to generate circa £5,750 per month in rental income, providing an exceptional yield of 9.5% based on an offer at the Home Report value of £725,000. This presents an excellent opportunity for those seeking a well-located investment or a renovation project, with potential to create an expansive home in one of Edinburgh’s most sought-after residential areas.

The accommodation is arranged across the third and fourth floors, with a well-organised layout that allows the space to be used efficiently. On the third floor, a central hallway provides access to six double bedrooms and a shower room. The rooms on this level benefit from the traditional proportions expected of the period, with large windows allowing for excellent natural light. Each bedroom is fitted with its own private kitchenette, a particularly useful feature that enhances the property’s appeal to investors by supporting independent living.

The upper floor is accessed via an internal staircase and continues the sense of space, with additional double bedrooms arranged around the hallway. This level also incorporates a further shower room, W/C, and a shared kitchen area.

Externally, the property benefits from access to a communal garden, while Bruntsfield Links and The Meadows are within close proximity.

Summary of Accommodation

Third Floor: Hallway, 6 Double Bedrooms featuring Kitchenette, Shower Room, Hallway Storage

Fourth Floor: 2 Double Bedrooms, Kitchen, Shower Room, W/C, Hallway Storage

Externally: Access to Communal Garden

Location

Warrender Park Road is a highly desirable address within Marchmont, located moments from The Meadows and Edinburgh University, making the property especially appealing for the student and professional rental market. The area also offers an excellent range of independent cafés, shops and local amenities, together with frequent transport links to the city centre.

More Details

EPC: E
Council Tax: F
Tenure: Freehold

Viewing by appointment via Rettie & Co.

Request More Details

Laura Mathieson

Laura Mathieson

Associate Director
Bob Duncan Cert CII (MP)

Bob Duncan Cert CII (MP)

Managing Director
Mortgage Calculator
Monthly payments
Please set an interest rate.

Your home may be repossessed if you do not keep up repayments on your mortgage.

There may be a fee for mortgage advice. The actual amount you pay will depend upon your circumstances. The fee is up to 1% but a typical fee is 0.3% of the amount borrowed.

Tax Calculator
LBTT calculator for properties purchased in Scotland. Stamp Duty calculator for properties purchased in England.
Land & buildings transaction tax (LBTT)
= £0
New build house with stone and timber cladding

Looking To Sell Or Let?

Rettie is one of the most trusted and well-respected names in property. Our unrivalled market knowledge helps people from around the world buy, sell, let and develop property in Scotland and the North East of England - from city apartments and rural cottages to large townhouses and prime country homes, farms and estates. We deal with some of the most prestigious properties on the market, but provide the same exceptional standards of service and value for money to all our clients.