Property Description
Available again unexpectedly, this spacious two-bedroom apartment is situated in the heart of Glasgow’s City Centre and International Financial Services District. Boasting an open outlook west over York Street towards Atlantic Square from the three-section bay windowed living room, the apartment extends to a generous 794 sq ft internally and forms part of a striking red sandstone building originally completed in 1901, by architect Neil Campbell Duff. The slender baroque commercial building has elaborate carvings on the front elevation details and was originally occupied by the Carswell Fishing Gut Company, converted to residential apartments almost 100 years after it was originally built, it is an architectural jewel nestled between Atlantic Quay and the new Morgan Stanley building adjoining.
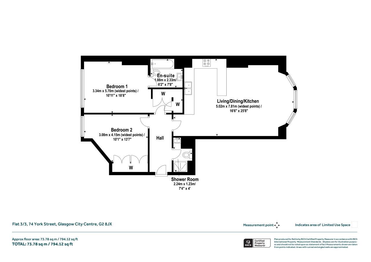
Entered via secure entry to communal entrance lobby offering lift and stair accesses the apartment. There is a welcoming reception hall with access off to all rooms, living/dining room with aspects from a three window bay and open plan kitchen is set back from the living space and is complete with a range of base and wall units and space for fridge freezer and separated by a kitchen peninsula, bedroom one has a window to rear lightwell, has great storage with full height triple wardrobes and an en suite bathroom; bedroom two is also situated to the rear of the property and has a wall of built in wardrobes and there is a separate shower room, the property has gas central heating and double glazing with secondary glazing panels for sound and heat insulation in the living space. The building and communal areas are well maintained and it is exceptionally well placed for a both general and specialist shopping and a great selection of local amenities including excellent transport links, café’s, bars, shops, restaurants and gyms.
Situation
Located in the heart of the International Financial Services District the building is also conveniently located for access the Merchant City and Finnieston where a wealth of amenities can be found. The property is in close proximity to the Glasgow School of Art; Royal Conservatoire, Strathclyde, Caledonian and Glasgow Universities. The area benefits from frequent public transport with easy access to nearby stations; Central Station and Queen Street Train Stations and St Enoch Underground. The nearby M8/M74 ensures good commuter access throughout the Central Belt.
Travel Directions
Walking from our office at 147 Bath Street, turn right into West Campbell Street and continue south downhill towards the River Clyde, at the junction with Argyle Street, cross over into York Street where you will find the entrance to No. 74 a short way down on the left-hand side.
More Details
EPC: B
Council Tax Band: E
Tenure: Freehold
Your home may be repossessed if you do not keep up repayments on your mortgage. There may be a fee for mortgage advice. The actual amount you pay will depend upon your circumstances.
Similar Properties
Looking To Sell Or Let?
Rettie is one of the most trusted and well-respected names in property. Our unrivalled market knowledge helps people from around the world buy, sell, let and develop property in Scotland and the North East of England - from city apartments and rural cottages to large townhouses and prime country homes, farms and estates. We deal with some of the most prestigious properties on the market, but provide the same exceptional standards of service and value for money to all our clients.
