Flat 0/1, 52 Rose Street, Garnethill, Glasgow City, G3 6SH

Garnethill, Glasgow City, G3 6SH
Sold
Pin View on map

Offers Over £225,000

House

Ground Floor Apartment

Bed

2 Bedrooms

Bathroom

1 Bathroom

Reception

1 Reception Room

Size

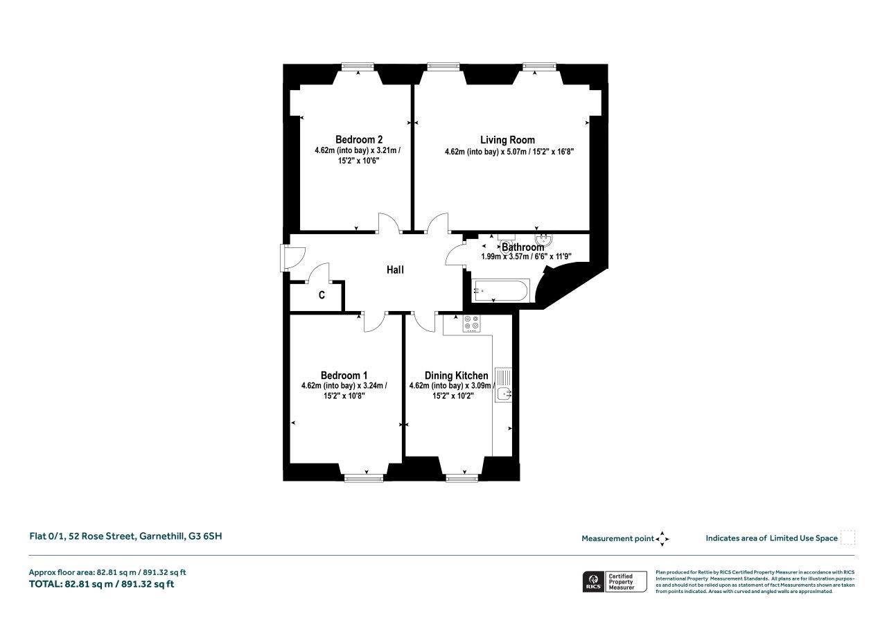
1,184 sq.ft

Tree

Communal Garden

Parking

On Street/Permit

Telephone

Property Description

Generously proportioned, this stylish and modernised two-bedroom ground floor tenement flat is situated within a traditional blonde sandstone B listed building and is very centrally located in Garnethill, a convenient and popular area on the edge of the City Centre and West End of Glasgow. The property has been fully upgraded during its current ownership with notable highlights including a west facing private garden overlooking Garnethill Park and a contemporary mix of both modern and original period features. This excellent property is well placed to take advantage of an enviable selection of local amenities including excellent transport links, offers access to both every day, and leisure shopping, and as part of Glasgow’s Avenues project, benefits from a great transformation in recent months.

Entered via secure communal entrance to communal close, the property extends to a very capacious 1084 sq ft and comprises of; well-proportioned and welcoming entrance hallway with large storage cupboard and access to all rooms, a living room spanning over 16’8” with two large windows facing west to the front garden and beyond and press shelving, a modern refitted dining kitchen with feature blackboard wall and a lovely open outlook over the communal lawned gardens to the rear of the building. There are two double bedrooms, one facing to the front and one to the rear and a modern refitted bathroom with white three piece suite, over bath shower and comprehensive tiling to half height and fully around the bath. There are Georgian style sash windows to the front and traditional sash and case to the rear, operational window shutters in the living room and bedrooms, high quality wood floorcoverings to all main apartments and fresh décor. The property has gas central heating, and further benefits from the availability of Glasgow City Council residents’ permit parking from.

Situation

Located on Rose Street in Garnethill; a quiet and predominantly residential area nestled between Glasgow’s City Centre and thriving West End, only few minutes’ walk from Sauchiehall Street and Cowcaddens Underground Station. The property is conveniently located for access to the City Centre, the Merchant City, Financial Service District, Finnieston and the West End, where a wealth of amenities including both general and specialist shopping, wine bars and many highly acclaimed restaurants can be found. The property is in close proximity to Glasgow’s School of Art and The Royal Conservatoire of Scotland; Strathclyde, Caledonian & Glasgow University. The area benefits from frequent public transport with easy access to Cowcaddens and Buchanan Street subway and bus station; Queens Street and Central Train Stations. The nearby M8/M80 ensures good commuter access throughout the Central Belt and is within easy reach of some of Scotland’s most impressive countryside attractions.

Travel Directions

By car from our office on Bath Street proceed west along Bath Street turning right onto Douglas Street and right again on to Sauchiehall Street. At the junction turn left into Rose Street and continue up the hill crossing over the junction with Hill Street where you will find No. 52 half-way along the block on the right-hand side.

More Details

Situation: Communal Garden
Council Tax Band: D
Tenure: Contact Branch

Contact Us

Lisa Pitchers MRICS

Lisa Pitchers MRICS

Associate Director
Craig Roberts

Craig Roberts

Mortgage & Protection Advisor
Mortgage Calculator
Monthly payments
Please set an interest rate.

Your home may be repossessed if you do not keep up repayments on your mortgage. There may be a fee for mortgage advice. The actual amount you pay will depend upon your circumstances.

Tax Calculator
LBTT calculator for properties purchased in Scotland. Stamp Duty calculator for properties purchased in England.
Land & buildings transaction tax (LBTT)
= £0
New build house with stone and timber cladding

Looking To Sell Or Let?

Rettie is one of the most trusted and well-respected names in property. Our unrivalled market knowledge helps people from around the world buy, sell, let and develop property in Scotland and the North East of England - from city apartments and rural cottages to large townhouses and prime country homes, farms and estates. We deal with some of the most prestigious properties on the market, but provide the same exceptional standards of service and value for money to all our clients.