Flat 3/2, 105 Buccleuch Street, Garnethill, Glasgow City, G3 6QN
Property Description
Beautifully presented, this spacious and bright top floor, one-bedroom flat combines the appeal of traditional tenement architecture with a fresh, contemporary interior and modern upgrades. Benefitting from dual aspects with its corner position, the property offers a lovely open outlook from the living room oriel bay window with sensational views across the City and the Campsie Hills beyond. Centrally located just along from the National Trust Tenement House within the popular Garnethill Conservation Area with its tranquil vibe and wealth of interesting architecture , and nestled between the West End and City Centre, offering the best of both locations. Garnethill is hailed as one of the most artistic and bohemian districts of Glasgow’s City Centre, being home to the Glasgow School of Art, the Royal Conservatoire of Scotland and Glasgow Film Theatre, and is conveniently placed for great transport links.
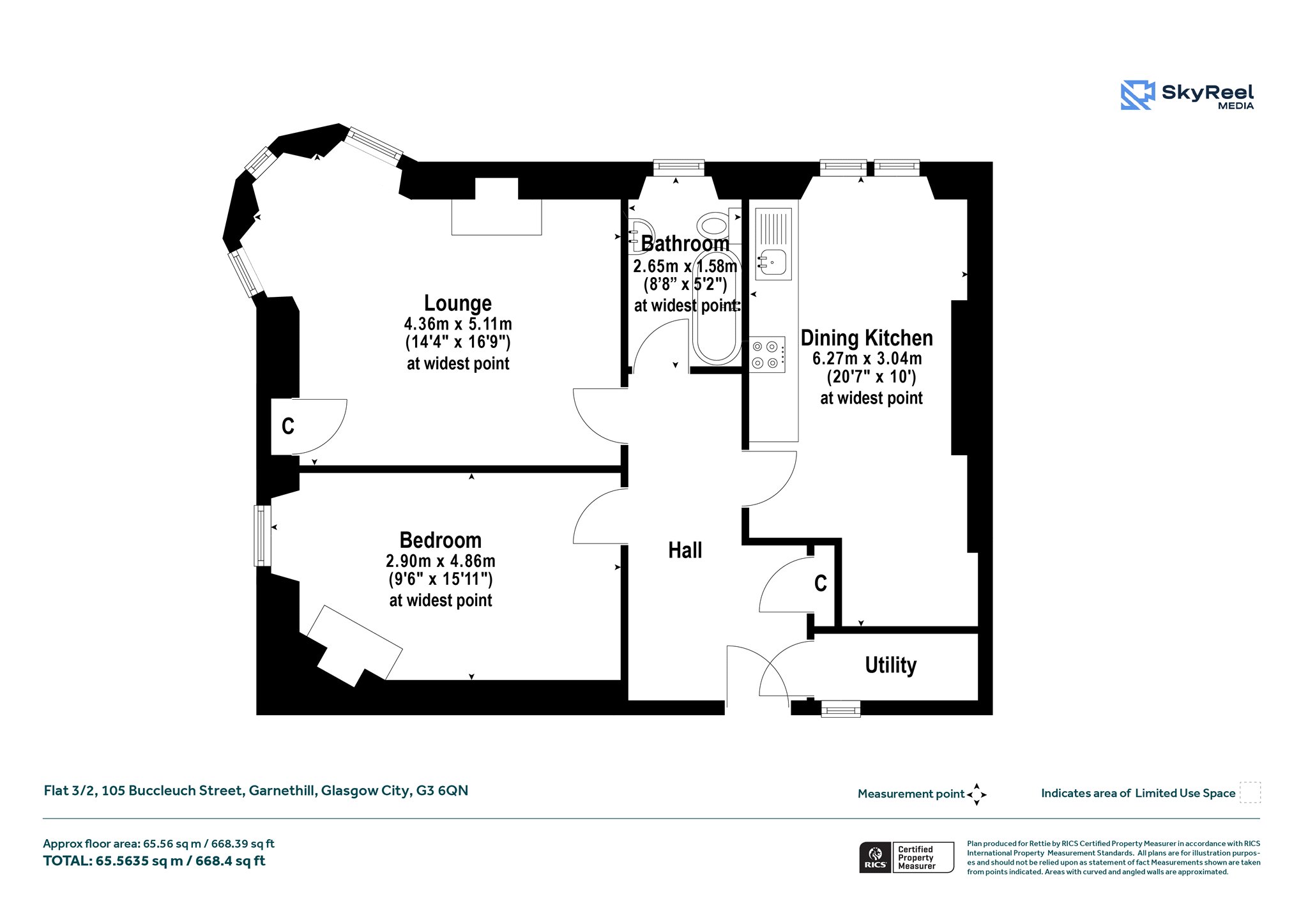
Accessed via secure entry to communal close, there is stair access to top floor entrance. The property extends to over 730 sq ft and comprises of reception hallway with utility cupboard off; living room with a wealth of period features and traditional limestone fireplace, dining kitchen which has been tastefully refitted with bespoke solid wood Neptune cabinetry with Smeg Symphony dual fuel freestanding cooker and a dining recess; generous bedroom one with feature fire surround and a modern and recently refitted bathroom with Mandarin Stone natural stone floor tiles and electric underfloor heating, Burlington freestanding roll top Bateau bath with luxury feet, over bath shower and window to east. There is also a generous storage cupboard for the sole use of the property on the ground floor.
Viewing is highly recommended to appreciate the quality of fixtures and fittings. The property has fresh décor, quality floorcoverings from Crucial Trading, original restored doors and hardware, sash and case replaced double glazing throughout and a Hive gas central heating system with re-fitted double column style radiators and polished nickel and walnut valves from the Cast Iron Radiator Company. The building has well-maintained communal gardens to the rear, and the property has access to a Residents Parking Permit for parking on street outside the property and within the Garnethill area, a huge benefit being so close to the city centre.
Situation
Located on Buccleuch Street in Garnethill; a quiet and predominantly residential area, only few minutes’ walk from Sauchiehall Street, which has undergone a major public realm improvements programme. Nearby transport options from a selection of over ground and underground train stations including Charing Cross Station, St Georges Cross Underground Station or Cowcaddens Underground Station. A wonderful selection of local café’s can be found on the doorstep, including the infamous Singl-end bakehouse, and the property is conveniently located for access to the City Centre, the Merchant City, International Financial Services District, the West End and Finnieston where a wealth of amenities including both general and specialist shopping, and many highly acclaimed wine bars and restaurants can be found. The property is in close proximity to the Glasgow School of Art; Strathclyde, Caledonian & Glasgow Universities. The area benefits from frequent public transport with easy access to nearby subway stations; Queens Street and Central Train Stations. St Georges Cross and Cowcaddens Tube stations are equidistant and Charing Cross train station is also just a short walk for all major routes. The nearby M8/M80 ensures good commuter access throughout the Central Belt and is within easy reach of some of Scotland’s most impressive countryside attractions.
Travel Directions
By car from our office on Bath Street proceed west along Bath Street turning right onto Douglas Street and right again on to Sauchiehall Street. At the junction turn left into Rose Street and then right onto Renfrew Street. Taking the left filter lane, turn left onto Cambridge Street and then first left into Hill Street. Head up Hill Street and take the first right turning into Rose Street passing Garnethill Park at the end of the block turn left into Buccleuch Street and continue up the hill, heading west and passing the junction with Garnet Street where you will find No. 105 immediately on the left-hand side
More Details
Situation: Communal Garden
Council Tax Band: B
Tenure: Freehold
Your home may be repossessed if you do not keep up repayments on your mortgage.
There may be a fee for mortgage advice. The actual amount you pay will depend upon your circumstances. The fee is up to 1% but a typical fee is 0.3% of the amount borrowed.
Similar Properties
Looking To Sell Or Let?
Rettie is one of the most trusted and well-respected names in property. Our unrivalled market knowledge helps people from around the world buy, sell, let and develop property in Scotland and the North East of England - from city apartments and rural cottages to large townhouses and prime country homes, farms and estates. We deal with some of the most prestigious properties on the market, but provide the same exceptional standards of service and value for money to all our clients.
