Flat 3/1, 26 Hillfoot Street, Dennistoun, Glasgow, G31 2LF

Dennistoun, Glasgow, G31 2LF
Sold
Pin View on map

Fixed Price £185,000

House

Upper Floor Apartment

Bed

2 Bedrooms

Bathroom

1 Bathroom

Reception

1 Reception Room

Size

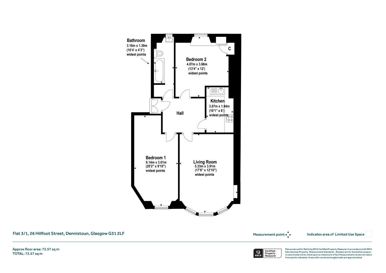
786 sq.ft

Parking

On Street/Permit

Telephone

Property Description

New Fixed Price at Home Report.

Hillfoot Street is nestled within the highly sought-after and superbly convenient ‘Drives’ of Dennistoun, offering a vibrant café culture right on the doorstep of this thriving suburb to the east of Glasgow’s City Centre. This top-floor, two-bedroom tenement flat is perfectly positioned close to Duke Street.

Entered via security entry to the well maintained close, the property features a spacious living room with three section bay window and views west, a well-proportioned internal kitchen, two generous double bedrooms and main bathroom with white three-piece suite, and over bath shower. Modernised during its current ownership and retaining a wealth of tenement features, the flat is ideally situated, providing effortless access to an impressive array of local amenities and excellent transport links. The property has sanded wooden floorboard and natural wood finishes and benefits from gas central heating and double glazing as well as access to a well-maintained paved rear courtyard and convenient on-street parking.

Situation

The location is superb with a range of amenities and public transport links just minutes away. The Drives are well placed for both Duke Street and Alexandra Parade where you will find a range of popular specialist shops, delis, restaurants, and transport links from the local Belgrove Train Station. The property is just over a mile from the City Centre and popular Merchant City and in walking distance to both Alexandra Park offering views to Ben Lomond from its highest point and Glasgow Green Park. Early viewing recommended to appreciate the proportions and condition of this flat. A great opportunity for both families and young professionals working in the City Centre or commuting to Edinburgh.

Travel Directions

By car from our George Square, proceed east on George Street, crossing the junction at High Street into Duke Street. Continue along Duke Street for approx. 1 mile passing the junction with Belgrove Street, turn second left into Hillfoot Street. Continue north on Hillfoot Street where you will find the entrance to No. 26 halfway up on the right-hand side, above the East End Bicycle Shop.

More Details

EPC: D
Council Tax Band: B
Tenure: Freehold

Contact Us

Lisa Pitchers MRICS

Lisa Pitchers MRICS

Associate Director
Craig Roberts

Craig Roberts

Mortgage & Protection Advisor
Mortgage Calculator
Monthly payments
Please set an interest rate.

Your home may be repossessed if you do not keep up repayments on your mortgage. There may be a fee for mortgage advice. The actual amount you pay will depend upon your circumstances.

Tax Calculator
LBTT calculator for properties purchased in Scotland. Stamp Duty calculator for properties purchased in England.
Land & buildings transaction tax (LBTT)
= £0
New build house with stone and timber cladding

Looking To Sell Or Let?

Rettie is one of the most trusted and well-respected names in property. Our unrivalled market knowledge helps people from around the world buy, sell, let and develop property in Scotland and the North East of England - from city apartments and rural cottages to large townhouses and prime country homes, farms and estates. We deal with some of the most prestigious properties on the market, but provide the same exceptional standards of service and value for money to all our clients.