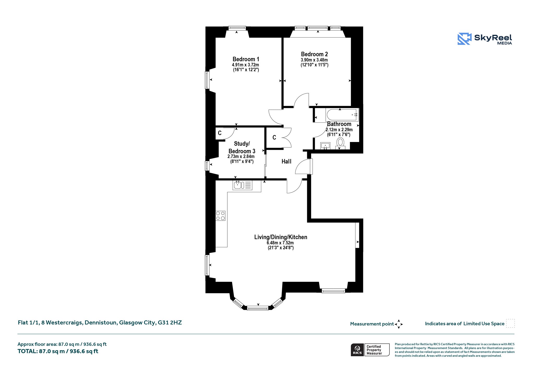
Flat 1/1, 8 Westercraigs, Dennistoun, Glasgow City, G31 2HZ
Property Description
This stylish three-bedroom conversion is situated on the first floor of a striking semi-detached villa and located on Westercraigs in Dennistoun, a suburb to the east of Glasgow’s Merchant City, aptly named by the locals of the late 1800’s as ‘Villadom’ and more recently referred to as ‘The Drives of Dennistoun’. Offering triple aspects from the refitted double-glazed timber sash & case windows, the beautiful home extends to 936 sq ft and combines the appeal of traditional tenement architecture with a fresh, contemporary interior and modern upgrades. The location is superb with a wide variety of local shops, cafés, delis and restaurants nearby, along with excellent transport links to the M8 motorway network and with Bellgrove Station minutes’ walk away offering access to Glasgow West End in under 10 minutes and commuter access to the east, this is a fabulous home in a highly sought after and convenient locale.
Accessed via secure entrance to the communal hallway, the villa is split into three conversions, sharing the lovely rear gardens. Staircase leads to the first-floor entrance and offers access to the welcoming l-shaped hallway with handy utility cupboard and restored original wood floorboards, continued into the main living space. Cleverly reconfigured by the current owners, the very generous living room with dining kitchen has dual aspects, a sleek and stylish re-fitted kitchen and re-fitted sash & case windows with functioning shutters and striking cornice detail off set with modern lighting. There are three bedrooms with the two larger rear rooms having aspects to east over the rear gardens and there is main bathroom with white three-piece suite with over bath shower. The property features double column radiators, re-fitted timber sash & case windows, operational shutters, Gas Central heating and benefits from an EPC Band C.
Situation
The property is just over a mile from the City Centre and in walking distance to attractions such as Glasgow Cathedral & Necropolis, Alexandra Parade Park and Glasgow Green. Rail and Bus links are both less than a five-minute walk from the property offering easy links to both Glasgow and Edinburgh. Likewise links to the M8, M73 & M74 motorway networks are a similar distance. The Universities, Colleges, Royal Infirmary, Princess Royal Maternity and Stobhill Hospital campuses are all close by.
Travel Directions
On foot from George Square, proceed east on George Street, crossing the junction at High Street into Duke Street. Continue along Duke Street for approx. 1 mile. At the junction with Bellgrove Street and Westercraigs, turn immediately left into Westercraigs where you will find No. 8 towards the top of the hill on the right-hand side.
More Details
Situation: Communal Garden
Council Tax Band: C
Tenure: Contact Branch
Your home may be repossessed if you do not keep up repayments on your mortgage.
There may be a fee for mortgage advice. The actual amount you pay will depend upon your circumstances. The fee is up to 1% but a typical fee is 0.3% of the amount borrowed.
Similar Properties
Looking To Sell Or Let?
Rettie is one of the most trusted and well-respected names in property. Our unrivalled market knowledge helps people from around the world buy, sell, let and develop property in Scotland and the North East of England - from city apartments and rural cottages to large townhouses and prime country homes, farms and estates. We deal with some of the most prestigious properties on the market, but provide the same exceptional standards of service and value for money to all our clients.
