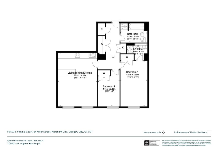
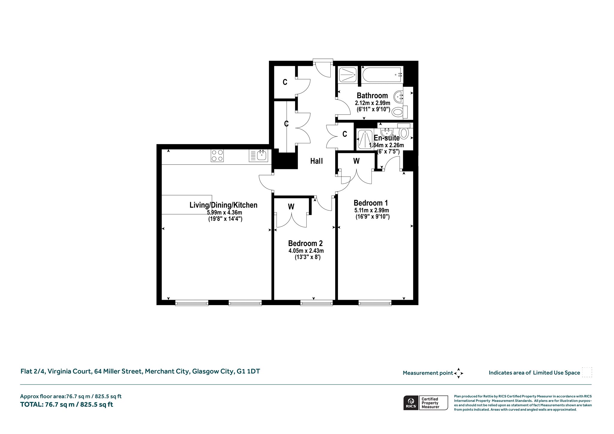
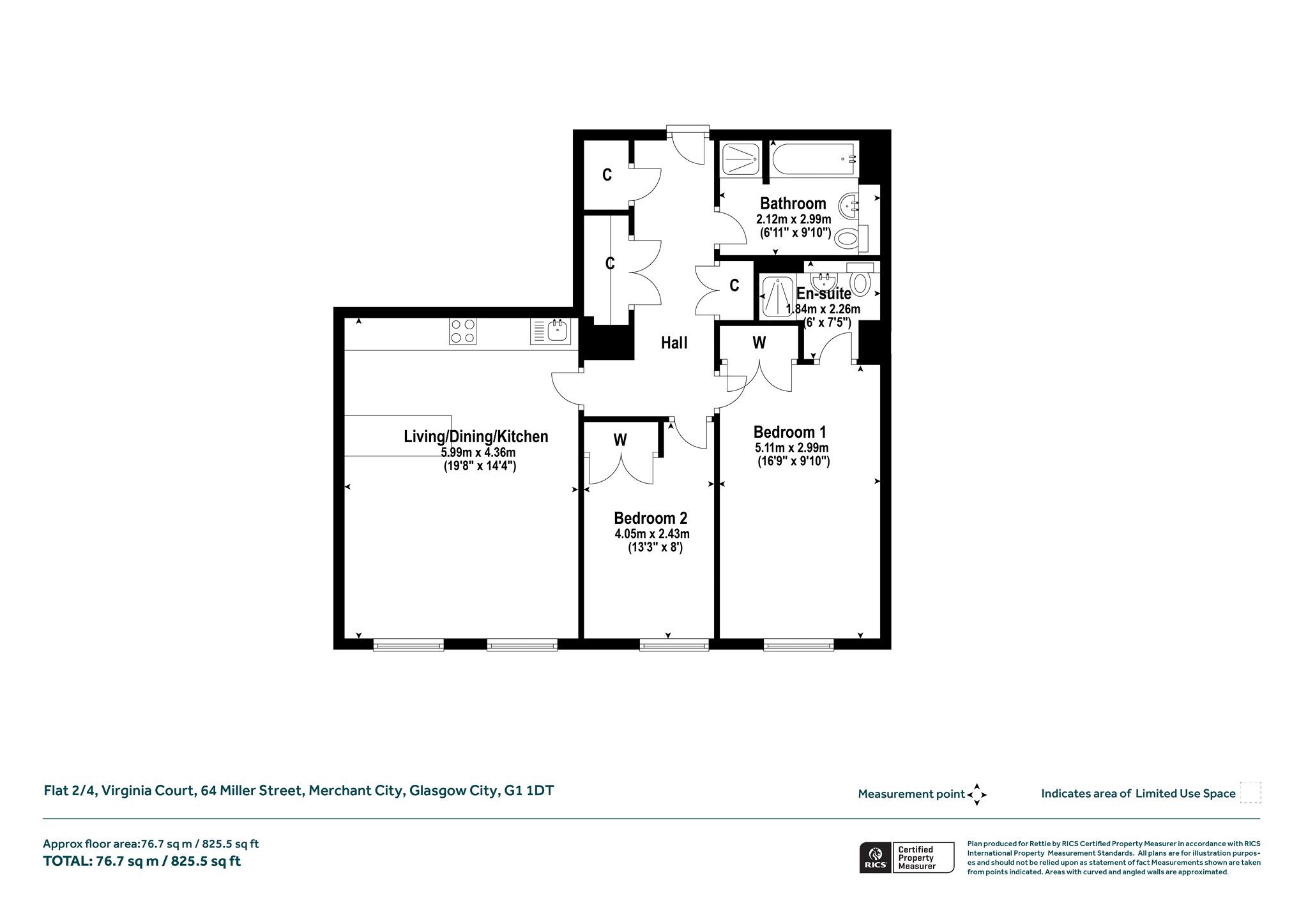
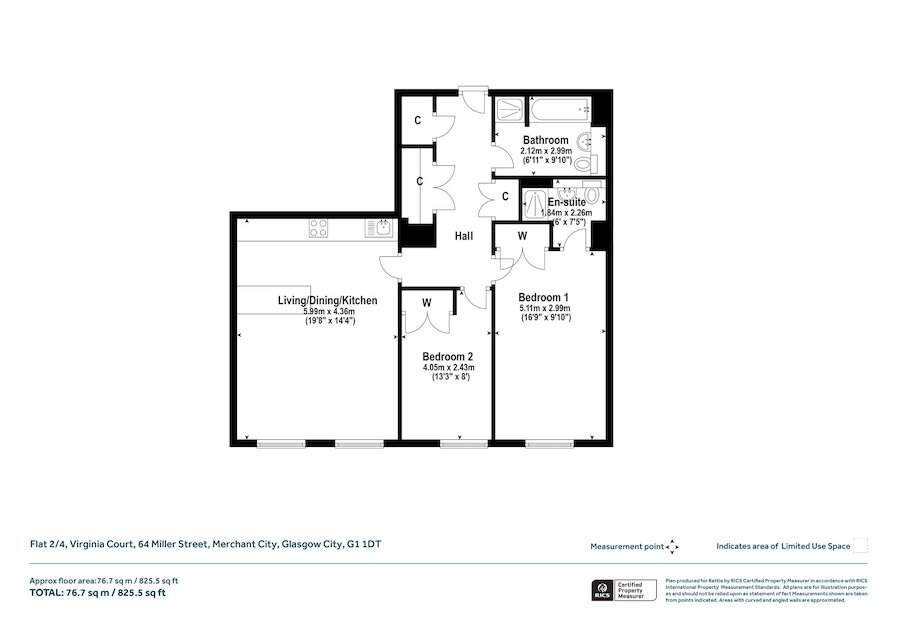
Flat 2/4, 64 Miller Street, Merchant City, Glasgow City, G1 1DT
Fixed Price £225,000
Apartment
2 Bedrooms
2 Bathrooms
1 Reception Room
840 sq.ft
Communal Garden
Property Description
New Fixed Price. £25,000 below HRV.
Re-roofed in 2023, having beautifully maintained residents’ courtyard gardens and recently redecorated communal areas, this stylish two-bedroom apartment enjoys a superb second-floor position in the heart of Glasgow’s vibrant Merchant City and is set within a striking blonde sandstone warehouse conversion.
Renowned for its dynamic blend of culture, dining, and city living, the area has become one of the City’s most sought-after destinations.
The apartment offers an outlook over Miller Street to the front, while also benefiting from access to the building’s tranquil residents’ courtyard at the rear.
The Merchant City continues to thrive with an exciting mix of residential and commercial regeneration, making this a prime location for city professionals, students, and investors alike. Perfectly placed between Ingram Street and Argyle Street, the property is within easy reach of high-end retail, everyday amenities, and excellent transport connections including Queen Street and Glasgow Central Stations. Both the University of Strathclyde and Glasgow Caledonian University are also nearby, further enhancing the appeal of this central city address.
Entered via a security entry system and a communal entrance with both lift and stair access to each floor, and to the rear communal courtyard. A welcoming reception hall includes two storage cupboards and leads into an impressive open plan living and dining room which has a beautifully re-fitted open plan kitchen featuring a range of base and wall units, integrated appliances, and a stylish kitchen peninsula for dining. Bedroom one offers fitted wardrobes, a carpeted floor, and an en suite shower room, bedroom two also includes fitted wardrobes and carpeted floor. The main bathroom is fitted with a four-piece suite comprising shower cubicle, bath, toilet, and wash hand basin. Additional features include electric heating, tall sash style windows and a beautifully maintained residents’ courtyard.
Situation
Situated in the heart of the Merchant City where there is an outstanding selection of shops nearby on Buchanan Street and Argyle Street together with a wonderful choice of restaurants and bars. There are transport links via bus on nearby Ingram Street and by rail at Glasgow Central Station are within a few minutes’ walk. There are several educational institutions with both Strathclyde and Glasgow Caledonian Universities in walking distance, there are local hospitals, and the property is also well placed for road links including the M8 motorway network.
Travel Directions
From George Square continue South onto Hanover Street. Cross over onto Miller Street and head down the street towards Argyle Street where No. 64 is two thirds of the way down on the left-hand side.
More Details
EPC: C
Council Tax Band: E
Tenure: Freehold
Your home may be repossessed if you do not keep up repayments on your mortgage.
There may be a fee for mortgage advice. The actual amount you pay will depend upon your circumstances. The fee is up to 1% but a typical fee is 0.3% of the amount borrowed.
Similar Properties
Looking To Sell Or Let?
Rettie is one of the most trusted and well-respected names in property. Our unrivalled market knowledge helps people from around the world buy, sell, let and develop property in Scotland and the North East of England - from city apartments and rural cottages to large townhouses and prime country homes, farms and estates. We deal with some of the most prestigious properties on the market, but provide the same exceptional standards of service and value for money to all our clients.
