Flat 2/1, 6 Bedford Street, Laurieston, Glasgow City, G5 9AJ
Property Description
Under offer at Closing - Thursday 3rd July 2025.
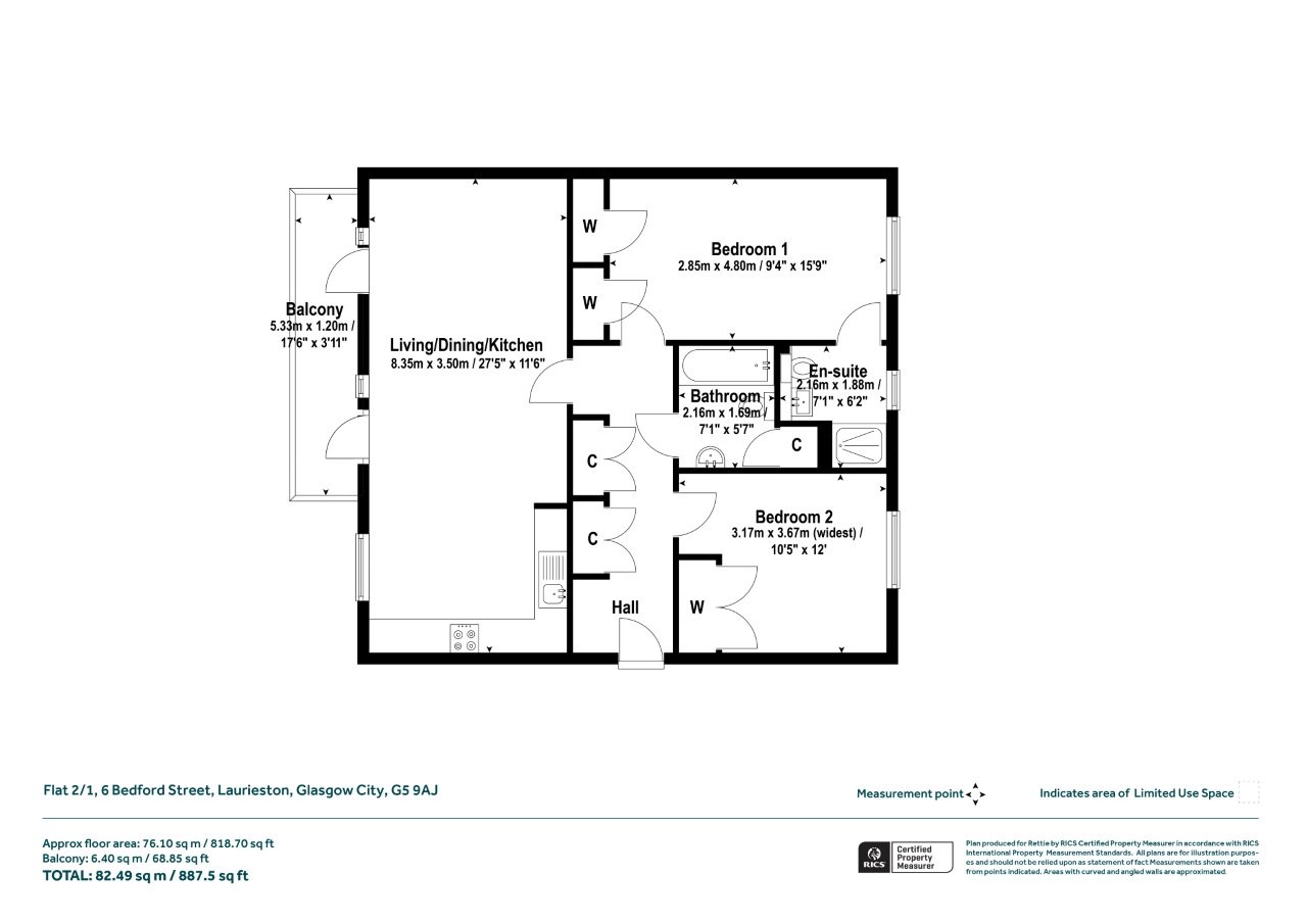
Located within the sought-after and award-winning Laurieston Living Development on the edge of Glasgow’s City Centre, this exceptionally spacious second floor two-bedroom apartment spans approximately 829 sq ft internally. It boasts a south-facing private balcony of over 17’6” , a stylish open-plan layout with the kitchen set back from the living area, and is presented in immaculate condition, having been beautifully maintained and thoughtfully styled throughout. This modern and rarely available apartment also benefits from excellent built-in storage, two generously sized double bedrooms, and high-quality finishes throughout. The location continues to appeal to professionals seeking proximity to the City Centre, with the Barclays Hub at Tradeston, the Financial Services District less than half a mile away, and the Merchant City within easy walking distance.
Accessed via secure entry with stair access, the internal layout comprises: welcoming reception hallway with two storage cupboards, bright and spacious living/dining room with direct access to a private south-facing balcony; modern kitchen with matt white units and integrated appliances; two double bedrooms to the rear with fitted wardrobes(the main bedroom benefits from an en-suite bathroom); and a contemporary bathroom with a white three-piece suite and over-bath shower. The property benefits from gas central heating, high-quality floor coverings, an EPC Band B rating, and an allocated parking space. Early viewing is highly recommended to appreciate the generous proportions and stylish interior of this standout apartment.
Situation
Located just south of Glasgow City Centre, the property is a short walk from unquestionably one of the most desirable and prominent social locations Glasgow has to offer, with a wealth of amenities including both general and specialist shopping, cinemas and up-market bars and restaurants. It is also convenient to the Merchant City, Glasgow Nautical College, Strathclyde & Caledonian Universities, the Glasgow School of Art, the Royal Conservatoire of Scotland, the Theatre Royal, the Glasgow Concert Hall and the newly re-developed Citizens Theatre.
Public transport and road links are exceptionally convenient. The area benefits from easy access to frequent public transport at nearby Central and Queen Street Train Stations and Buchanan Street Bus Station. Bridge Street Subway Station, providing easy access to the City Centre and West End, is a 5-minute walk from the property and GlasgowAirport can be reached within a 20-minute taxi ride. The M8, M74 and M77 Motorways can be accessed by car within minutes.
Travel Directions
On foot from the Jamaica Bridge, head south on Bridge Street, passing Bridge Street Subway Station. Before you approach the O2 Academy, turn left into Bedford Street and proceed east, continue straight on along Bedford Street where you will find the entrance to No. 6 towards the end of the block, set back from the gardens, on the far left-hand side.
More Details
EPC: B
Council Tax Band: C
Tenure: Freehold
Your home may be repossessed if you do not keep up repayments on your mortgage. There may be a fee for mortgage advice. The actual amount you pay will depend upon your circumstances.
Similar Properties
Looking To Sell Or Let?
Rettie is one of the most trusted and well-respected names in property. Our unrivalled market knowledge helps people from around the world buy, sell, let and develop property in Scotland and the North East of England - from city apartments and rural cottages to large townhouses and prime country homes, farms and estates. We deal with some of the most prestigious properties on the market, but provide the same exceptional standards of service and value for money to all our clients.
