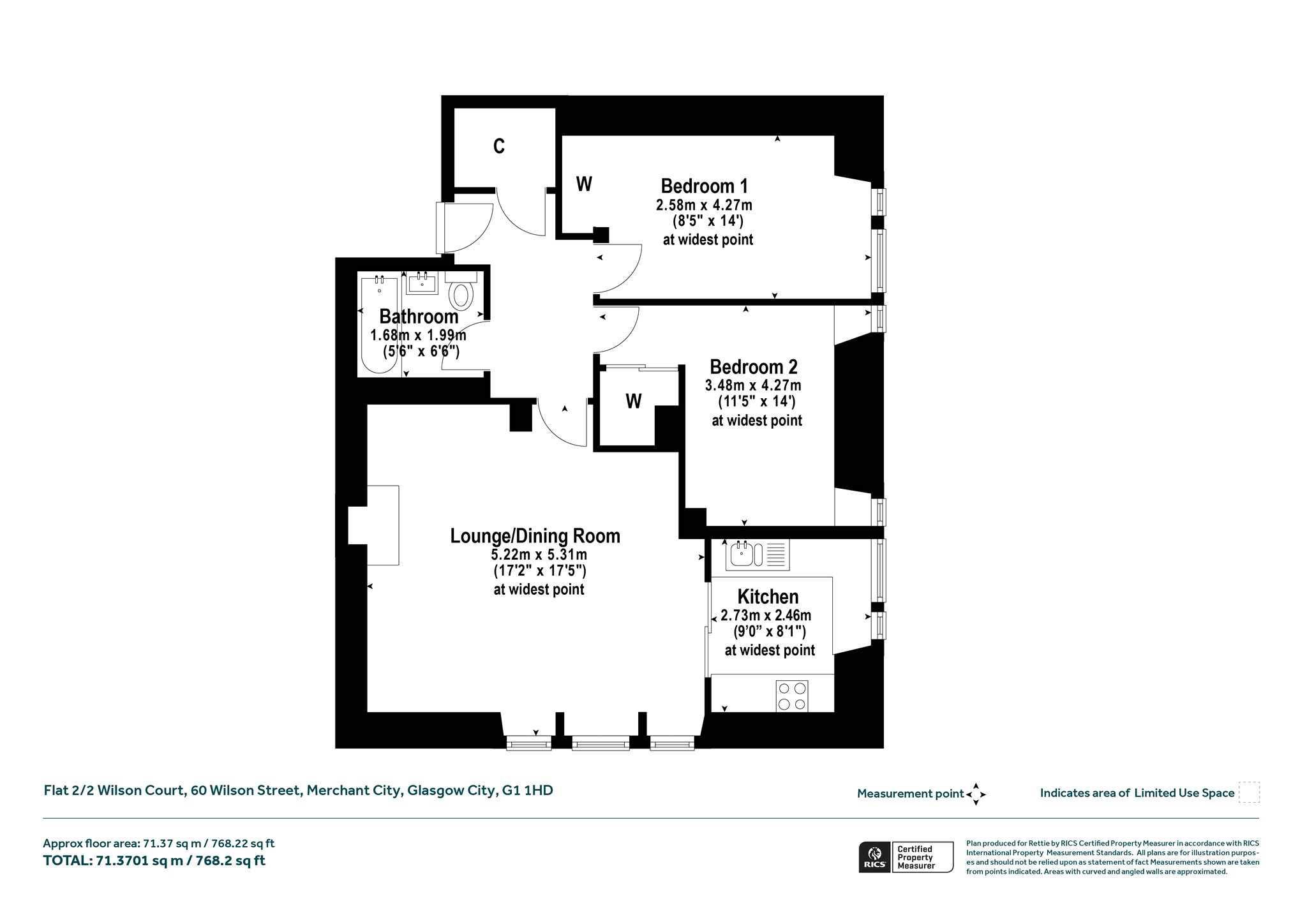
Flat 2/2 Wilson Court, 60 Wilson Street, Merchant City, Glasgow City, G1 1HD
Offers Over £229,000
Apartment
2 Bedrooms
1 Bathroom
1 Reception Room
732 sq.ft
On Street/Permit
Property Description
Set within a striking blond sandstone warehouse building of circa 1790, this generous two-bedroom warehouse apartment is within a lovely development forming an integral part of the regeneration of the Merchant City. Subsequently undergoing an extensive refurbishment programme in line with Historic Scotland listed building guidelines, in 2014, repair works included a new roof, lead work, guttering, windows replaced throughout with double glazing and the sandstone stone cleaning revealed the buildings original character. The location is superb with an excellent selection of City amenities on your doorstop as well as transport links and the property offers the considerable benefit of access to Glasgow City Council Residents Permit Parking.
Entered via secure communal front door and additional secure door to landing, the apartments interior has been well maintained during its current ownership with notable highlights including its lovely and bright corner position offering aspects east and south. The accommodation extends to 768 sq ft and comprises welcoming reception hall with walk in cupboard; impressive main living/dining room with three modern sash and case double glazed window facing south over Wilson Street; a separate modern kitchen off set from the living space complete base and wall units, appliances to include oven hob and hood, washing machine and fridge freezer and window with outlook east to The Old Sheriff Court building and beyond; main bathroom with white three piece suite and over bath shower; two double bedrooms both with fitted wardrobes. The property has electric heating and double glazed windows and some furnishings may be available by seperate negotiation.
Situation
This property is centrally situated in the heart of the Merchant City, an area of Glasgow’s City Centre which has benefitted from significant and ongoing redevelopment over the last few decades, with a mix of both residential and commercial redevelopment. This location offers unquestionably one of the most envied and prominent social locations Glasgow has to offer with wealth of amenities including both general and specialist shopping, wine bars and many highly acclaimed restaurants and is also conveniently located for access to the City Centre. The property is in proximity to Strathclyde & Caledonian Universities, the Glasgow School of Art, the S.E.C. and The Clyde Auditorium. The area benefits from frequent public transport with easy access to Central and Queen Street Train Stations, and St Enoch subway stations. Public transport and road links are exceptional.
Travel Directions
On foot from George Square head south onto South Frederick Street towards Ingram Street. At the traffic lights turn left onto Ingram Street. At the junction with Glassford Street, turn right and continue south on Glassford taking the second road on the left into Wilson Street where you will find the entrance to No. 60 halfway along the block on the left-hand side.
More Details
EPC: C
Council Tax Band: D
Tenure: Freehold
Your home may be repossessed if you do not keep up repayments on your mortgage. There may be a fee for mortgage advice. The actual amount you pay will depend upon your circumstances.
Similar Properties
Looking To Sell Or Let?
Rettie is one of the most trusted and well-respected names in property. Our unrivalled market knowledge helps people from around the world buy, sell, let and develop property in Scotland and the North East of England - from city apartments and rural cottages to large townhouses and prime country homes, farms and estates. We deal with some of the most prestigious properties on the market, but provide the same exceptional standards of service and value for money to all our clients.
