Property Description
Occupying a top-floor position within this striking red sandstone building, originally constructed in 1905 and converted into residential apartments in 1999, this unique property enjoys north-east corner aspects with superb city views from its elevated setting. Forming part of the former Muir Simpson’s furniture warehouse, the six-storey landmark commands a prominent corner at Pitt Street and Sauchiehall Street, on the edge of Glasgow City Centre. Rarely available in this location, the two-bedroom apartment combines contemporary style with character features, enjoying bright dual aspects and immediate access to a wealth of city amenities, including those offered by the Sauchiehall Street Avenues project.
The location is exceptionally convenient, perfectly placed for rail, bus and car transport links. The property is within walking distance of Glasgow School of Art, Glasgow Dental School, The Royal Conservatoire, Strathclyde University, Glasgow University; the international financial services district and the amenities of the City Centre and West End. Finnieston’s renowned bars and restaurants are also less than half a mile away. There is also access to Glasgow City Council Residents Parking permit scheme.
The property benefits from fresh décor, modern electric heating and double glazing. Access is via a secure entry system at ground floor level, with both lift and stair access to all floors. The building is very well maintained, offering residents peace of mind and excellent communal upkeep.
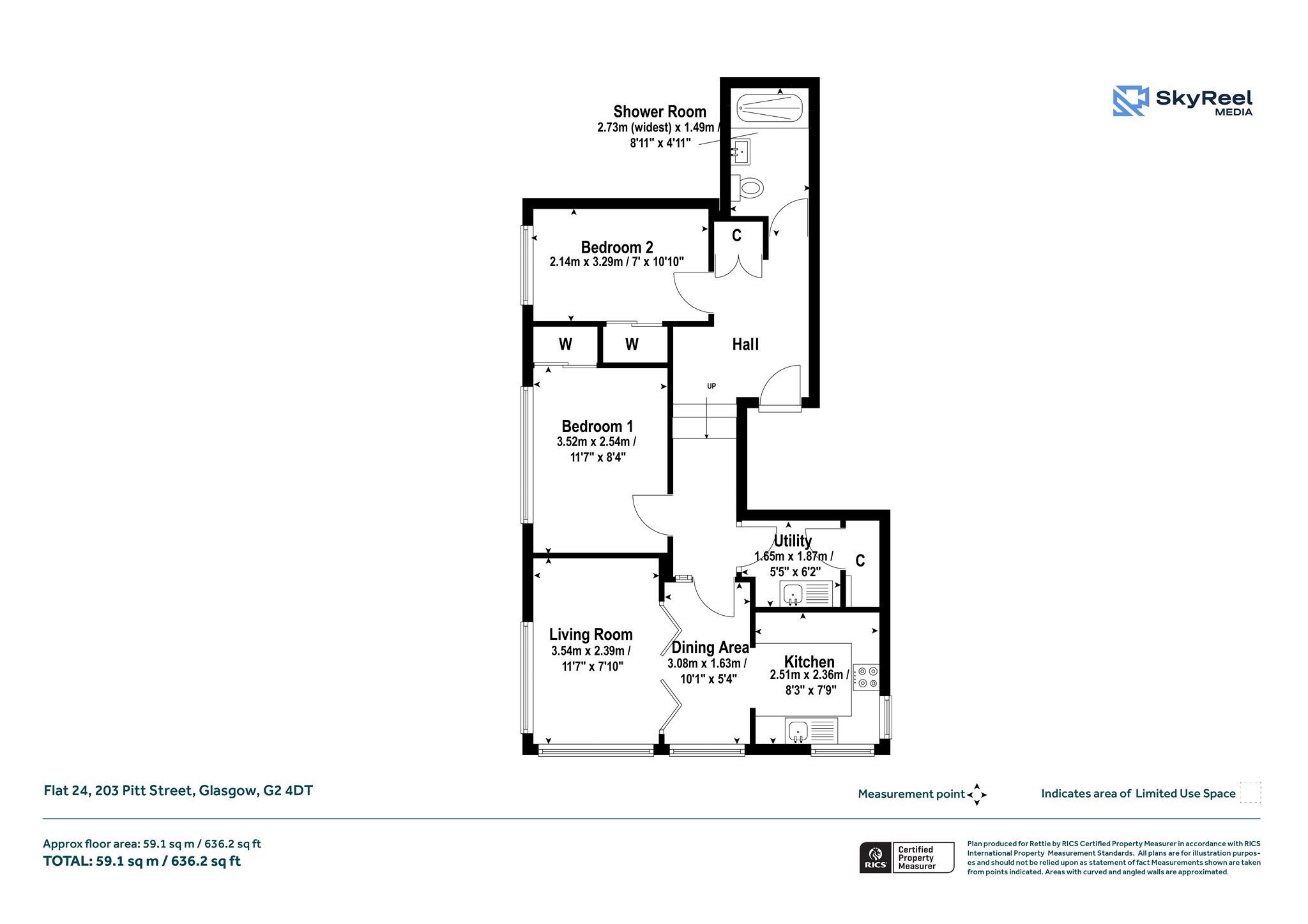
Extending to approximately 636 sq ft, the accommodation comprises: welcoming entrance hallway with storage, luxury shower room and a double bedroom with fitted wardrobes. Stairs lead to a second double bedroom with fitted wardrobes, a practical utility room and an open-plan living space, where full-length windows flood the area with light and offer expansive north and east-facing views across the city skyline. The living, dining and kitchen zones are cleverly defined with bi-fold partitions, while the modern fitted kitchen includes a designated dining bar.
Situation
Located on Sauchiehall Street, an area of Glasgow’ City Centre which has benefitted from significant redevelopment over the years with the recently completed Avenues Project.
The properties offer residential accommodation in a predominantly commercial street. It is also conveniently located for access to the International Financial Services District, the City Centre, the Merchant City, Finnieston and the West End, where a wealth of amenities including both general and specialist shopping, wine bars and many highly acclaimed restaurants can be found. The property is in close proximity to the Glasgow School of Art; Royal Conservatoire, Strathclyde, Caledonian & Glasgow Universities. The area benefits from frequent public transport with easy access to nearby stations; Charing Cross, Central and Queen Street Train Stations. The nearby M8/M80 ensures good commuter access throughout the Central Belt and is within easy reach of some of Scotland’s most impressive countryside attractions.
Travel Directions
Walking or driving from our office at 147 Bath Street, continue along Bath Street heading west, turn third right into Pitt Street, and just before the junction with Sauchiehall Street you will find the entrance to No. 203 on the left-hand side.
More Details
EPC: D
Council Tax Band: D
Tenure: Freehold
Your home may be repossessed if you do not keep up repayments on your mortgage. There may be a fee for mortgage advice. The actual amount you pay will depend upon your circumstances.
Similar Properties
Looking To Sell Or Let?
Rettie is one of the most trusted and well-respected names in property. Our unrivalled market knowledge helps people from around the world buy, sell, let and develop property in Scotland and the North East of England - from city apartments and rural cottages to large townhouses and prime country homes, farms and estates. We deal with some of the most prestigious properties on the market, but provide the same exceptional standards of service and value for money to all our clients.
