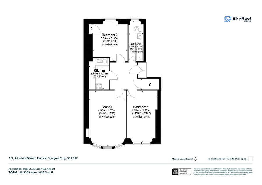
1/2, 20 White Street, Partick, Glasgow, G11 5RP

Partick, Glasgow, G11 5RP
Sold
Pin View on map

Offers Over £195,000

House

First Floor Apartment

Bed

2 Bedrooms

Bathroom

1 Bathroom

Reception

1 Reception Room

Size

606 sq.ft

Tree

Communal Garden

Parking

On Street/Permit

Telephone

Property Description

Enjoying a southerly outlook and occupying a first-floor position within a traditional red sandstone tenement building is this tastefully presented two-bedroom flat. The internal accommodation is bright and well presented with notable features including a lovely bay windowed lounge; two bedrooms; internal kitchen and modern three-piece bathroom and good storage. The property is located within the heart of the West End and is close to an exceptional selection on amenities on Byres Road, Hyndland Street and Dumbarton Road together with the University of Glasgow and has excellent transport links with both Kelvinhall Underground and Partick mainline station in good proximity.

Accessed via secure entry to communal entrance close with stairs to upper floors and hallway to rear communal garden area. There are storm doors to entrance vestibule; reception hallway with large storage cupboard; impressive front lounge with three section bay window, ceiling cornice, sanded wooden floorboards and shelved press; internal kitchen with a range of wall units and undercounter space for freestanding appliances; bedroom one to front with two section window to front; bedroom two with press cupboard housing the boiler (flued to rear) and window to rear; modern three piece bathroom comprising bath, over bath shower, toilet and wash hand basin, all finished in white . The property has gas central heating, UPVC double glazed windows, shared communal area to the rear and benefits from the availability of on street residents’ parking permit.

More Details

Situation: Communal Garden
Council Tax Band: C
Tenure: Freehold

Contact Us

Lisa Pitchers MRICS

Lisa Pitchers MRICS

Associate Director
Craig Roberts

Craig Roberts

Mortgage & Protection Advisor
Jennifer Ward

Jennifer Ward

Senior Sales Negotiator
Mortgage Calculator
Monthly payments
Please set an interest rate.

Your home may be repossessed if you do not keep up repayments on your mortgage.

There may be a fee for mortgage advice. The actual amount you pay will depend upon your circumstances. The fee is up to 1% but a typical fee is 0.3% of the amount borrowed.

Tax Calculator
LBTT calculator for properties purchased in Scotland. Stamp Duty calculator for properties purchased in England.
Land & buildings transaction tax (LBTT)
= £0
New build house with stone and timber cladding

Looking To Sell Or Let?

Rettie is one of the most trusted and well-respected names in property. Our unrivalled market knowledge helps people from around the world buy, sell, let and develop property in Scotland and the North East of England - from city apartments and rural cottages to large townhouses and prime country homes, farms and estates. We deal with some of the most prestigious properties on the market, but provide the same exceptional standards of service and value for money to all our clients.