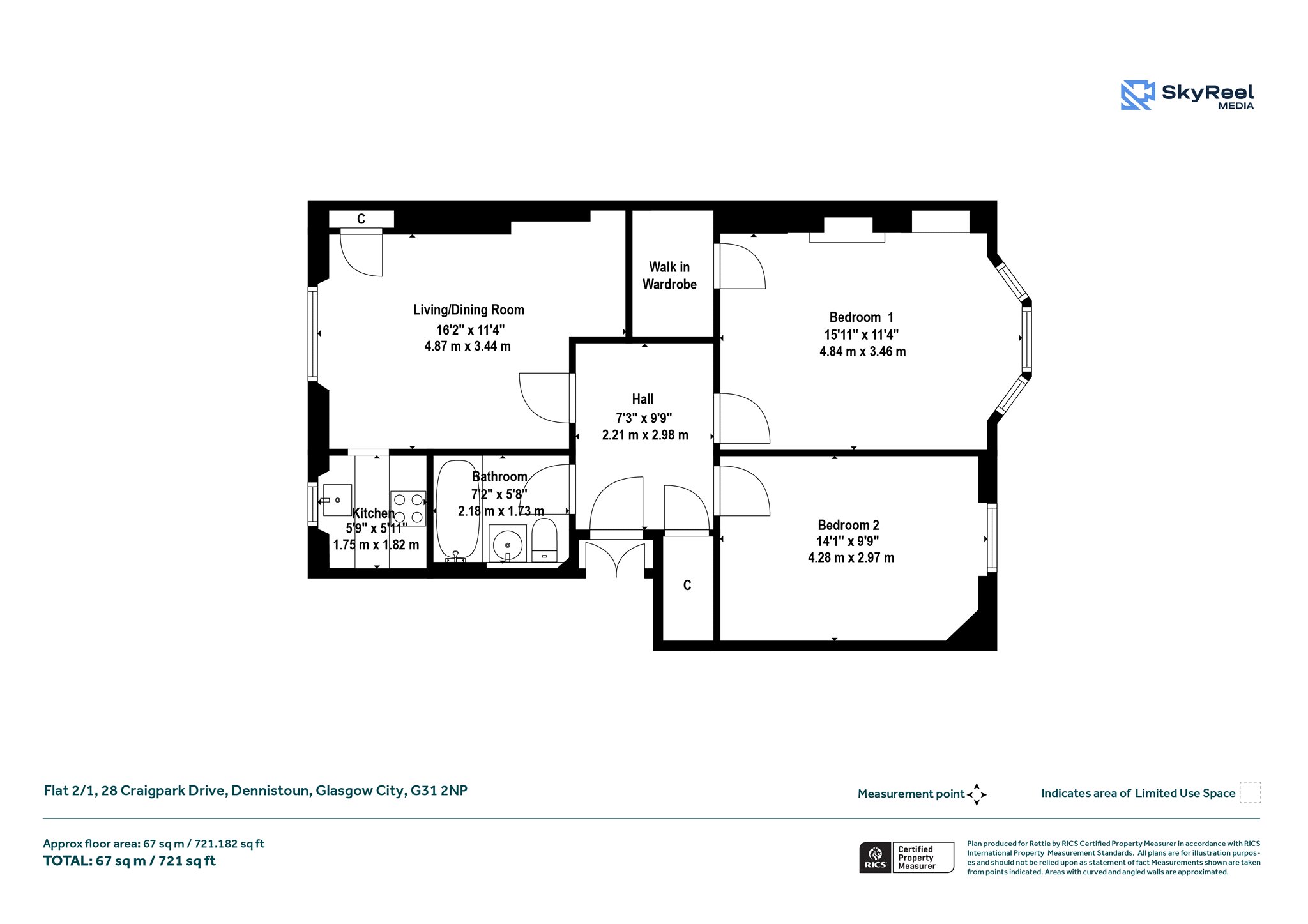
Flat 2/1, 28 Craigpark Drive, Dennistoun, Glasgow City, G31 2NP
Offers Over £199,000
Upper Floor Apartment
2 Bedrooms
1 Bathroom
1 Reception Room
732 sq.ft
On Street/Permit
Property Description
Offering contemporary living with a reinterpretation of the conventional tenement layout and a wonderful blend of modern and traditional features, this second floor two-bedroom property extends to over 732 sq ft, it is beautifully presented and has been lovingly upgraded, restored and modernised during its current ownership. It is located within the incredibly popular and convenient ‘Drives' of Dennistoun, a suburb to the east of Glasgow’s City Centre. The property itself is situated between Alexandra Parade and Duke Street and is therefore exceptionally well place to take advantage of an enviable selection of local amenities nearby and great transport links. The property has fresh décor, sash and case windows, gas central heating with stylish black modern column radiators and further benefits from both a paved rear courtyard and on street parking.
Accessed via security entry to a well maintained communal close, there is staircase to second floor front door entry with storm doors. The welcoming reception hall has light oak effect laminate wood flooring continued throughout the property and large cupboard for storage, with the living/dining room to the rear of the property it offers lovely south facing aspects over the buildings paved rear courtyard and drying area and generous dining space within the recess, set back from the living space is a compact galley style kitchen re-fitted with a range of base and wall units and shelving and integrated appliances and modern finishes and window facing south. Both double bedrooms are to the front of the property offering lots of space and with windows facing over Craigpark Drive, bedroom one benefits from a walk-in wardrobe, lovely feature fireplace and three section bay window. There is a re-fitted bathroom with white three-piece white suite, over bath shower cubicle and tiled floor and wall coverings.
Situation
The location is superb with a range of amenities and public transport links just minutes away. The Drives are well placed for both Duke Street and Alexandra Parade where you will find a range of popular shops, delis, restaurants and transport links from the local Duke Street train station or Belgrove. The property is just over a mile from the City Centre and popular Merchant City and in walking distance to both Alexandra Park offering views to Ben Lomond from its highest point and Glasgow Green Park. Early viewing recommended to appreciate the proportions and condition of this flat. A great opportunity for both families and young professionals working in the City Centre or commuting to Edinburgh.
Travel Directions
By car from George Square, proceed east on George Street, crossing the junction at High Street onto Duke Street. Continue along Duke Street for approx. 1 mile passing the junction with Belgrove Street, turn left onto Craigpark and head up the hill. Continue north and at the second junction, turn right onto Craigpark Drive where you will find the entrance to No. 28 almost immediately on the right-hand side.
More Details
Situation: Contact branch
Council Tax Band: B
Tenure: Freehold
Your home may be repossessed if you do not keep up repayments on your mortgage.
There may be a fee for mortgage advice. The actual amount you pay will depend upon your circumstances. The fee is up to 1% but a typical fee is 0.3% of the amount borrowed.
Similar Properties
Looking To Sell Or Let?
Rettie is one of the most trusted and well-respected names in property. Our unrivalled market knowledge helps people from around the world buy, sell, let and develop property in Scotland and the North East of England - from city apartments and rural cottages to large townhouses and prime country homes, farms and estates. We deal with some of the most prestigious properties on the market, but provide the same exceptional standards of service and value for money to all our clients.
