Flat 1/2, 309 Golfhill Drive, Dennistoun, Glasgow City, G31 2NZ
Property Description
Under offer at Closing date - Thursday 2nd October 2025.
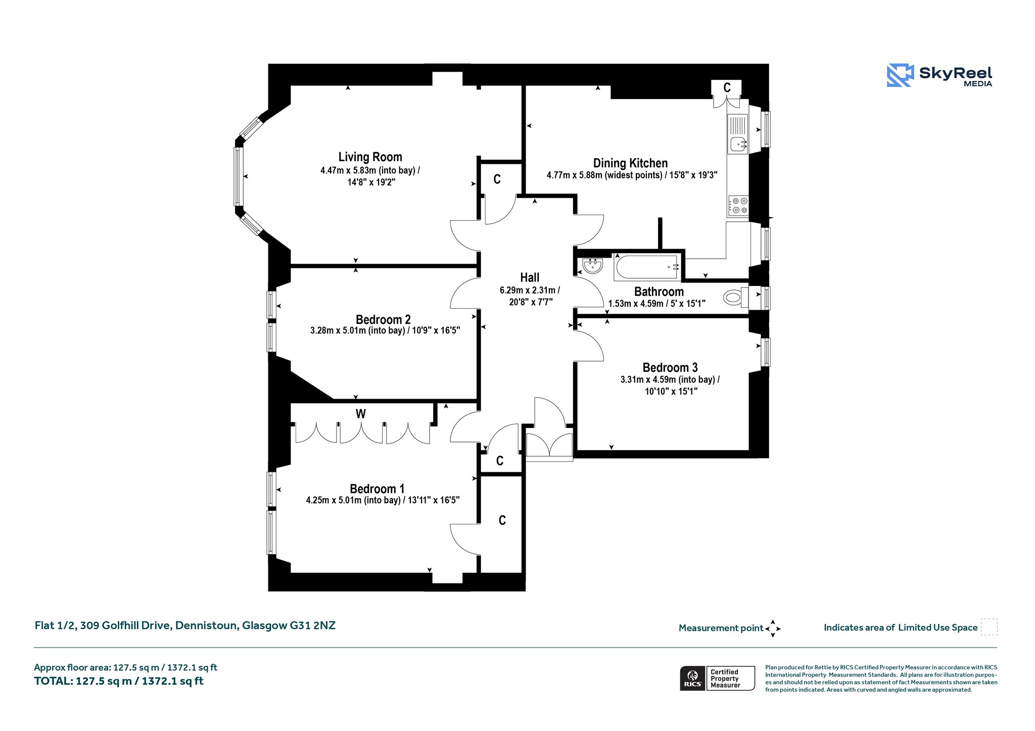
Beautifully refurbished and ready to move into, this spacious three-bedroom first floor tenement flat is set within the ever-popular ‘Drives’ of Dennistoun, just over a mile from Glasgow City Centre and Merchant City. Combining a wealth of traditional features and with stylish modern upgrades, the property extends to a very generous 1372 sq ft, has an expansive dining kitchen with dining recess and offers excellent storage. With great local shops, cafés and restaurants nearby, along with superb transport links, this is a fantastic home in a highly convenient and sought after location. Just 15-20 minutes from Glasgow Airport and only 45 minutes (without traffic) to Edinburgh, which is handy for early morning work related flights.
Accessed via secure entry to the communal close, a striking example of traditional tenement with moulded wall panels and cement floor with inlaid design and stairs to storm door entry. Welcoming entrance hallway spanning over 20 ft and with two storage cupboards. The living room features an impressive three-section bay window and deep recess with shelving, modern kitchen with lots of natural light from two windows facing over the communal rear gardens, kitchen island and dining recess, there are three spacious double bedrooms with the principal bedroom having a walk-in cupboard and a wall of fitted wardrobes. The family bathroom has white three-piece suite with claw foot roll top bath and over bath shower.
The property retains many period features, including decorative cornicing, press shelving and attractive door architraves, original doors and sanded original floorboards. Further benefits include a gas central heating, double glazing, excellent storage, and access to shared rear courtyard gardens. Free on-street parking is also available directly outside.
Situation
The location is superb with a range of amenities and public transport links just minutes away. The property is well placed for both Duke Street and Alexandra Parade where you will find a range of popular shops, delis, restaurants and transport links from the local Alexandra Parade train station. The property is just over a mile from the City Centre and popular Merchant City and in walking distance to both Alexandra Park offering views to Ben Lomond from its highest point and Glasgow Green Park. Early viewing recommended to appreciate the proportions and condition of this flat. A great opportunity for both families and young professionals working in the City Centre or commuting to Edinburgh.
Travel Directions
By car from our George Square, proceed east on George Street, crossing the junction at High Street into Duke Street. Continue along Duke Street for approx. 1 mile turning left into Whitehill Street, head north towards Alexandra Parade and take the sixth turning to the right into Golfhill Drive where you will find the entrance to No. 309 towards the middle of the street on the left-hand side.
More Details
EPC: C
Council Tax Band: C
Tenure: Freehold
Your home may be repossessed if you do not keep up repayments on your mortgage. There may be a fee for mortgage advice. The actual amount you pay will depend upon your circumstances.
Similar Properties
Looking To Sell Or Let?
Rettie is one of the most trusted and well-respected names in property. Our unrivalled market knowledge helps people from around the world buy, sell, let and develop property in Scotland and the North East of England - from city apartments and rural cottages to large townhouses and prime country homes, farms and estates. We deal with some of the most prestigious properties on the market, but provide the same exceptional standards of service and value for money to all our clients.
