Flat 2/1, 11 Chisholm Street, Trongate, Glasgow City, G1 5HA
Property Description
Under offer at Closing Date - Friday 31st October 2025.
This stylish and contemporary Glasgow tenement flat offers an open outlook west towards the Tron Theatre and rear views from the second bedroom, over a well-kept rear ‘close’ courtyard. The two-bedroom, two-bath property offers a tasteful blend of both modern and traditional features and is centrally located within a blonde sandstone block, situated just south of Trongate in Glasgow’s renowned Artistic Quarter where you will find a mix of galleries, print studios, artist run spaces alongside independent bars and cafes as well as having great transport links and access to a residents parking permit on street.
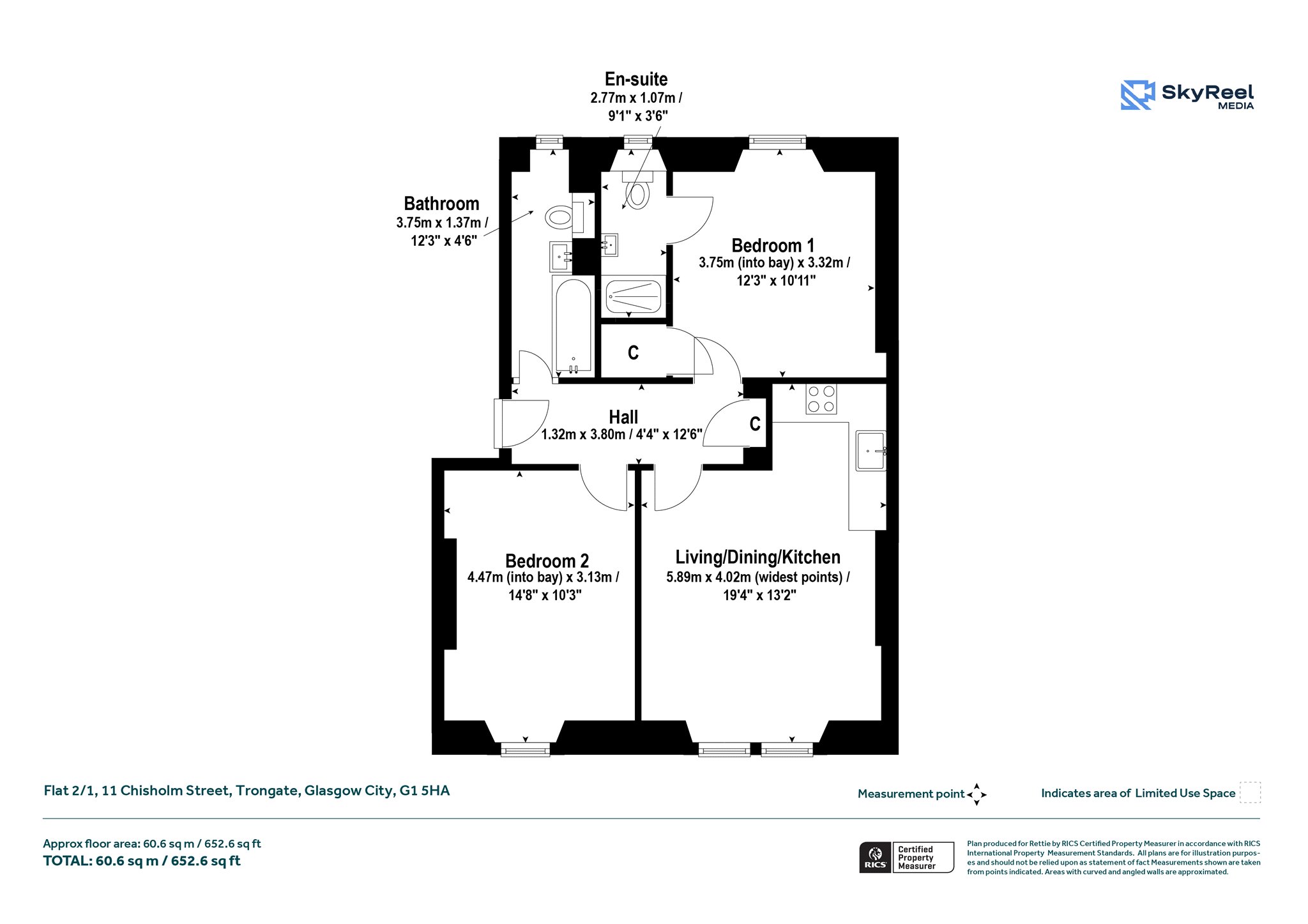
Accessed via secure entry to common close; staircase to second floor front door entry; welcoming reception hall leads to all main apartments; a generous living room spanning over 19 ft into recessed kitchen and with wooden flooring, chic fresh décor and two tall UPVC double glazed windows viewing west over Chisholm Street; open plan kitchen with a range of base and wall mounted units, integrated appliances and tiled wall finishes, bedroom one is a sizable double with window to west; main bathroom has three-piece white suite and over bath shower, fully tiled around bath area and tall UPVC double glazed window facing east; double bedroom has a large built in storage cupboard, tall UPVC double glazed windows viewing east and an en suite shower room. The property has gas central heating and further benefits from access to a Residents Permit for parking.
Situation
Located in Trongate and known locally as the Artists Quarter, the property is situated on the south edge of the Merchant City, an area of Glasgow which has benefitted from significant revitalization over the last few decades, with a mix of both residential and commercial redevelopment. This location offers unquestionably one of the most envied and prominent social locations Glasgow has to offer. Public transport and road links are also exceptional. The property is conveniently located for access to the City Centre, International Financial Services District, where a wealth of amenities including both general and specialist shopping, wine bars and many highly acclaimed restaurants can be found. The property is in close proximity to Strathclyde and Caledonian Universities and the City of Glasgow College. The area benefits from frequent public transport with easy access to nearby stations; High Street, Argyle Street and main lines at Queens Street and Central Train Stations. The nearby M8/M80 ensures good commuter access throughout the Central Belt and is within easy reach of some of Scotland’s most impressive countryside attractions.
Travel Directions
Walking from George Square continue south onto South Frederick Street. At the lights turn left onto Ingram Street passing by the Italian Centre, continue east along Ingram Street and at the junction with Albion Street (south) turn right into Albion Street and head south, eventually crossing over Trongate into Chisholm Street where you will find No. 11 half-way down the street on the left-hand side.
More Details
Situation: Contact branch
Council Tax Band: B
Tenure: Freehold
Your home may be repossessed if you do not keep up repayments on your mortgage.
There may be a fee for mortgage advice. The actual amount you pay will depend upon your circumstances. The fee is up to 1% but a typical fee is 0.3% of the amount borrowed.
Similar Properties
Looking To Sell Or Let?
Rettie is one of the most trusted and well-respected names in property. Our unrivalled market knowledge helps people from around the world buy, sell, let and develop property in Scotland and the North East of England - from city apartments and rural cottages to large townhouses and prime country homes, farms and estates. We deal with some of the most prestigious properties on the market, but provide the same exceptional standards of service and value for money to all our clients.
