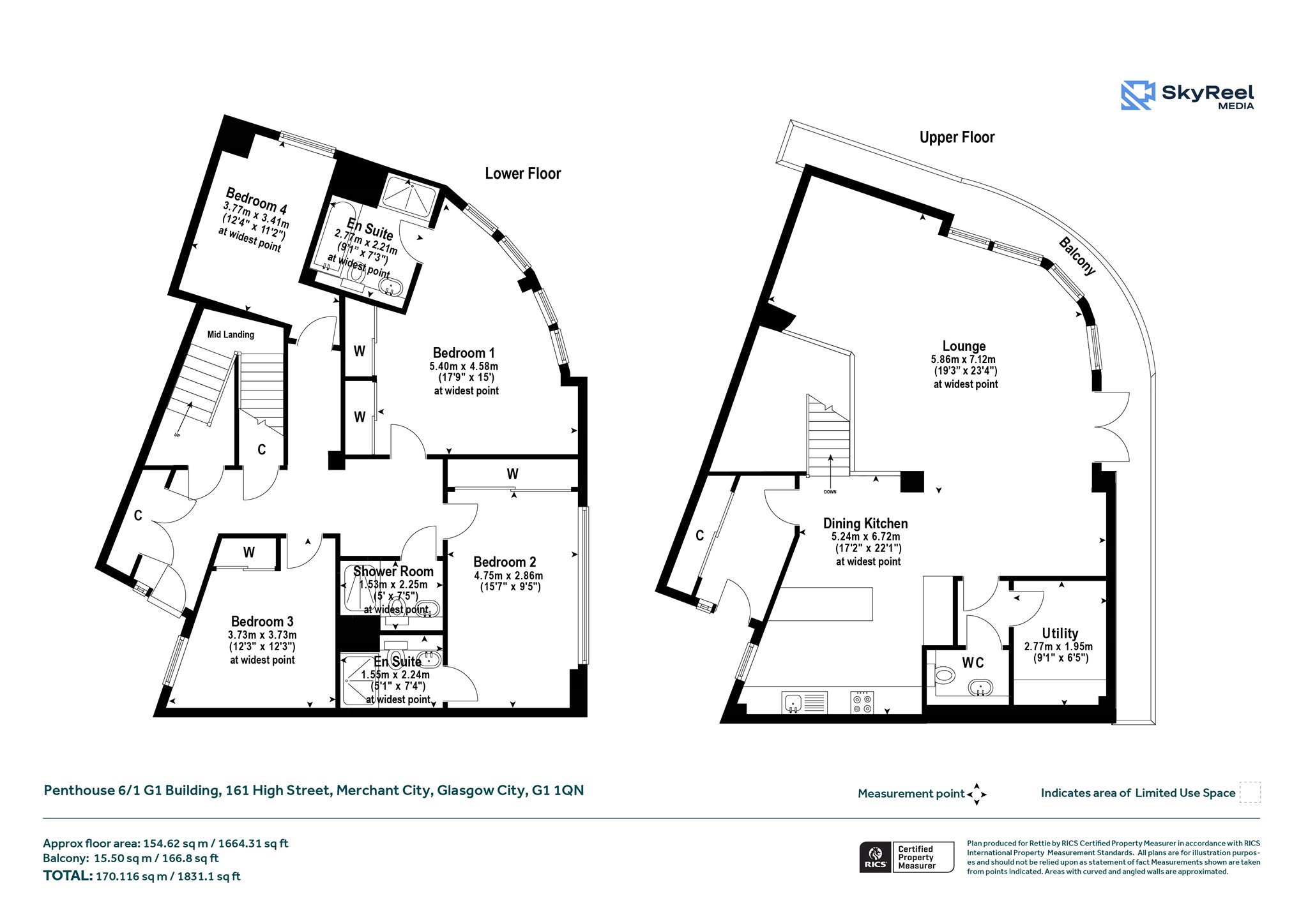
Penthouse 6/1 G1 Building, 161 High Street, Merchant City, Glasgow City, G1 1QN
Offers Over £429,000
Penthouse Apartment
4 Bedrooms
4 Bathrooms
1 Reception Room
1,873 sq.ft
Secure Parking
Property Description
This spectacular corner penthouse is positioned at the gateway to Glasgow’s iconic Merchant City. Offering elevated, triple aspect panoramic views, exceptional natural light, and immediate access to one of the city’s most vibrant cultural districts.
With secure parking and a private wraparound terrace there are striking views east, south and west over the city skyline and beyond, this spacious duplex penthouse apartment extends to circa 1,887 sq ft. The flexible accommodation spans over two floors and provides four bedrooms, an extensive open plan living dining kitchen space with feature curved walls, there are three bathrooms, a cloakroom W.C., a spacious utility room and well considered storage. The property has fresh décor, double glazing, gas central heating and an excellent EPC Band C.
Rarely available, this style of apartment represents a true Premier Penthouse within a landmark Merchant City building. Completed in 2005–2006, the development played a key role in the ongoing regeneration of the area. Centred around residents’ courtyard gardens, the development offers a stylish and contemporary living environment, of which this exceptional apartment is a standout example.
Viewing is highly recommended to fully appreciate the quality and modern contemporary appeal of this impressive property
Situation
Situated on the corner of High Street and Ingram Street at the start of the Merchant City, this address enjoys one of Glasgow’s most sought after and vibrant social locations. The area offers an exceptional range of amenities, including boutique and specialist shopping, stylish wine bars, and numerous highly acclaimed restaurants. Over recent decades, the Merchant City has undergone extensive regeneration, evolving into a dynamic destination neighbourhood with a blend of residential, commercial and cultural developments. The property is ideally placed for Glasgow’s Style Mile and the International Financial Services District, both only a short walk away. Transport connections are excellent, with frequent services and easy access to Queen Street and Central Stations, as well as Buchanan Street and St Enoch subway stations. Road links are strong, and parking spaces are available to rent nearby.
Travel Directions
Walking from George Square continue South onto South Frederick Street. At the lights turn left onto Ingram Street passing by the Italian Centre on the left. Crossing at the pedestrian lights on the Glassford Street Junction, continue heading east on Ingram Street and on to the junction with High Street, turning left into High Street, you will find the entrance to G1 161 High Street almost immediately on the left-hand side. Once inside the building, take the lift to the seventh floor.
More Details
Situation: Balcony
Council Tax Band: G
Tenure: Freehold
Your home may be repossessed if you do not keep up repayments on your mortgage.
There may be a fee for mortgage advice. The actual amount you pay will depend upon your circumstances. The fee is up to 1% but a typical fee is 0.3% of the amount borrowed.
Similar Properties
Looking To Sell Or Let?
Rettie is one of the most trusted and well-respected names in property. Our unrivalled market knowledge helps people from around the world buy, sell, let and develop property in Scotland and the North East of England - from city apartments and rural cottages to large townhouses and prime country homes, farms and estates. We deal with some of the most prestigious properties on the market, but provide the same exceptional standards of service and value for money to all our clients.
