Offers Over £179,000
Apartment
2 Bedrooms
2 Bathrooms
1 Reception Room
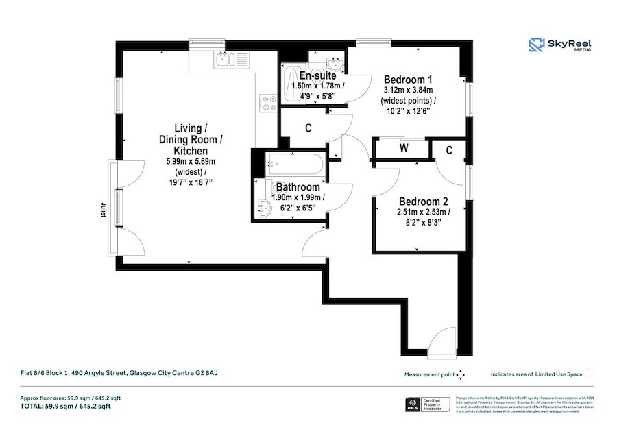
678 sq.ft
Secure Parking
Property Description
Offering excellent open outlooks from its eighth floor position and sought after allocated parking, this modern two-bedroom apartment is situated within the iconic Argyle Building, a landmark modernist building completed circa 2009, located on the western edge of the City Centre and well located for Glasgow City Centre’s Financial Services District with great transport links. The property itself is very well presented with notable features including a spacious open plan living/dining/kitchen with full height double glazed windows and patio style doors offering west facing aspects above the grounds of the Marriot Hotel and west ward skyline beyond. Located on the western edge of the City Centre and well situated for Glasgow City Centre’s Financial Services District as well as nearby Finnieston, the location has great transport links with nearby Anderston Station and the M8 motorway network in an area undergoing significant regeneration with the Glasgow Avenues Project on Argyle Street.
Accessed via secure entry to communal residents’ entrance, with concierge on site during the week, there is lift and stair access to each level; a welcoming L-shaped reception hallway, impressive open plan living/dining/kitchen of over 19’ 7” and having double glazed full height windows and Paris style balcony with aspects west; the kitchen area is complete with a range of base and wall mounted units with integrated oven, hob, hood, fridge freezer and washing machine; bedroom one has window to rear of building, fitted double wardrobes, a storage cupboard housing the hot water cylinder and en suite shower room; bedroom two has window to rear of building and a storage cupboard; there is a spacious three-piece bathroom completed with part tiled wall coverings; the property has recently re-fitted carpeted and laminate wood floor coverings, electric heating and an allocated secure parking space in the buildings car park which can be seen from the bedrooms.
Situation
Located on Argyle Street on the edge of Glasgow City Centre and International Financial Services District, an area of Glasgow which has benefitted from significant and planned redevelopment in the last few decades with a mix of both residential and commercial developments. The City Centre offers unquestionably one of the most envied and prominent social locations, the apartment is conveniently located for access to a wealth of amenities including both general and specialist shopping, wine bars and many highly acclaimed restaurants located in the nearby the Style Mile and Merchant City; educational institutions to include Strathclyde & Caledonian Universities, the Glasgow School of Art; concert and conference centres at the SEC and The Clyde Auditorium. The area benefits from frequent public transport with easy access from Anderson Rail Station to Glasgow Central Train Station and St Enoch subway stations. Public transport and road links to the M8-motorway, are exceptional.
Travel Directions
On foot from our office on Bath Street continue East, turning 2nd right onto Wellington Street and proceed South, at the junction with Argyle Street, turn left and continue west towards where you will find No. 490 on the right-hand side just before the Marriot Hotel. On entering the building take one of the two passenger lifts to level eight.
More Details
Situation: Contact branch
Council Tax Band: E
Tenure: Contact Branch
Your home may be repossessed if you do not keep up repayments on your mortgage.
There may be a fee for mortgage advice. The actual amount you pay will depend upon your circumstances. The fee is up to 1% but a typical fee is 0.3% of the amount borrowed.
Similar Properties
Looking To Sell Or Let?
Rettie is one of the most trusted and well-respected names in property. Our unrivalled market knowledge helps people from around the world buy, sell, let and develop property in Scotland and the North East of England - from city apartments and rural cottages to large townhouses and prime country homes, farms and estates. We deal with some of the most prestigious properties on the market, but provide the same exceptional standards of service and value for money to all our clients.
