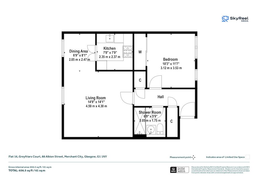
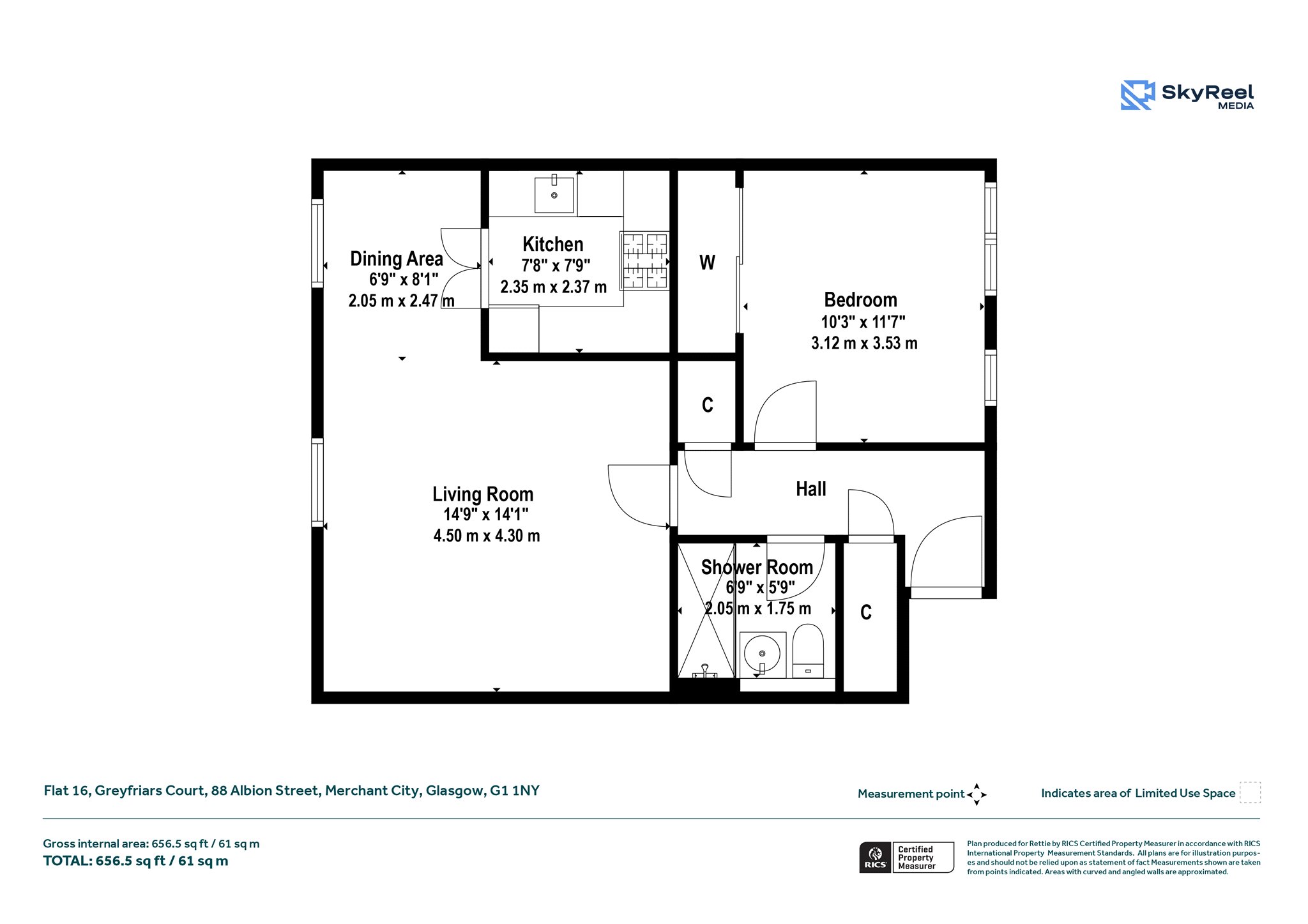
Flat 16, Greyfriars Court, 88 Albion Street, Merchant City, Glasgow, G1 1NY
Offers Over £179,000
Upper Floor Apartment
1 Bedroom
1 Bathroom
1 Reception Room
657 sq.ft
Communal Garden
Underground Parking
Property Description
Situated in the heart of the Merchant City, this appealing one bedroom apartment occupies a third (top) floor position within the well known Greyfriars Court development and offers bright, well proportioned accommodation together with the notable advantage of an allocated parking space within a secure underground residents’ car park. Visitors to Greyfriars Court are welcomed by an attractive internal courtyard that creates a unique sense of arrival, while the development’s location is exceptionally well placed for the enjoyment of an enviable selection of restaurants, bars and artisanal coffee shops.
The accommodation has been recently refreshed and as a result is well presented throughout. The layout is practical, comfortable and will appeal to a broad spectrum of buyers; particularly young professionals, students or those seeking a centrally located home with the valuable advantage of private parking.
The living and dining room is well proportioned, providing excellent space for both relaxing and entertaining, while the kitchen is conveniently positioned adjacent to the main living area for a coherent daily flow. The bedroom is a well sized double room and benefits from fitted storage and an outlook over the south facing courtyard, while the bathroom is fitted with a modern three piece shower suite. Storage is well catered for, with two large walk-in cupboards accessed from the reception hall, in addition to further storage available via access to an invaluable loft space.
Greyfriars Court is thought to have taken its name from the historic Greyfriars congregation that once occupied Albion Street, itself referencing the medieval Franciscan friary which stood in this part of Glasgow many centuries ago. The surrounding Merchant City district later developed during the 18th century as Glasgow’s prosperous merchants established warehouses and townhouses close to the river and Glasgow Cross. Today the area has been beautifully regenerated, transforming former commercial streets into one of the city centre’s most vibrant residential quarters.
The immediate area has an outstanding selection of restaurants, cafés and cultural venues quite literally on the doorstep. Renowned establishments including Six by Nico, Café Gandolfi and Caffè Enoteca are all within a few moments stroll, alongside numerous other popular eateries, cocktail bars and independent cafés throughout the Merchant City. The neighbourhood is also home to some of Glasgow’s most celebrated music and performance venues including the historic City Halls and Old Fruitmarket, ensuring a lively and engaging cultural scene throughout the year. George Square, the St Enoch Centre and the wider city centre are all easily walkable, while excellent transport links are provided by nearby High Street and Argyle Street train stations. For those travelling further afield, convenient access to the M8 motorway and Clyde Expressway allows for straightforward connections across the wider city and beyond.
Accommodation
- Secure communal entry.
- Signature Greyfriars Courtyard entrance providing a charming approach.
- Stairway to each level.
- Inviting reception hallway with two storage cupboards off.
- Lovely “L” shaped front lounge with two windows to the front and ample space for dining.
- Fitted kitchen with dark worktop surfaces complemented by white gloss cabinetry and geometric tiled splashback. With integrated microwave, gas hob and freestanding appliances.
- The bedroom enjoys a pleasant southward outlook over the Greyfriars entrance courtyard from a broad window with smaller secondary window ensuring brightness. The room also has a large integrated mirrored wardrobe.
- Three piece contemporary shower room with shower cubicle.
- Gas central heating.
- Double glazing.
- Allocated parking space within secure underground car park.
Travel Directions
From George Square continue South onto Frederick Street. At the lights turn left onto Ingram Street and pass by the Italian Centre on the left. Turn next right onto Albion Street where No. 88 is situated on the left-hand side on the corner of Albion Street and Blackfriars Street.
More Details
EPC: C
Council Tax: D
Tenure: Freehold
Your home may be repossessed if you do not keep up repayments on your mortgage.
There may be a fee for mortgage advice. The actual amount you pay will depend upon your circumstances. The fee is up to 1% but a typical fee is 0.3% of the amount borrowed.
Similar Properties
Looking To Sell Or Let?
Rettie is one of the most trusted and well-respected names in property. Our unrivalled market knowledge helps people from around the world buy, sell, let and develop property in Scotland and the North East of England - from city apartments and rural cottages to large townhouses and prime country homes, farms and estates. We deal with some of the most prestigious properties on the market, but provide the same exceptional standards of service and value for money to all our clients.
