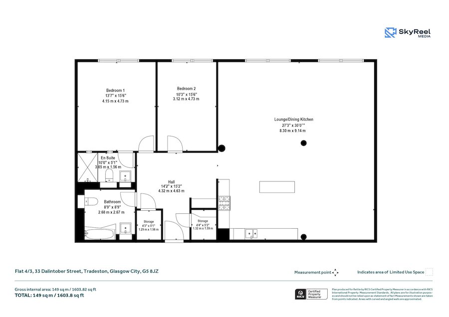
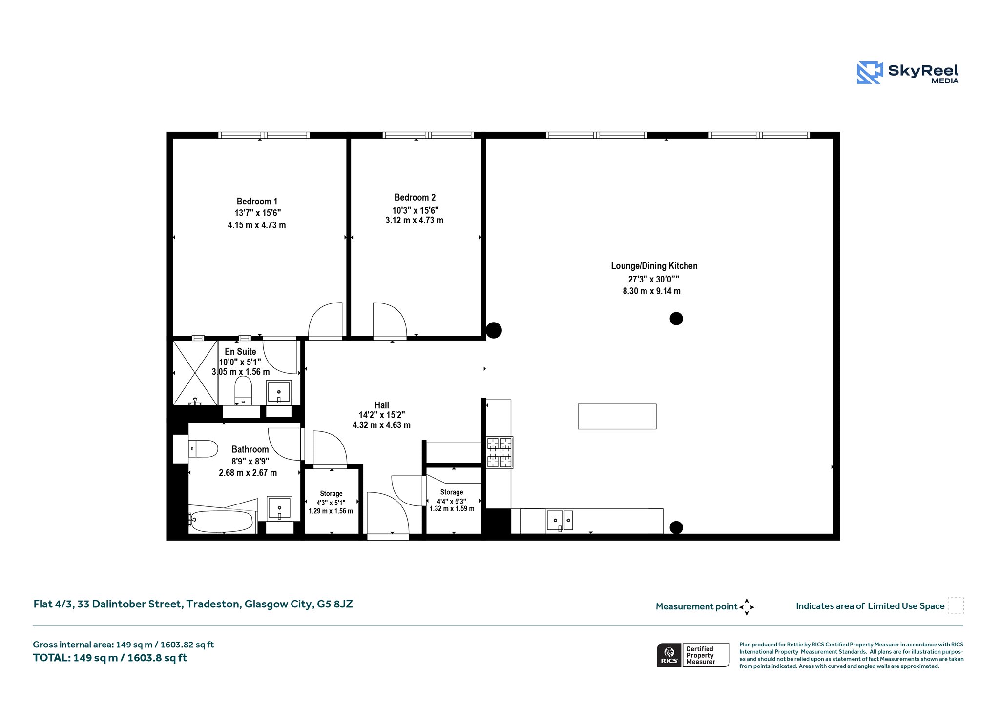
Flat 4/3, 33 Dalintober Street, Tradeston, Glasgow City, G5 8JZ
Offers Over £299,000
Apartment
2 Bedrooms
2 Bathrooms
1 Reception Room
1,625 sq.ft
Secure Parking
Property Description
An exceptionally spacious loft apartment within the B-listed, Beaux-Arts style former warehouse designed by James Ferrigan for the Scottish Cooperative Wholesale Society in early 1900’s. Converted into residential apartments in 1999, the generous two-bedroom property extends to over 1625 sq ft and is situated on the fourth floor within this magnificent blonde sandstone building. Located in Tradeston, an increasingly popular locale, just south of the River Clyde on the edge of Glasgow’s City Centre, it is within easy walking distance of the Squiggly Bridge, the new Barclays Wealth Campus, offers easy access to the Financial Services District and has West Street Underground Station only a short walk away from the building.
Accessed from a secure communal entrance and benefitting from secure residents parking, there is lift and stair access to each floor. The property itself is well presented with notable features including high ceilings, a substantial main living space of over 30 ft flooded with light from four very tall sash windows and has open plan modern kitchen, set back from the living space and with ample space for dining, there is great storage, two spacious double bedrooms with bedroom one having en suite shower room, a modern main bathroom. The property boasts a wealth of loft style features with open plan living space, ceiling beams and exposed structural columns, it has gas central heating and viewing is recommended to appreciate the scale of this great apartment.
Situation
Located on Dalintober Street on the south edge of Glasgow’s City Centre and Financial Services District, in an area of Glasgow which is benefitting from significant ongoing redevelopment with a mix of both residential and commercial developments. It is very well placed for the new Barclays Wealth Campus nearby. This location offers easy access to the City Centre and Merchant City, where there is a wealth of amenities including both general and specialist shopping, wine bars and many highly acclaimed restaurants or head south into Shawlands where you will find a great selection of local business. The property is in proximity to Strathclyde & Caledonian Universities, the Glasgow School of Art, the SEC and The Clyde Auditorium. The area benefits from frequent public transport with easy access to Central and Queens Street Train Stations, West Street subway stations. Public transport and road links to the M8 & M74 motorway network are exceptional.
Travel Directions
On foot from our office on Bath Street continue East, turning first right into West Campbell Street and proceed south eventually crossing over Argyle Street and continuing to Robertson Street, at the end of Robertson Street ross over to the Clyde walkway and cross the Squiggly Bridge and continue South on to Clyde Place and on to West Street turning 2nd right into Morrison Street, proceed west towards No. 53 Morrison Street where you will find the junction with Dalintober Street just at the corner of the building, turning left into Dalintober Street, the entrance to No. 33 is towards the end of the street on the left hand side.
More Details
Situation: Contact branch
Council Tax Band: F
Tenure: Freehold
Your home may be repossessed if you do not keep up repayments on your mortgage.
There may be a fee for mortgage advice. The actual amount you pay will depend upon your circumstances. The fee is up to 1% but a typical fee is 0.3% of the amount borrowed.
Similar Properties
Looking To Sell Or Let?
Rettie is one of the most trusted and well-respected names in property. Our unrivalled market knowledge helps people from around the world buy, sell, let and develop property in Scotland and the North East of England - from city apartments and rural cottages to large townhouses and prime country homes, farms and estates. We deal with some of the most prestigious properties on the market, but provide the same exceptional standards of service and value for money to all our clients.
