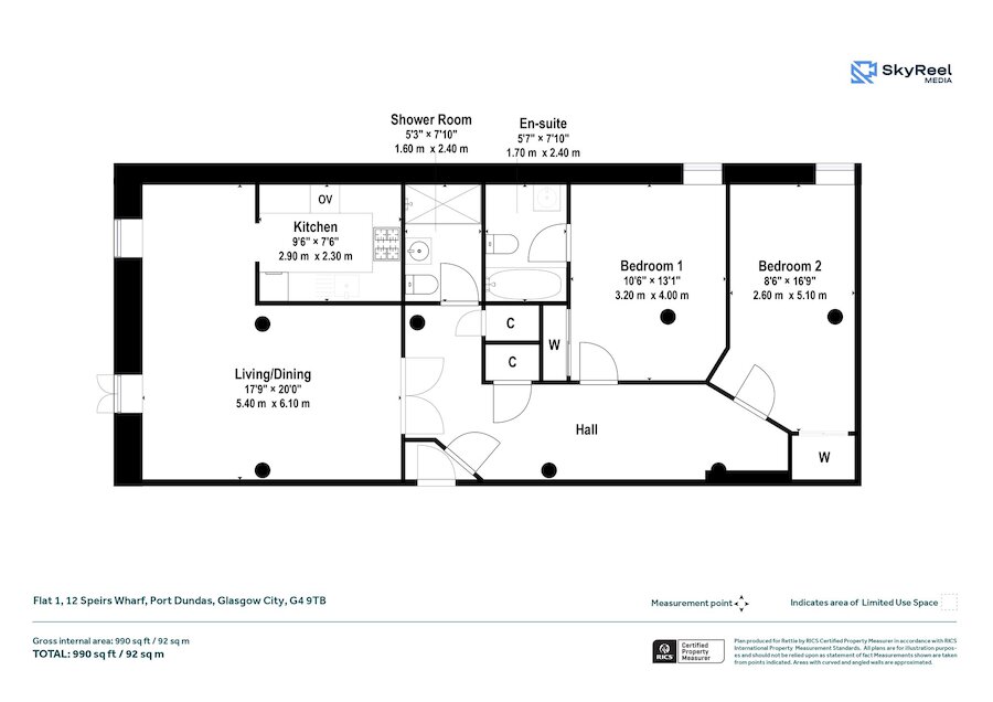
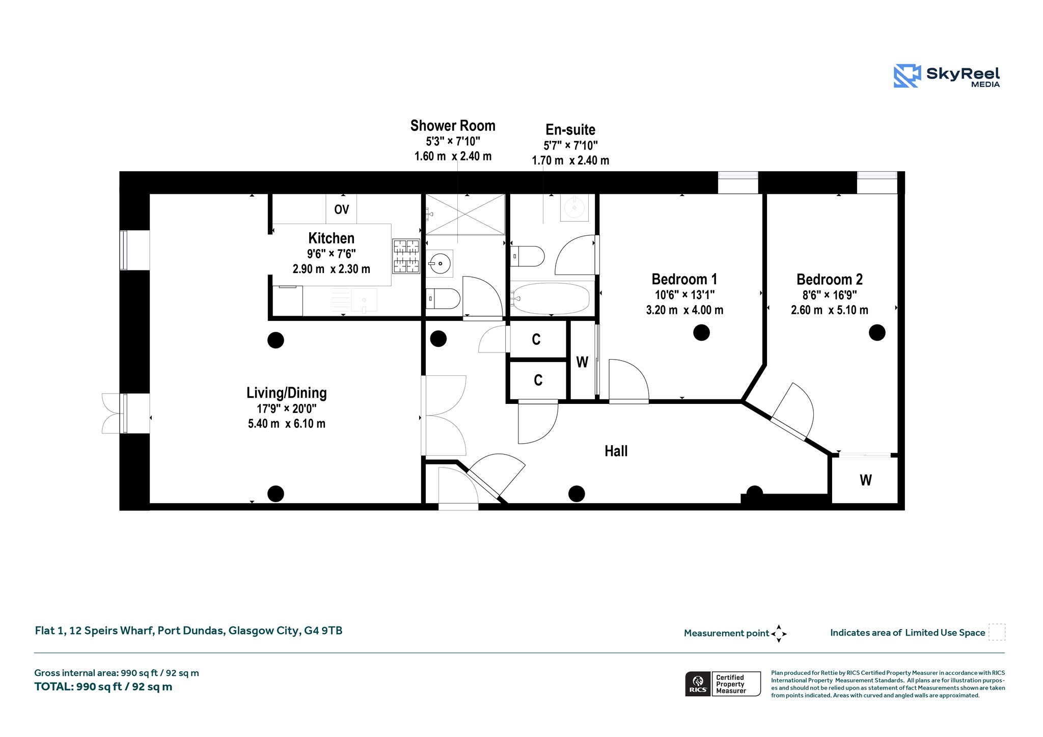
Flat 1, 12 Speirs Wharf, Port Dundas, Glasgow City, G4 9TB
Offers Over £255,000
Ground Floor Apartment
2 Bedrooms
2 Bathrooms
1 Reception Room
1,033 sq.ft
Secure Parking
Property Description
Generously extending to over 1,000 sq ft, this elevated ground floor loft style apartment is both stylish and inviting with its striking Modern Transitional aesthetic. Modernised and comprehensively upgraded with a refitted kitchen and bathrooms, during its current ownership, this contemporary two-bedroom, two-bathroom warehouse conversion forms part of the iconic and highly desirable Speirs Wharf development which is conveniently located on the edge of the city and right on the banks of the Forth & Clyde Canal. The wharf buildings date back to 1846 and were converted to provide a mix of residential and commercial spaces in the 1980s which has proved to be an extremely popular location due to proximity to the City Centre, the West End and the excellent transport links via the M8 motorway. The development also boasts a deli restaurant, a spa, off street parking, well equipped residents’ gym, a lovely residents’ indoor heated swimming pool and spa and bike storage.
Accessed via security barrier to parking and secure entry to communal hallway, three stairs lead to the landing where you will find the flat almost immediately on the left-hand side. The entrance door leads to a vestibule providing cloakroom storage and access to the welcoming hallway. Glass panelled doors lead into the main living space which has dedicated dining area, a large living space spanning 20 ft, two recessed windows facing west over the cobbled street towards the Canal and beyond, flooding the room with natural light and there is access to the re-fitted and modern kitchen fitted with well-considered storage and integrated appliances. The l-shaped hallway has two cupboards, notable features include the main shower room, having recently been beautifully re-fitted in Victorian Revival Style with walk in shower, sink inset in marble vanity unit and striking green tiling, there are two generous double bedrooms both with fitted wardrobes and one with en suite bathroom. Throughout the apartment there are feature structural columns, stylish black woodwork and the property has double glazing and electric heating. The development offers an urban lifestyle with excellent transport links and viewing is highly recommended.
Situation
The Speirs Wharf - ware house at river front - buildings are situated on the banks of the Forth and Clyde Canal and are conveniently located for access to the City Centre, the Merchant City, Financial District, and all West End amenities including Glasgow University, Botanic Gardens and Kelvingrove Park & Art Galleries. The property is in pro Strathclyde & Caledonian Universities, the Glasgow School of Art, Royal Conservatoire and the Merchant City offering a wealth of amenities including both general and specialist shopping, wine bars and many highly acclaimed restaurants. The area benefits from close proximity to Cowcaddens Underground (5 minute walk) and to the nearby M8 motorway network ensuring excellent commuter access throughout the Central Belt.
Travel Directions
From George Square proceed North onto North Hanover Street. Turn left onto Dobbie’s Loan continuing onto Craighall Road. Proceed through the roundabout, continuing on Craighall Road. Turn left into Speirs Wharf where you will find No. 12 immediately after the Ocho Café and Spa at the start of the building on the right-hand side.
More Details
Situation: Contact branch
Council Tax Band: E
Tenure: Freehold
Your home may be repossessed if you do not keep up repayments on your mortgage.
There may be a fee for mortgage advice. The actual amount you pay will depend upon your circumstances. The fee is up to 1% but a typical fee is 0.3% of the amount borrowed.
Similar Properties
Looking To Sell Or Let?
Rettie is one of the most trusted and well-respected names in property. Our unrivalled market knowledge helps people from around the world buy, sell, let and develop property in Scotland and the North East of England - from city apartments and rural cottages to large townhouses and prime country homes, farms and estates. We deal with some of the most prestigious properties on the market, but provide the same exceptional standards of service and value for money to all our clients.
