Property Description
Benefitting from a peaceful yet exceptionally convenient setting in the popular West End district of Broomhill, this beautifully presented two-bedroom ground floor apartment enjoys a private enclosed front garden and offers a superb opportunity for young professionals, downsizers, and anyone seeking stylish accommodation in a highly desirable location.
Positioned close to the boundary of Broomhill and Jordanhill, this address is perfectly located for easy access to a wealth of amenities and excellent transport links. Jordanhill Railway Station is just a short walk away, offering regular services to Glasgow city centre, while nearby access to the Clyde Tunnel and Clydeside Expressway ensures effortless connectivity for motorists.
The vibrant cafes, restaurants, and independent retailers of Broomhill are within immediate reach, while the West End Retail Park—home to M&S Foodhall, Sainsbury’s, and Boots with pharmacy—is just a few minutes away by car. Additionally, the apartment is located only 1.5 miles from Byres Road, where you’ll find an extensive selection of bars, boutiques, cultural venues, and dining options, making it a fantastic base for enjoying the best of the West End lifestyle.
Crucially, this property is also extremely well positioned for medical professionals, with the Queen Elizabeth University Hospital (QEUH) located just 2.5 miles away—allowing for a quick and simple commute.
The apartment itself forms part of an elegant red sandstone tenement with a west-facing frontage. The building is factored and well maintained, featuring secure entry, clean communal hallways, and a well-kept rear courtyard.
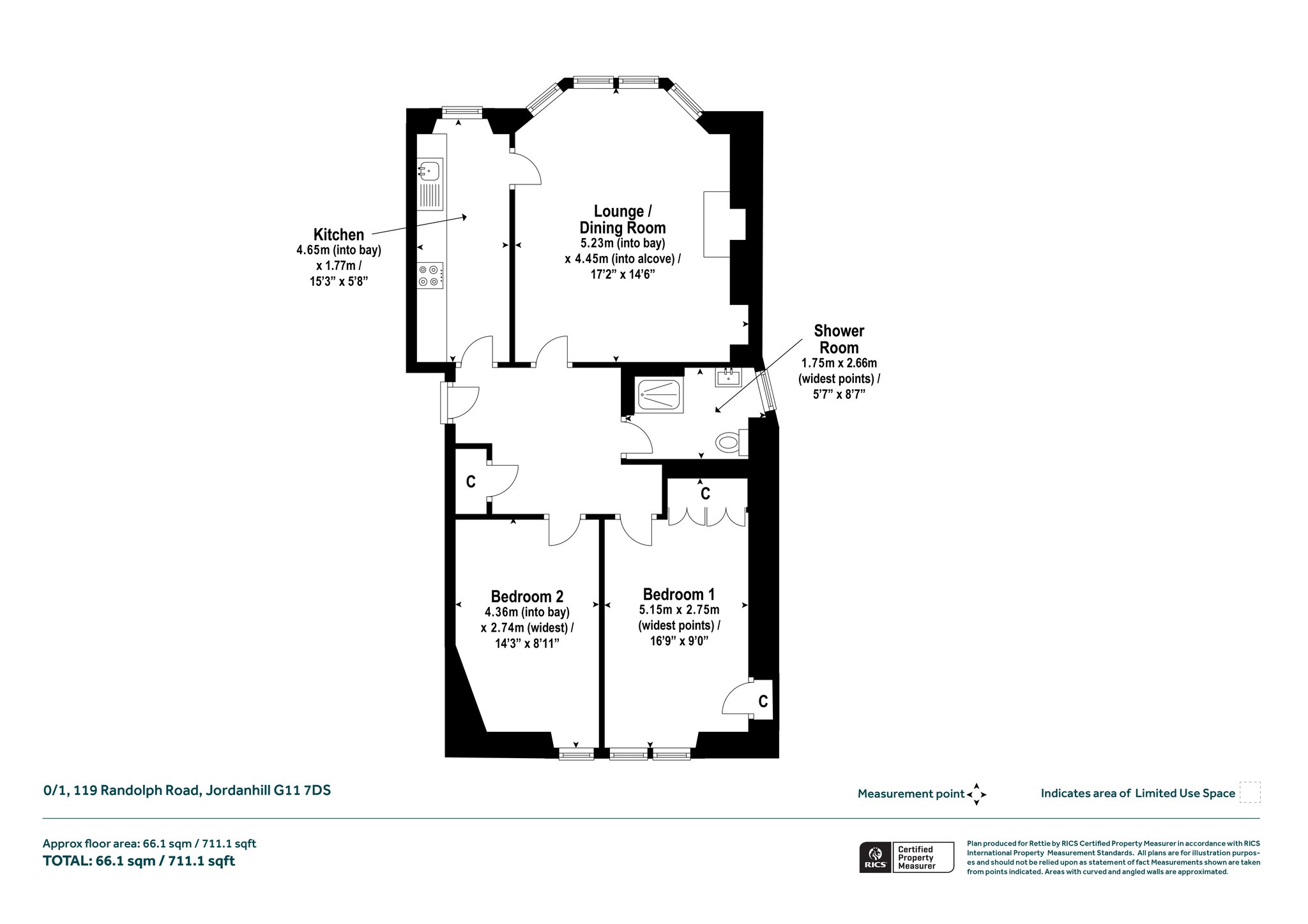
Internally, the home is light-filled and immaculately presented. The accommodation comprises: a welcoming reception hallway, bay-windowed living room, modern front-facing galley kitchen with sleek fitted units and integrated appliances, two generous double bedrooms, and a beautifully tiled shower room with a contemporary three-piece suite. Lovingly maintained by the current owner, the property is in walk-in condition and ready for immediate occupation.
Accommodation
- Excellent West End location in Broomhill, near the Jordanhill boundary
- Only 1.5 miles from the vibrant shops, restaurants, and bars of Byres Road
- Approx. 2.5 miles from the Queen Elizabeth University Hospital (QEUH) – ideal for NHS staff and medical professionals
- Private, enclosed front garden and west-facing frontage
- Elegant red sandstone tenement with secure entry and factored maintenance
- Minutes from the Clyde Tunnel, Clydeside Expressway, and Jordanhill Rail Station
- Close to West End Retail Park and local amenities in Broomhill and Anniesland
- Bright, well-appointed interior with modern kitchen and stylish shower room
- Move-in ready condition – perfect for professionals, couples, and downsizers
More Details
EPC: D
CT Band: E
Tenure: Freehold
Your home may be repossessed if you do not keep up repayments on your mortgage. There may be a fee for mortgage advice. The actual amount you pay will depend upon your circumstances.
Similar Properties
Looking To Sell Or Let?
Rettie is one of the most trusted and well-respected names in property. Our unrivalled market knowledge helps people from around the world buy, sell, let and develop property in Scotland and the North East of England - from city apartments and rural cottages to large townhouses and prime country homes, farms and estates. We deal with some of the most prestigious properties on the market, but provide the same exceptional standards of service and value for money to all our clients.
