Offers Over £995,000
Duplex Apartment
4 Bedrooms
3 Bathrooms
3 Reception Rooms
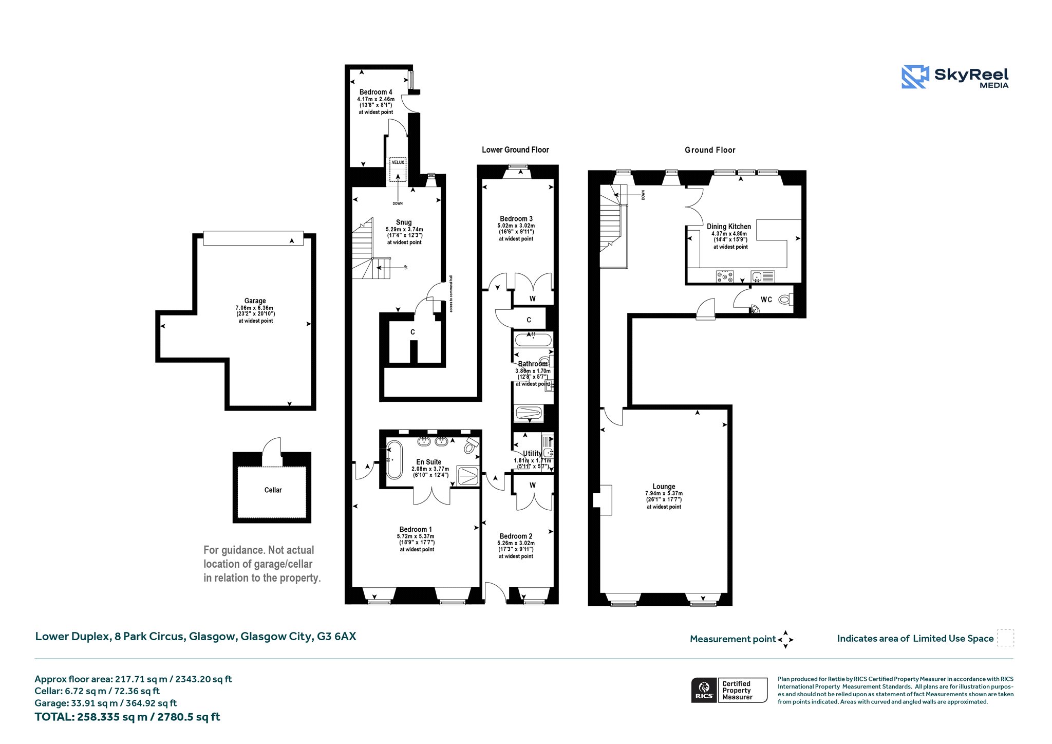
2,781 sq.ft
Double Garage
Property Description
An absolutely sensational four bedroom duplex apartment formed across the ground and garden levels of a particularly elegant blonde sandstone townhouse. Situated on the coveted Park Circus, this stylish home enjoys a marvellous blend of traditional character and practical contemporary finishes, and presents an incredible opportunity to acquire an immense home just moments from the entrance to Kelvingrove Park.
The internal accommodation has a comfortable feel, benefits from good natural light and is notably versatile, extending to a magnificent front room, an amazing dining kitchen, four double bedrooms, a cosy secondary “snug” living space, a contemporary five piece en suite bath and shower room, four-piece family bathroom, dedicated utility room, and a convenient ground floor W/C. The layout is exceptionally adaptable and can be calibrated in a multitude of ways to suit a growing family, a professional couple or those seeking dedicated work or hobby space, with the two-level arrangement providing excellent separation between the main living areas and the bedroom accommodation. This thoughtful spacing also creates a comfortable balance between parents and children, while offering ideal flexibility for guests, allowing everyone to enjoy their own space without compromising the flow of day to day living.
The private double garage is accessed from the lane to the rear and via an internal pedestrian door accessed from the rear garden which has timber decking shielded by charming shrubbery and a slabbed patio. The under pavement cellar is accessed from the lightwell courtyard to the front of the property. The property has access to the impeccably maintained residents’ pleasure gardens of Park Circus. Also to the front, an attractive lightwell courtyard provides an additional retreat and further underlines the rare abundance of outdoor space on offer in such a prime location.
Park Circus is a beautifully symmetrical and iconic crescent established by three gently curved terraces in the core of Charles Wilson’s “Park” project. The building is dated circa 1857 and is a remarkable example of a mid nineteenth century terrace with number 7 enjoying a pleasant front outlook over to the delightful residents’ gardens and adjacent access to Kelvingrove Park.
The home is perfectly located to indulge in the best the West End has to offer. First class education is available nearby at The Glasgow Academy and Kelvinside Academy, alongside The University of Glasgow. The vibrant recreational amenities of Finnieston are close at hand, as are the events and attractions of the Scottish Event Campus (SEC), while excellent road links provide convenient access to the motorway. A fantastic selection of local cafés, bars and restaurants can also be found within walking distance around Kelvinbridge and Byres Road, rounding off an outstanding lifestyle opportunity in one of the city’s most prestigious addresses.
Accommodation:
- Security entry system.
- Grand communal entrance hall with ornate pillars and ceiling cornice.
- Alluring reception hall with three windows to the rear and gorgeous contemporary timber and glass stairway down to the lower hall
- Magnificent main lounge with two windows to the front, detailed ceiling cornice and focal gas fireplace.
- Outstanding fitted kitchen, comprised of white gloss cabinetry contrasting substantial grey counter tops, with breakfasting island, plinth and pelmet under lighting, integrated appliances including beverage cooler, timber wine rack, and ample dining space set in front of three section window to the rear.
- Two piece ground floor W/C cloakroom.
- Stairway leading to the lower level, the landing of the lower hall is substantial and has been used as an additional television and living room. The lower hall has a large walk in storage cupboard and a door to the communal hall.
- Principal bedroom with two windows to the front and fitted wardrobes.
- Double doors lend access to a stunning en suite five piece bathroom with separate bath, shower cubicle and “his and hers” sink.
- Bedroom two with integrated wardrobes, window to the front and door providing direct access to private front courtyard.
- Bedroom three with window to the rear and fitted wardrobes.
- Bedroom four with window to the side, office/wardrobe recess and door leading to back garden.
- Four piece family bathroom comprised of bath and separate shower cubicle.
- Invaluable utility room accessed from lower hallway.
- Additional walk in storage cupboard adjacent to the bathroom
- Gas central heating.
- Double garage accessed from the rear lane.
- Private courtyard to the front.
- Communal rear garden area.
- Beautiful Park Circus Residents’ pleasure gardens to the front.
- Availability of on street resident’s parking.
More Details
Situation: Balcony
Council Tax Band: F
Tenure: Freehold
Your home may be repossessed if you do not keep up repayments on your mortgage.
There may be a fee for mortgage advice. The actual amount you pay will depend upon your circumstances. The fee is up to 1% but a typical fee is 0.3% of the amount borrowed.
Similar Properties
Looking To Sell Or Let?
Rettie is one of the most trusted and well-respected names in property. Our unrivalled market knowledge helps people from around the world buy, sell, let and develop property in Scotland and the North East of England - from city apartments and rural cottages to large townhouses and prime country homes, farms and estates. We deal with some of the most prestigious properties on the market, but provide the same exceptional standards of service and value for money to all our clients.
