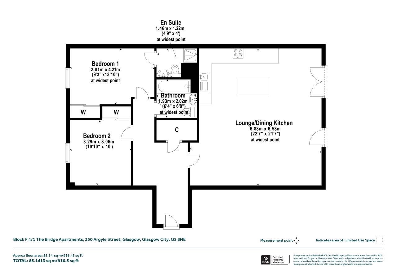
Block F 4/1 The Bridge Apartments, 350 Argyle Street, Glasgow City, G2 8NE

Glasgow City, G2 8NE
Sold
Pin View on map

Offers Over £219,000

House

Apartment

Bed

2 Bedrooms

Bathroom

2 Bathrooms

Reception

1 Reception Room

Size

936 sq.ft

Parking

Underground Parking

Telephone

Property Description

Modernised in recent years and situated within the popular Bridge Apartments on Argyle Street this south facing and spacious two-bedroom, apartment benefits from an allocated, underground parking space and forms part of the incredibly well placed and popular City Centre development. Located on the 4th floor, the interior is bright and of generous proportions, spanning over 936 sq ft, and has been upgraded by the current owners with a re-fitted kitchen and lovely high quality laminate wood flooring. The building itself is well maintained with a concierge on site and courtyard area and offers great transport links to both Glasgow Queen Elizabeth University Hospital and Glasgow Royal Infirmary and Glasgow Airport via nearby M8 motorway network.

Entered via security entry to lobby or via the secure underground car park, with lift and stair access to each floor and further security entry to communal entrance. There is a welcoming reception hall with a useful storage cupboard off, a generous open plan living/dining room with re-fitted kitchen off set and separated by a bespoke kitchen island, south facing patio style doors to Paris balconies and spanning over 22’ 7”, the bedrooms face over the rear courtyard gardens, both are double rooms and have fitted wardrobes with bedroom one having an en suite shower room, there is a modern three-piece bathroom and good storage. The property benefits from low EPC Band B, has double glazing and electric heating and an allocated space in the underground carpark. Furniture is available by separate negotiation.

Situation

Located on Argyle Street on the edge of Glasgow City Centre and International Financial Services District, an area of Glasgow which has benefitted from significant and ongoing redevelopment in the last few decades with a mix of both residential and commercial developments. The City Centre offers unquestionably one of the most envied and prominent social locations, the apartment is conveniently located for access to a wealth of amenities including both general and specialist shopping, wine bars and many highly acclaimed restaurants located in the nearby the Style Mile and Merchant City; educational institutions to include Strathclyde & Caledonian Universities, the Glasgow School of Art and Royal Conservatoire of Scotland; concert and conference centres at the SEC and The Clyde Auditorium. The area benefits from frequent public transport with easy access from Anderson Rail Station to Glasgow Central Train Station and St Enoch subway stations. Public transport and road links to the M8-motorway, are exceptional.

Travel Directions

From our Bath Street office, proceed along Bath Street eventually turning left onto Newton Street A804. Proceed straight along Newton Street and take slip road under Kingston Bridge towards Argyle Street. Turning left again onto Argyle Street passing the Marriot Hotel on the left. The Bridge apartments are at No. 350 Argyle Street, around 300 yards along on the left-hand side.

More Details

EPC: C
Council Tax Band: F
Tenure: Freehold

Contact Us

Lisa Pitchers MRICS

Lisa Pitchers MRICS

Associate Director
Craig Roberts

Craig Roberts

Mortgage & Protection Advisor
Mortgage Calculator
Monthly payments
Please set an interest rate.

Your home may be repossessed if you do not keep up repayments on your mortgage. There may be a fee for mortgage advice. The actual amount you pay will depend upon your circumstances.

Tax Calculator
LBTT calculator for properties purchased in Scotland. Stamp Duty calculator for properties purchased in England.
Land & buildings transaction tax (LBTT)
= £0
New build house with stone and timber cladding

Looking To Sell Or Let?

Rettie is one of the most trusted and well-respected names in property. Our unrivalled market knowledge helps people from around the world buy, sell, let and develop property in Scotland and the North East of England - from city apartments and rural cottages to large townhouses and prime country homes, farms and estates. We deal with some of the most prestigious properties on the market, but provide the same exceptional standards of service and value for money to all our clients.