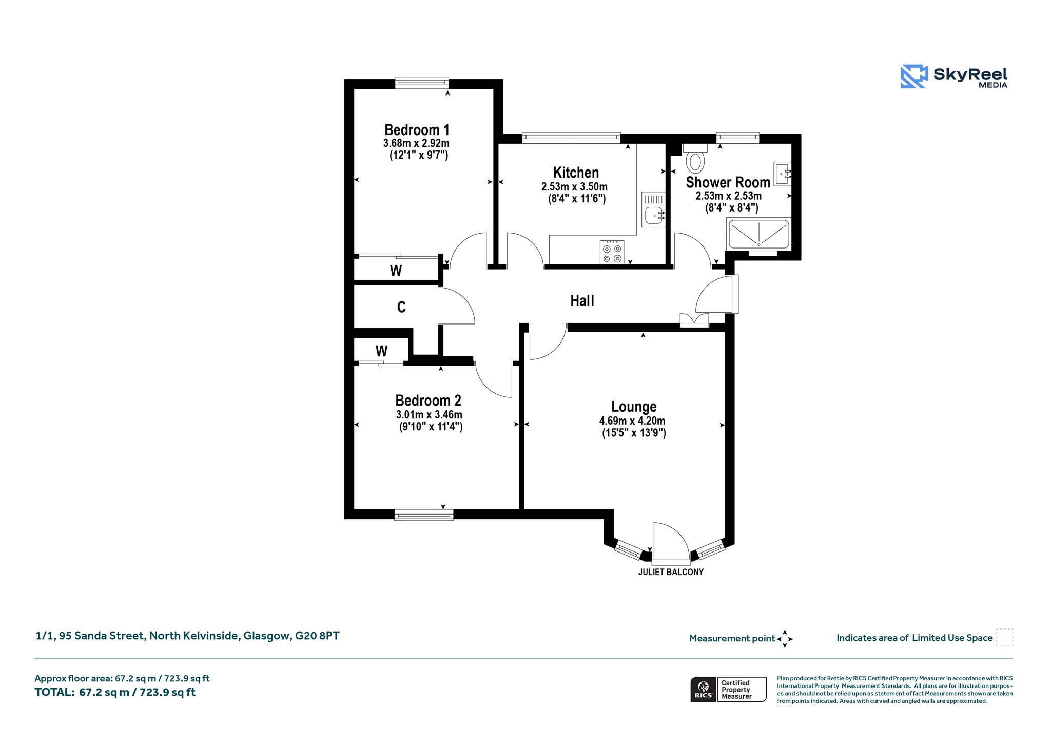
1/1, 95 Sanda Street, North Kelvinside, Glasgow, G20 8PT
Offers Over £195,000
First Floor Apartment
2 Bedrooms
1 Bathroom
1 Reception Room
724 sq.ft
Communal Garden
Off Street Parking
Property Description
Conveniently located in the highly popular North Kelvinside area, this immediately impressive first floor flat offers a perfect blend of traditional charm and modern convenience. Set within a well-maintained development, the property boasts off-street residents’ parking – a rare and valuable bonus in this vibrant part of Glasgow’s West End.
The accommodation benefits from excellent natural light, is of generous proportions and is beautifully presented throughout. The internal layout comprises a welcoming reception hallway with a useful storage cupboard of. There is a bright and spacious bay windowed lounge/dining room, a modern kitchen, two spacious double bedrooms (both benefitting from fitted wardrobes) and a contemporary three-piece shower room.
Sanda Street is superbly located to take advantage of all the West End has to offer. Just a short stroll away, you’ll find the bustling Queen Margaret Drive and Byres Road, offering a wide range of independent shops, cafés, restaurants, and bars. The Botanic Gardens and Kelvin Walkway provide excellent green space for outdoor enthusiasts, while nearby Great Western Road connects easily to Glasgow City Centre and beyond. For those commuting or studying, the area is well-served by public transport, with nearby bus and subway links, and easy access to the University of Glasgow, hospitals, and motorway routes.
Accommodation:
- Security entry system
 - Communal entrance hall
 - Welcoming reception hall with useful storage cupboard off
 - Superb main lounge/dining room with three section window to the front
 - Impressive re-fitted kitchen complete with a range of base and wall units, integrated appliances and two section window to the rear
 - Bedroom one with window to the rear and fitted wardrobes
 - Bedroom two with window to the front and fitted wardrobes
 - Stylish three-piece shower room. Window to the rear
 - Gas central heating
 - Double glazing
 - Off street residents’ parking
 
More Details
EPC: C
Council Tax: D
Tenure: Freehold
Your home may be repossessed if you do not keep up repayments on your mortgage. There may be a fee for mortgage advice. The actual amount you pay will depend upon your circumstances.
Similar Properties
Looking To Sell Or Let?
Rettie is one of the most trusted and well-respected names in property. Our unrivalled market knowledge helps people from around the world buy, sell, let and develop property in Scotland and the North East of England - from city apartments and rural cottages to large townhouses and prime country homes, farms and estates. We deal with some of the most prestigious properties on the market, but provide the same exceptional standards of service and value for money to all our clients.
