1/4, 76 Clouston Street, North Kelvinside, Glasgow, G20 8QY
Property Description
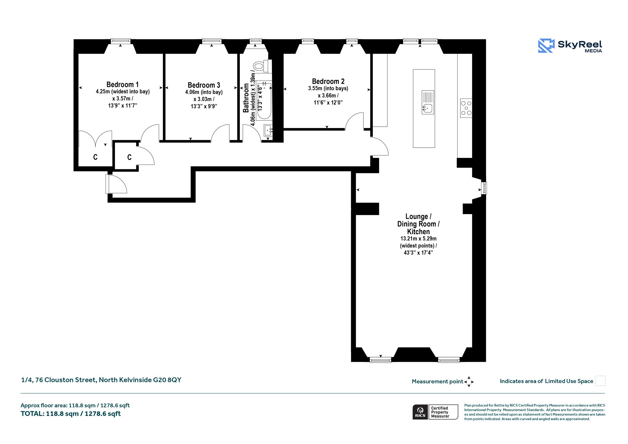
Forming part of a handsome blonde sandstone building on Clouston Street, this immediately impressive and spacious three-bedroom first floor flat is completed to an exceptional standard throughout and offers a contemporary level of finish throughout. The accommodation benefits from excellent natural light, has a comfortable feel and includes a welcoming reception hallway, a magnificent living room through dining kitchen with focal point ‘Corian’ topped island, three excellent double bedrooms and a bathroom comprising ‘Porcelanosa’ three-piece suite.
76 Clouston Street is located within a quiet residential pocket and much sought-after address benefitting from a selection of cafes and boutiques on Queen Margaret Drive. A short walk takes you to the stunning Botanic gardens and popular Children’s Wood & North Kelvin meadow, as well as a variety of riverside and canal cycle paths and walkways. Byres Road, Great Western Road are also nearby, providing a further and more extensive selection of amenities and transport links including a Waitrose supermarket, M&S Simply Food, many fashionable bars and restaurants, boutique shops and a choice of transport links. The University of Glasgow is situated just off Byres Road. Local hospitals include Gartnavel General and The Queen Elizabeth University Hospital.
Accommodation:
- Security entry system
- Communal entrance hall
- Welcoming reception hall with useful storage cupboard off
- Outstanding lounge/dining room with two windows to the front, additional window to the side, operational window shutters and ornate ceiling cornice
- Stunning open plan kitchen complete with a range of base and wall units, integrated appliances, central island, breakfasting bar and two section window to the rear
- Bedroom one with window to the rear and fitted wardrobes
- Bedroom two with two windows to the rear
- Bedroom versatile third bedroom with window to the rear and fitted storage
- Stylish three-piece bathroom comprising bath, over bath shower, toilet and was hand basin. Window to the rear
- Gas central heating
More Details
EPC: C
Council Tax: D
Tenure: Freehold
Your home may be repossessed if you do not keep up repayments on your mortgage.
There may be a fee for mortgage advice. The actual amount you pay will depend upon your circumstances. The fee is up to 1% but a typical fee is 0.3% of the amount borrowed.
Similar Properties
Looking To Sell Or Let?
Rettie is one of the most trusted and well-respected names in property. Our unrivalled market knowledge helps people from around the world buy, sell, let and develop property in Scotland and the North East of England - from city apartments and rural cottages to large townhouses and prime country homes, farms and estates. We deal with some of the most prestigious properties on the market, but provide the same exceptional standards of service and value for money to all our clients.
