2/2, 42 Kelvingrove Street, Kelvingrove, Glasgow, G3 7RZ
Property Description
Benefitting from a highly central but peaceful position within seconds walk of the main gates into Kelvingrove Park, this superb two bedroom duplex apartment offers bright, versatile accommodation within minutes walk of numerous amenities in Finnieston & is within 0.5 miles of Glasgow University’s Gilmorehill Campus.
Kelvingrove Street is an extremely desirable address, just along the road from the main gates to Kelvingrove Park and within five minutes' walk of Finnieston's stunning selection of restaurants, bars, coffee shops and boutiques. As such, this is a perfect home for a young professional couple who wish to take full advantage of West End lifestyle whilst having peaceful residence and the option of almost immediate access to tennis courts, bowling greens, skate parks and open parkland. On-street parking is available within the area and resident's permits can be bought from the local authorities. The home for sale is within easy walking distance of Byres Road and perhaps most importantly, Glasgow University. As such, this beautiful apartment may be of interest to parents in search of high-quality accommodation for students.
The property for sale is held within an attractive blonde sandstone building which is maintained to a high standard with secure entrance door, neat communal spaces and park area to rear in which spaces are available on a first come, first served basis.
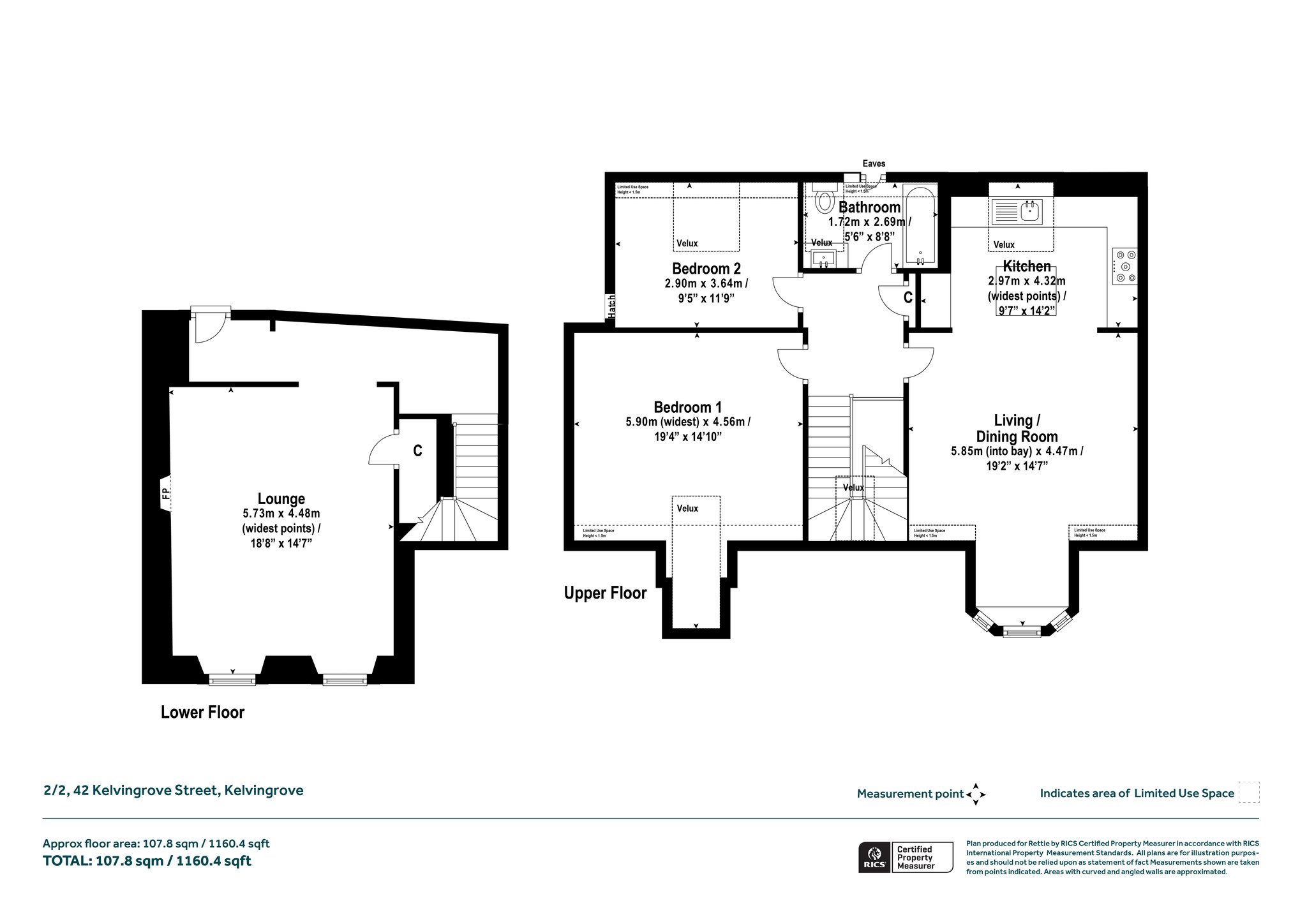
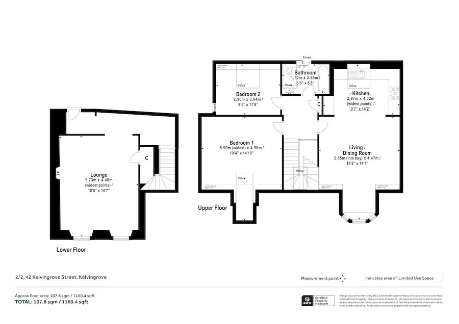
Internally this is an extremely attractive two bedroom home which is formed over second and third levels. As it is plain to see from the attached photographs, HD video and Matterport Tour, the accommodation has been carefully improved and maintained, resulting in an extremely comfortable living space which is ready to be moved into and enjoyed. In brief the accommodation extends to; entrance hall with staircase winding up to upper level, beautiful main living room with fireplace that has been fitted with wood burner, beautiful open plan dining kitchen space which can be used as a kitchen & living space (meaning main living room could be used as a large bedroom), spacious king-sized principal bedroom with lots of space for free-standing wardrobes and a fabulous balcony Velux window, second bedroom and main bathroom that features white suite and shower over bath.
Attributes;
• Bright, comfortable accommodation within a desirable address.
• Minutes walk from amenities in Finnieston.
• 0.5 Miles from Glasgow University’s main campus.
• Stripped and varnished timber floors.
• Highly versatile living space.
• Gas fired central heating.
EPC: D
Council Tax: E
Tenure : Freehold
More Details
Situation: Contact branch
Council Tax Band: E
Tenure: Freehold
Your home may be repossessed if you do not keep up repayments on your mortgage. There may be a fee for mortgage advice. The actual amount you pay will depend upon your circumstances.
Similar Properties
Looking To Sell Or Let?
Rettie is one of the most trusted and well-respected names in property. Our unrivalled market knowledge helps people from around the world buy, sell, let and develop property in Scotland and the North East of England - from city apartments and rural cottages to large townhouses and prime country homes, farms and estates. We deal with some of the most prestigious properties on the market, but provide the same exceptional standards of service and value for money to all our clients.
