1/3, 11B Whittingehame Drive, Kelvinside, Glasgow, G12 0XS
Offers Over £315,000
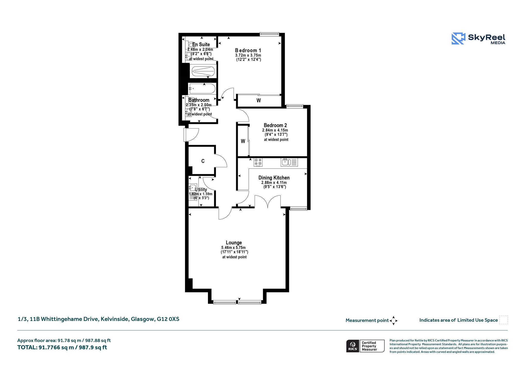
First Floor Apartment
2 Bedrooms
2 Bathrooms
1 Reception Room
987 sq.ft
Communal Garden
Off Street Parking
Property Description
Set within an exclusive and beautifully maintained development in one of Glasgow’s most sought-after residential pockets, this stunning two-bedroom apartment offers a rare opportunity to enjoy stylish, contemporary living with an emphasis on space, quality, and security.
Located in a leafy residential pocket, the property is part of an impeccably presented building that benefits from immaculate garden grounds and a gated residents' car park, ensuring privacy and peace of mind. An allocated parking space and lift access add further convenience to this exceptional offering.
The accommodation is beautifully proportioned throughout and finished to an exacting standard. The superb main lounge is bright and welcoming, offering the perfect setting for both relaxing and entertaining. Adjacent to this is the impressive dining kitchen, complete with high-quality fittings and ample space for casual or formal dining.
Both double bedrooms are generously sized, and feature fitted wardrobes, while the principal bedroom is further enhanced by a stylish, re-fitted en suite shower room. A contemporary three-piece bathroom and an invaluable utility cupboard off the hallway add to the functionality of the home. There is also additional storage accessed from the welcoming reception hall.
11B Whittingehame Drives enjoys a quiet yet well connected West End location with excellent connectivity to local amenities. The immediate location offers a wide array of shops, cafés, restaurants, and supermarkets, while convenient transport links – including rail and bus services – provide easy access to Glasgow City Centre and beyond. Several well-regarded schools and leisure facilities, including parks, are also within easy reach.
This exceptional property will appeal to discerning buyers seeking comfort, style, and security in a prestigious location. Early viewing is highly recommended to appreciate the quality and setting of this outstanding home.
Accommodation:
- Video security entry system
- Communal entrance hall with lift or stair access to each level
- Welcoming reception hall with useful storage cupboard off
- Invaluable utility cupboard off the reception hall
- Fabulous lounge with two section window to the front
- Impressive dining kitchen access from the reception hall or via double doors from the lounge complete with a range of base and wall units, integrated appliances and window to the front
- Bedroom one with window to the rear and fitted wardrobes
- Stylish en suite shower room comprising three-piece suite
- Bedroom two with window to the rear and fitted wardrobes
- Stunning three-piece bathroom
- Gas central heating
- Double glazing
- Allocated parking space within the gated residents’ car park
- Well maintained communal garden grounds
More Details
Situation: Communal Garden
Council Tax Band: F
Tenure: Freehold
Your home may be repossessed if you do not keep up repayments on your mortgage. There may be a fee for mortgage advice. The actual amount you pay will depend upon your circumstances.
Similar Properties
Looking To Sell Or Let?
Rettie is one of the most trusted and well-respected names in property. Our unrivalled market knowledge helps people from around the world buy, sell, let and develop property in Scotland and the North East of England - from city apartments and rural cottages to large townhouses and prime country homes, farms and estates. We deal with some of the most prestigious properties on the market, but provide the same exceptional standards of service and value for money to all our clients.
