2a Kirklee Road, Kirklee, Glasgow, G12 0TN

Kirklee, Glasgow, G12 0TN
Under Offer
Pin View on map

Offers Over £525,000

House

First Floor Apartment

Bed

2 Bedrooms

Bathroom

2 Bathrooms

Reception

1 Reception Room

Size

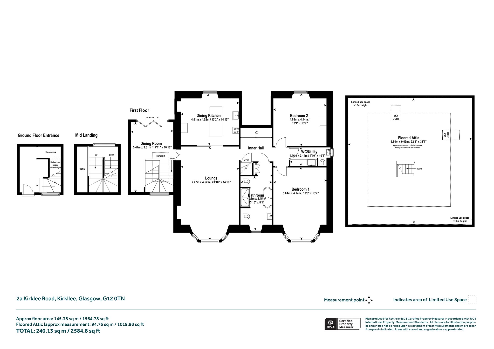
1,565 sq.ft

Tree

Private Garden

Parking

Off Street Parking

Telephone

Property Description

CLOSING DATE MONDAY 1 ST SEPTEMBER AT 2 PM

Occupying the upper portion of a distinguished detached villa conversion in Kirklee is this spectacular two bedroom home, that offers comfortable and exceptionally well proportioned living, with the outstanding benefit of a private driveway, incredible private garden and a substantial attic space.

Beyond the wrought iron gates, visitors are met by a cleverly crafted entranceway extension that is framed by expansive glass and a feature staircase flooded with natural light. This contemporary addition is very sympathetic to the architectural charm of the original detached villa and elicits a burning sense of excitement that sets the tempo for the accommodation within.

Having crossed the threshold, the home makes an instantaneous impression in terms of space and brightness. The interiors are generous and finished to an exacting standard in a modern, understated style that compliments the grand period proportions and evokes a calming sense of serenity. Discreetly veiled behind sliding doors, the beautiful stylish kitchen intertwines with the other social spaces, creating a seamless flow when entertaining yet remaining able to be tucked away when desired.

The property takes full advantage of the Victorian Villa’s enormous attic and has storage provision of a scale that is infrequently found in West End homes. The loft could be considered more useful than most, being accessed in this case via a dedicated original curved stairway rather than typical drop-down ladder. This, in conjunction with the sheer size of the home’s attic provides a sense of possibility that most discerning home buyers can usually only dream of.

The private rear gardens are a real highlight, beginning with a neat gravel and patio section before opening into an unexpectedly generous lawn. Tiered planting and a colourful rockery bring depth, while an established tree and walled boundary shield those enjoying the space. With quiet seating spots, a charming water feature, and space for larger gatherings, the garden strikes the perfect balance between calm retreat and sociable entertaining.

2A Kirklee Road relishes its enviable situation, being just a few moments stroll from the entrance to The Botanical Gardens on Ford Road. Leading schools by way of The Glasgow Academy and The High School of Glasgow are a short commutable distance, while the prestigious Kelvinside Academy can be admired from very nearby. The West End’s main thoroughfares and vibrant amenities are also within walking distance, with a mixture of transport links and supermarkets readily available, making this all-encompassing property a very compelling consideration for professionals and young families.

With an exciting combination of scale, privacy and position, 2A Kirklee Road stands out as a perfect example of a home that marries the character of a Victorian villa with the ease of modern living and delivers a setting every bit as impressive as its address.

Accommodation

  • Wrought iron gate providing access to private driveway, flanked by mature planting.

Ground Floor

  • Bright ground floor reception hallway with cloakroom storage and beautiful timber stairway leading to upper level.

First Floor

  • Sublime dining area that is granted exceptional views of the rear gardens from the bi-folding doors and Juliet balcony. This room is drenched in light by a huge window to the front and a wonderful pitched skylight, and benefits from a focal fireplace and integrated shelving.
  • Impressive front lounge with magnificent west facing triple section bay window to the front, further illuminated by second sash and case window to the side and completed by focal point fireplace and hardwood flooring.
  • Sliding doors provide access to a majestic fitted kitchen, complete with hard counter tops, integrated appliances and breakfasting island.
  • Principal (main) bedroom of outstanding dimensions with stunning original oak parquet surrounds, laid in the period style to frame a central rug, and enjoying peaceful Westerly outlook from the triple section bay window towards the entrance to Redlands Lane.
  • Bedroom two is a double room with sash and case window to the rear and original oak parquet surrounds, laid in keeping with the traditional period style of the villa.
  • Incredible five piece bathroom comprised of free standing bath, separate shower cubicle, bidet, large sash and case window to rear with storage and underfloor heating.
  • A two piece W/C also doubles as an invaluable utility area with fitted units, hard surface counter tops and separate laundry sink, with underfloor heating.
  • Hallway corridor with storage off and stairway door leading to attic.
  • The remarkable attic space is of an immense size (almost doubling the internal footprint) and will potentially leave prospective buyers wanting for nothing in terms of storage. The space is accessible via a dedicated original stairway and has two skylight windows.
  • Private gardens are located to the rear of the property, a lovely gravel and patioed section leads us to a concealed and unexpectedly magnificent lawned garden. This space offers a sense of serenity that is seldom associated with inner city living, adorned with a gorgeous maturely planted rockery and quaint water feature; this garden certainly feels a world away from the West End.

More Details

EPC: E
Council Tax: G
Tenure: Freehold

Contact Us

Lyndsey Mercer

Lyndsey Mercer

Sales Negotiator
Craig Roberts

Craig Roberts

Mortgage & Protection Advisor
Mortgage Calculator
Monthly payments
Please set an interest rate.

Your home may be repossessed if you do not keep up repayments on your mortgage. There may be a fee for mortgage advice. The actual amount you pay will depend upon your circumstances.

Tax Calculator
LBTT calculator for properties purchased in Scotland. Stamp Duty calculator for properties purchased in England.
Land & buildings transaction tax (LBTT)
= £0
New build house with stone and timber cladding

Looking To Sell Or Let?

Rettie is one of the most trusted and well-respected names in property. Our unrivalled market knowledge helps people from around the world buy, sell, let and develop property in Scotland and the North East of England - from city apartments and rural cottages to large townhouses and prime country homes, farms and estates. We deal with some of the most prestigious properties on the market, but provide the same exceptional standards of service and value for money to all our clients.