4 Duthie Park Gardens, Glasgow, Glasgow City, G13 1GB

Glasgow, Glasgow City, G13 1GB
Sold
Pin View on map

Fixed Price £490,000

House

Detached House

Bed

4 Bedrooms

Bathroom

2 Bathrooms

Reception

2 Reception Rooms

Size

1,355 sq.ft

Tree

Private Garden

Garage

Garage

Parking

Off Street Parking

Telephone

Property Description

An immediately impressive, detached, modern villa with unusually open views to the front and a wonderful, south facing, landscaped rear garden.

This exceptional family home is located in the highly desirable Academy Park development and occupies a prime plot which has front views to Duthie Park Place.

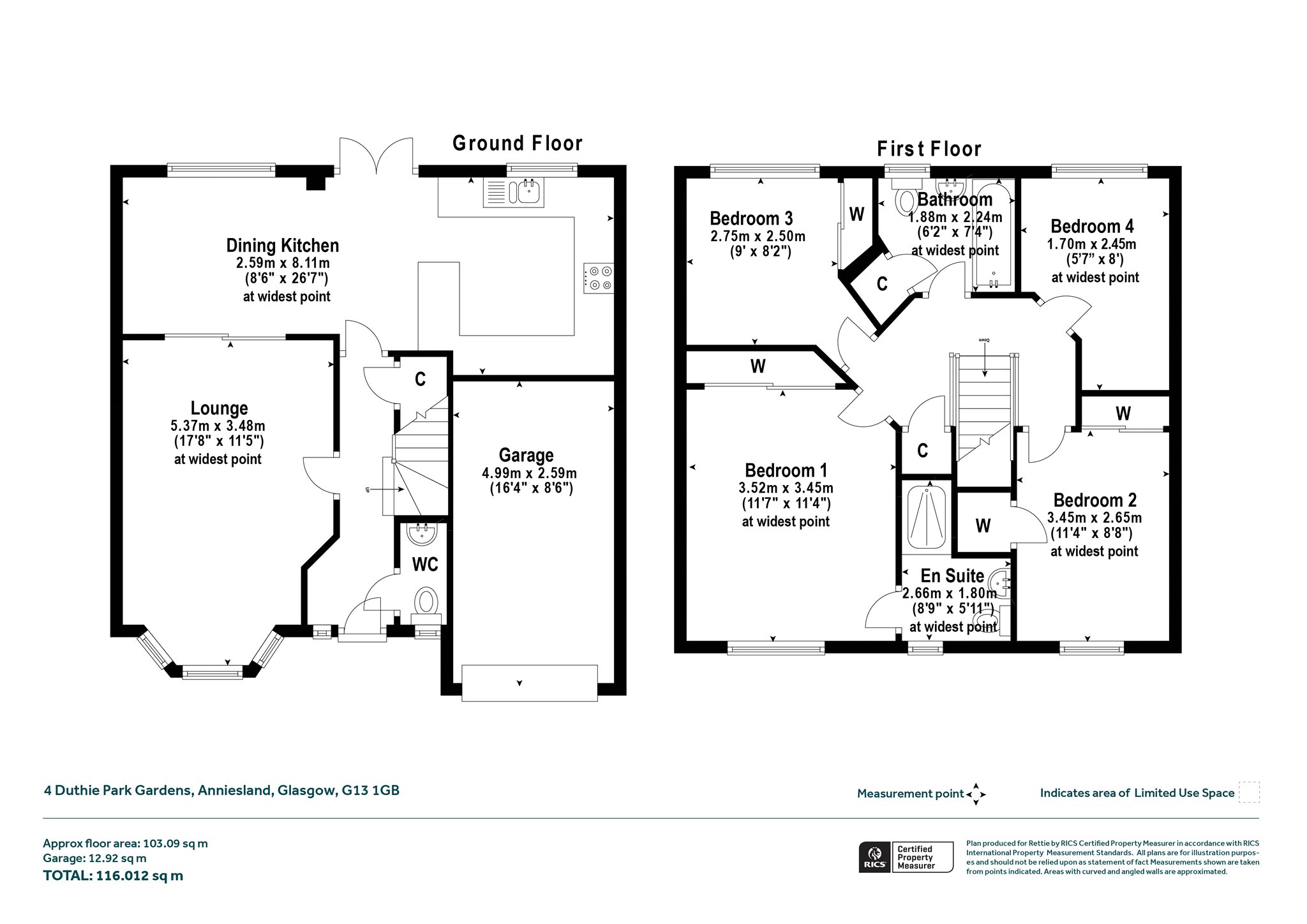
The property enjoys excellent natural light, offers versatile accommodation over two levels, has generous proportions and is stylishly presented throughout. The accommodation extends to six main apartments of two public room and four bedrooms. In addition, there is a superb kitchen, a downstairs WC, an en suite shower room and a three-piece bathroom off the first floor landing. Externally, the property benefits from a double width driveway, attached garage and a superb south facing, landscaped rear garden.

Duthie Park Gardens is within 1 mile of numerous shops, boutiques, supermarkets and leisure facilities in Anniesland and as such this is an ideal location for professional couples and young families in search of a highly convenient base. The property is well-placed for gaining access to the Clyde Tunnel & Clydeside Expressway which link quickly to the M8 and M74 motorways. As such, Academy Park is always popular with those who commute throughout West Central Scotland by car for business although in recent years the G13 postcode has become highly popular with medical professionals who work at the QEUH and prefer to walk or cycle to work. Anniesland is also extremely well-looked after in terms of public transport and Duthie Park Place is well-placed for access to rail stations at Anniesland, Jordanhill and Scotstounhill.

Accommodation:

  • Covered outside entrance
  • Welcoming reception hall with double glazed door and adjacent window, staircase to upper level and under stair storage cupboard
  • Downstairs cloaks/WC with window to the front
  • Spacious front lounge with bay window to the front
  • Impressive kitchen complete with a range of base and wall units, quality granite worktops, appliances and two section window to the rear. Double doors from the kitchen lead out to private rear garden
  • Adaptable, open plan dining area with three section window to the rear
  • Stairway with oak banister up to the first-floor landing
  • Bedroom one with three section window to the front and fitted wardrobes
  • En suite shower room comprising three-piece suite. Window to the front
  • Bedroom two with two section window to the front and fitted wardrobes
  • Bedroom three with two section window to the rear and fitted wardrobes
  • Versatile fourth bedroom with two section window to the rear
  • Gas central heating
  • Double glazing
  • Double width driveway
  • Attached garage
  • Fabulous, landscaped, south/south easterly back garden

EPC: C
Council Tax: F
Tenure : Freehold

More Details

Situation: Private Garden
Council Tax Band: F
Tenure: Contact Branch

Contact Us

Lyndsey Mercer

Lyndsey Mercer

Sales Negotiator
Craig Roberts

Craig Roberts

Mortgage & Protection Advisor
Mortgage Calculator
Monthly payments
Please set an interest rate.

Your home may be repossessed if you do not keep up repayments on your mortgage. There may be a fee for mortgage advice. The actual amount you pay will depend upon your circumstances.

Tax Calculator
LBTT calculator for properties purchased in Scotland. Stamp Duty calculator for properties purchased in England.
Land & buildings transaction tax (LBTT)
= £0
New build house with stone and timber cladding

Looking To Sell Or Let?

Rettie is one of the most trusted and well-respected names in property. Our unrivalled market knowledge helps people from around the world buy, sell, let and develop property in Scotland and the North East of England - from city apartments and rural cottages to large townhouses and prime country homes, farms and estates. We deal with some of the most prestigious properties on the market, but provide the same exceptional standards of service and value for money to all our clients.