Property Description
Set within a peaceful, family-friendly development at the edge of Kelvindale in Glasgow's West End, this extended, detached modern villa offers bright, spacious accommodation and a flexible layout—perfect for modern family living. With upgraded interiors and an enclosed rear garden, this is a comfortable, well-appointed home that will appeal to growing families seeking space, convenience, and a connection to the West End lifestyle.
The location is particularly advantageous for families, thanks to its proximity to local amenities including highly regarded schools, a selection of shops and supermarkets, and leisure facilities all within easy reach. From the property, Byres Road is accessible in just 1.6 miles, offering direct access to the West End’s celebrated café culture, restaurants, bars, independent boutiques, and cultural venues. In addition, the area is very well served by public transport, including regular bus services and Kelvindale Rail Station, which offers swift rail connections to the city centre and beyond.
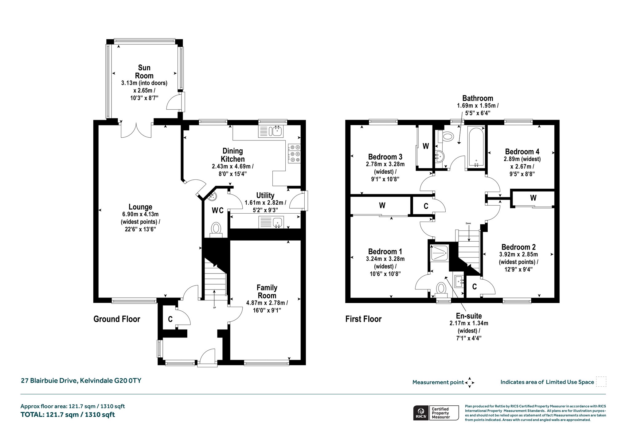
The home for sale is an attractive, detached villa with a bright quartz roughcast and blonde brick exterior, topped with a pitched, tiled roof. A neat section of front lawn and a paved two-car driveway provide a smart first impression and practical parking. At the rear, a fully enclosed garden laid to low-maintenance materials creates a safe and sunny environment for children and pets—particularly appealing in the afternoon and evening sun.
Internally, the property has been enhanced by the current owners to create an inviting, modern living environment spread across two levels. The former integral garage has been thoughtfully converted to provide a flexible additional living room, ideal for use as a family den, guest room, or home office. The principal lounge is wide and bright, offering generous space for living room furnishings and flowing naturally into the extended garden room at the rear. This in turn links to the broad kitchen-dining space, which has been reconfigured by absorbing the former utility room to create a much more expansive and functional family kitchen. Sleek modern units, integrated appliances, and plentiful storage complete this stylish space.
Upstairs, there are four well-proportioned double bedrooms—three of which feature built-in wardrobes. The principal bedroom enjoys generous floor space and a modern, en-suite shower room with neutral tiling. A well-appointed main bathroom, complete with a white three-piece suite and shower over the bath, completes the internal accommodation.
This is a truly impressive family home in a sought-after West End setting, and viewing is strongly recommended.
________________________________________
Key Attributes:
- Extended detached modern villa in sought-after Kelvindale development
- Peaceful location with excellent access to local schools, shops, supermarkets, and leisure amenities
- Just 1.6 miles from Byres Road and the vibrant West End
- Excellent public transport links, including nearby Kelvindale Rail Station
- Smart exterior with quartz roughcast and blonde brick
- Two-car driveway and neatly maintained front lawn
- Enclosed rear garden with low-maintenance landscaping—safe and sunny
- Converted garage providing additional flexible living space or guest bedroom
- Broad lounge with access to rear garden room
- Extended kitchen with integrated appliances and dining space
- Four generous double bedrooms, three with built-in storage
- Principal bedroom with stylish en-suite shower room
- Main bathroom with white suite and shower over bath
- Fully double-glazed
- Gas-fired central heating system
EPC: C
Council Tax: E
Tenure : Freehold
More Details
Situation: Private Garden
Council Tax Band: E
Tenure: Freehold
Your home may be repossessed if you do not keep up repayments on your mortgage. There may be a fee for mortgage advice. The actual amount you pay will depend upon your circumstances.
Similar Properties
Looking To Sell Or Let?
Rettie is one of the most trusted and well-respected names in property. Our unrivalled market knowledge helps people from around the world buy, sell, let and develop property in Scotland and the North East of England - from city apartments and rural cottages to large townhouses and prime country homes, farms and estates. We deal with some of the most prestigious properties on the market, but provide the same exceptional standards of service and value for money to all our clients.
