Property Description
Peacefully positioned within a quiet residential pocket, 1 Albany Cottages offers an exciting opportunity to acquire a comprehensively upgraded, cottage-style home with the significant advantage of being situated within List One Jordanhill School catchment area.
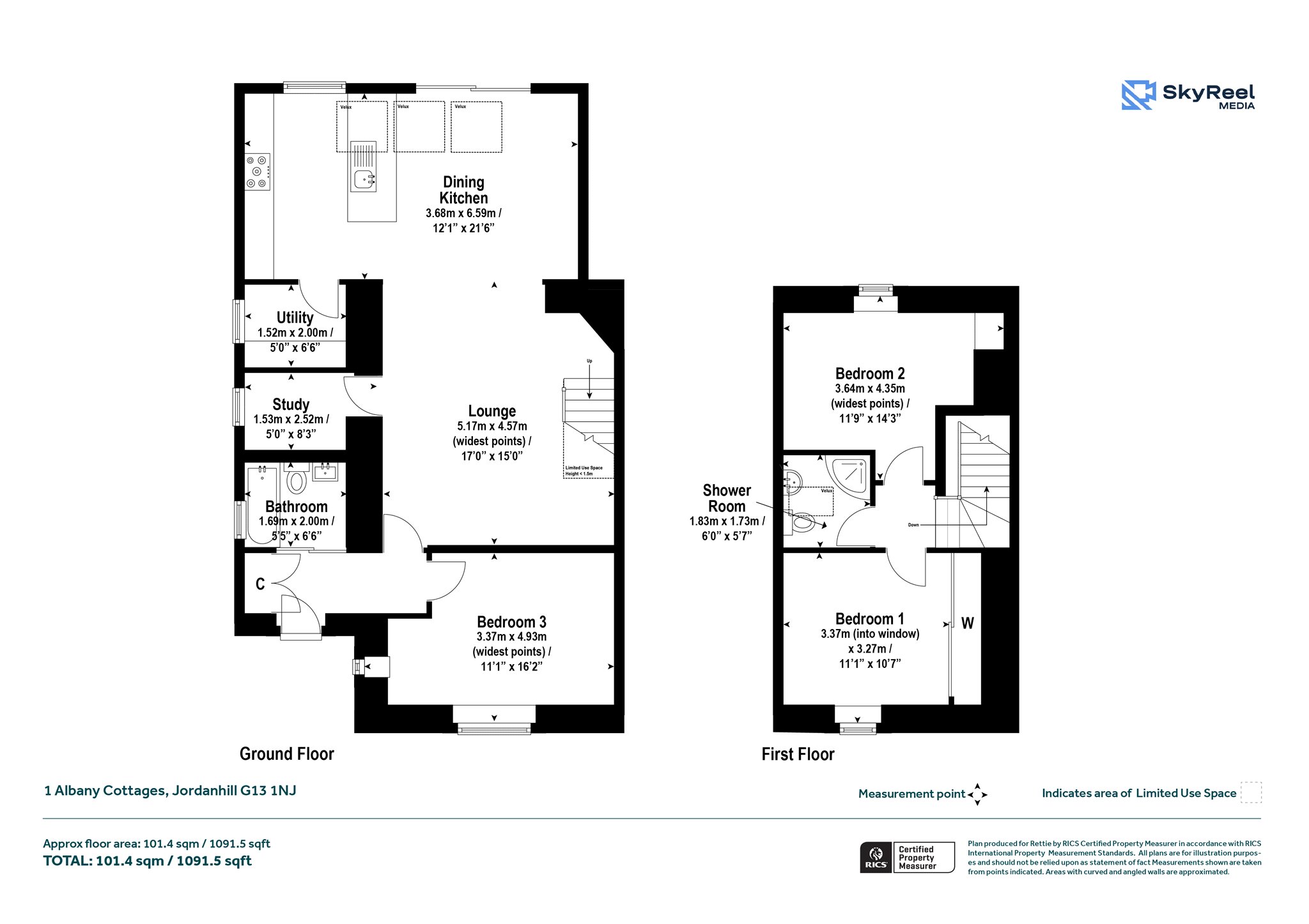
This immediately impressive three-bedroom property has been thoughtfully and meticulously modernised throughout, blending classic character with contemporary finishes, and provides an ideal layout for modern family living.
The accommodation includes a welcoming reception hallway leading into a bright and spacious main living room. To the rear, the heart of the home is undoubtedly the stunning dining kitchen—a stylish, light-filled space complete with sliding doors opening directly onto the immaculately presented rear garden. The kitchen is perfect for entertaining, while the adjoining utility room adds to the practicality of everyday living. In addition, there is an adaptable home office/study off the lounge, an ideal space from home working.
The ground floor also hosts an adaptable and comfortably proportioned third bedroom together with a stylish three-piece bathroom. On the upper level there are two double bedrooms and a contemporary three-piece shower room
Externally, the property is equally impressive, with off-street parking for two vehicles at the front and a fully landscaped, private rear garden offering a perfect space for relaxing or entertaining outdoors.
1 Albany Cottages occupies a quiet yet convenient location and is perfectly placed to enjoy the wealth of amenities in the West End. The property is also just a short walk from both Jordanhill and Anniesland train stations nearby, has excellent road links via the Expressway and M8, and offers a superb selection of shops, cafés, and restaurants just a short distance away in both Anniesland and Broomhill. For outdoor enthusiasts, Victoria Park and the Forth and Clyde Canal paths are within easy reach, offering fantastic green spaces and leisure opportunities.
With its prime school catchment status, high-quality finish, and desirable location, 1 Albany Cottages is a rare find and one not to be missed.
Accommodation:
- Private door into welcoming reception hall with storage cupboard off
- Superb main lounge with staircase to upper level
- Useful study/home office off the lounge with window to the rear
- Magnificent dining kitchen complete with a comprehensive range of base and wall units, integrated appliances, Quartz worktops, breakfasting bar, picture window to the rear and three Velux windows to the rear
- Invaluable utility room off the kitchen with window to the side
- Versatile third bedroom with window to the rear and additional window to the side
- Stylish three-piece bathroom comprising bath, over bath shower, toilet and wash hand basin. Window to the side
- Upper landing
- Bedroom one with window to the front and fitted wardrobes
- Bedroom two with window to the rear
- Contemporary three-piece shower room. Velux window to the side
- Gas central heating
- Double glazing
- Stunning, fully enclosed rear garden
- Off street parking with space for two vehicles
More Details
EPC: C
Council Tax: E
Tenure: Freehold
Your home may be repossessed if you do not keep up repayments on your mortgage. There may be a fee for mortgage advice. The actual amount you pay will depend upon your circumstances.
Similar Properties
Looking To Sell Or Let?
Rettie is one of the most trusted and well-respected names in property. Our unrivalled market knowledge helps people from around the world buy, sell, let and develop property in Scotland and the North East of England - from city apartments and rural cottages to large townhouses and prime country homes, farms and estates. We deal with some of the most prestigious properties on the market, but provide the same exceptional standards of service and value for money to all our clients.

