Property Description
A well maintained and rarely available two-bedroom second floor flat forming part of an incredibly convenient development. The internal accommodation benefits from excellent natural light and is of generous proportions. Notable highlights include a bright and spacious main lounge, a separate kitchen, two double bedrooms and a three-piece bathroom. The is ample storage off the reception hall together with fitted wardrobes in bedroom one. The property further benefits from availability of off-street parking permit within the residents’ car park.
Located centrally between the Finnieston and Yorkhill districts, the property offers extensive amenities in the immediate area including a selection of outstanding restaurants, bars and convenience shopping. The property is within the catchment area for Hillhead Primary School and Kelvin Park Nursery. Kelvingrove Park and The University of Glasgow are also close by together with excellent transport links.
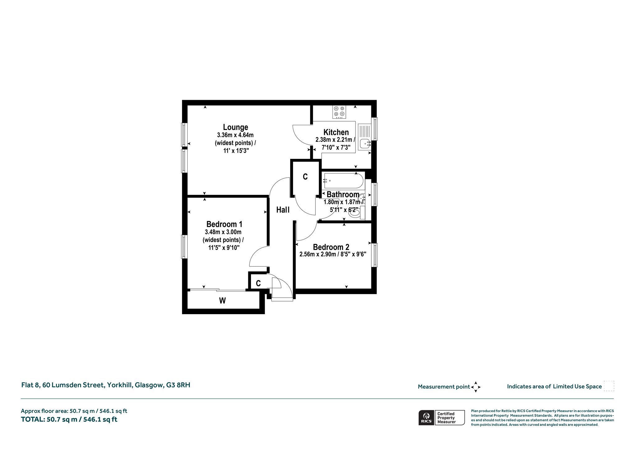
Accommodation:
- Security entry system
- Communal entrance hall
- Reception hall with two storage cupboards off
- Superb lounge/dining room with two windows to the rear
- Separate kitchen off the lounge/dining room complete with a range of base and wall units, appliances and window to the front
- Bedroom with window to the rear and fitted mirrored wardrobes
- Bedroom two with window to the front
- Three-piece bathroom comprising bath, over bath shower, toilet and wash hand basin. Window to the front
- Electric heating
- Double glazing
- Availability of off-street residents’ parking permit
More Details
EPC: D
Council Tax Band: D
Tenure: Freehold
Your home may be repossessed if you do not keep up repayments on your mortgage. There may be a fee for mortgage advice. The actual amount you pay will depend upon your circumstances.
Similar Properties
Looking To Sell Or Let?
Rettie is one of the most trusted and well-respected names in property. Our unrivalled market knowledge helps people from around the world buy, sell, let and develop property in Scotland and the North East of England - from city apartments and rural cottages to large townhouses and prime country homes, farms and estates. We deal with some of the most prestigious properties on the market, but provide the same exceptional standards of service and value for money to all our clients.
