Garden Flat ., 47 Hyndland Road, Hyndland, Glasgow, G12 9UX

Hyndland, Glasgow, G12 9UX
Sold
Pin View on map

Offers Over £335,000

House

Duplex Apartment

Bed

2 Bedrooms

Bathroom

2 Bathrooms

Reception

1 Reception Room

Size

1,066 sq.ft

Tree

Communal Garden

Parking

Off Street Parking, On Street/Permit

Telephone

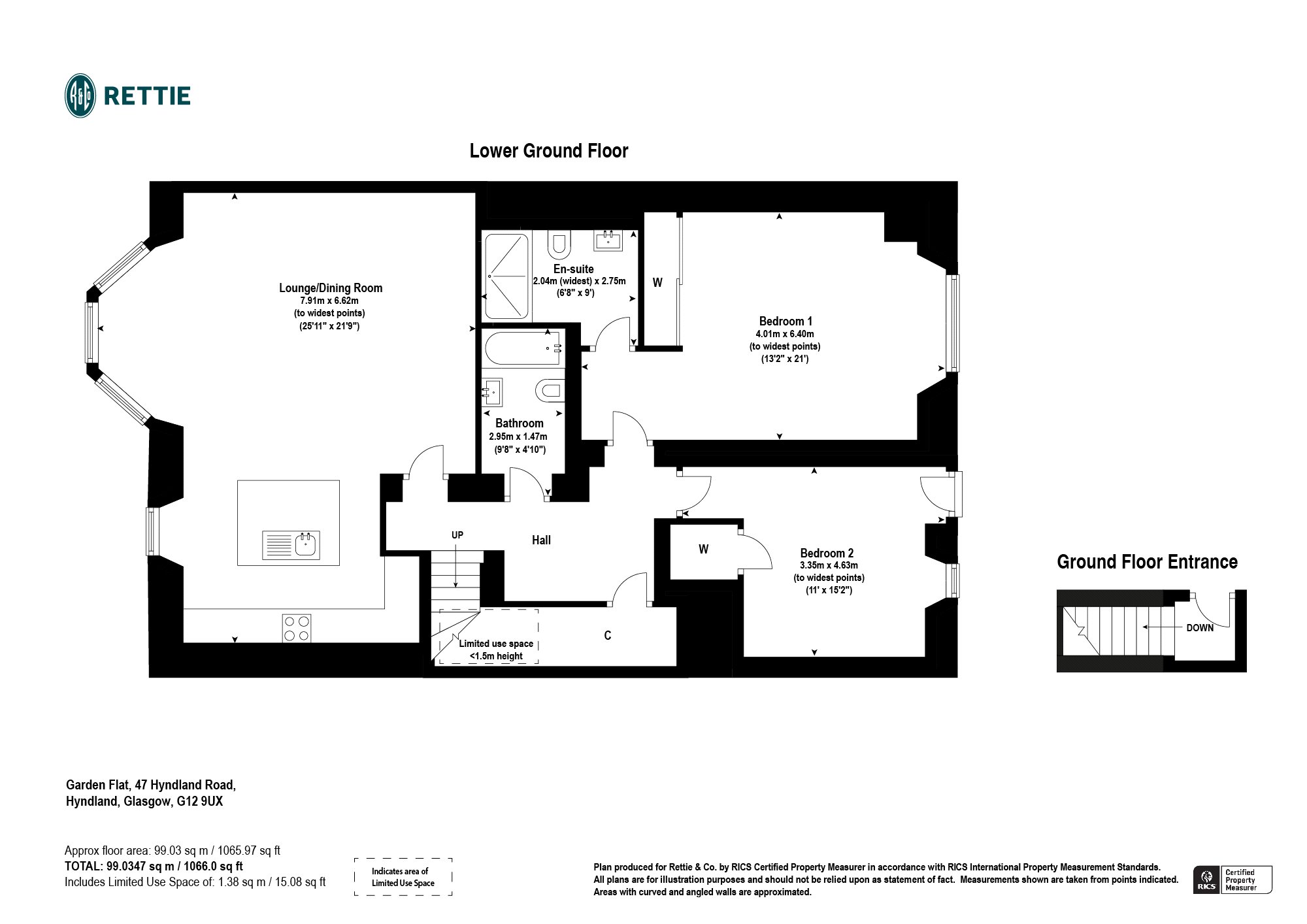
Property Description

This is an immaculate two -bedroom Garden Level Flat forming part of an attractive blonde sandstone Terraced Townhouse in the popular and convenient District of Hyndland. Very tastefully upgraded throughout, the accommodation comprises a generous bay windowed living dining room to with open plan kitchen, two double bedrooms, (bedroom one with ensuite shower room, bedroom two with door to the back garden), and there is a stylish three-piece bathroom. There is also excellent storage provision within the property.

Having the distinct feature of a private door from the communal hall leading to a private staircase this exceptional apartment has a bright south facing frontage. The back door from bedroom two is a further feature and leads out to the communal garden, linking the flat with the outside world.

There are a fine section of local amenities on Hyndland Road, Clarence Drive and Byres Road together with excellent transport links including Hyndland Railway Station and access to both The University of Glasgow and The Botanic Gardens.

Accommodation:

  • Secure entry to a well-maintained communal entrance hallway
  • Entering from the ground floor, a private stair leads down to a welcoming reception hallway complete with fresh neutral decoration and includes a large under stair cupboard
  • Bright front facing living/dining room with delicate ceiling cornice, three section bay window and open Plan kitchen
  • The kitchen is complete with a contemporary range of base and wall units, contrasting surfaces, tiled back splash, and there is an island incorporation a section for barstools
  • Bedroom one is a generous double room with two rear aspect windows carpet floor coverings, fitted wardrobes, and there is a an ensuite shower room situated off
  • Contemporary three-piece ensuite shower room include WC, floating wash and basin with double drawer vanity storage, large walk-in shower with rainwater and handheld fittings, all complimented with partially tiled wall coverings, tiled floor coverings, and a chrome heated towel rail
  • Bedroom two is a second double room with rear aspect window, rear door, storage cupboard, and carpet floor coverings. The door leads directly out to the communal garden
  • Bathroom complete with a stylish white three piece suite to include WC, wash hand basin with double drawer storage, and bath with shower attachment over, all complimentary with partially tiled wall coverings, tiled floor coverings, and a chrome heated towel rail
  • Gas central heating
  • Double glazing to rear
  • On the street permit parking & private allocated parking space
  • Shared rear garden & Private front

EPC: C
Council Tax: E
Tenure : Freehold

More Details

Situation: Communal GardenPrivate Garden
Council Tax Band: E
Tenure: Contact Branch

Contact Us

Anne Sutherland

Anne Sutherland

Associate Director
Craig Roberts

Craig Roberts

Mortgage & Protection Advisor
Mortgage Calculator
Monthly payments
Please set an interest rate.

Your home may be repossessed if you do not keep up repayments on your mortgage. There may be a fee for mortgage advice. The actual amount you pay will depend upon your circumstances.

Tax Calculator
LBTT calculator for properties purchased in Scotland. Stamp Duty calculator for properties purchased in England.
Land & buildings transaction tax (LBTT)
= £0
New build house with stone and timber cladding

Looking To Sell Or Let?

Rettie is one of the most trusted and well-respected names in property. Our unrivalled market knowledge helps people from around the world buy, sell, let and develop property in Scotland and the North East of England - from city apartments and rural cottages to large townhouses and prime country homes, farms and estates. We deal with some of the most prestigious properties on the market, but provide the same exceptional standards of service and value for money to all our clients.