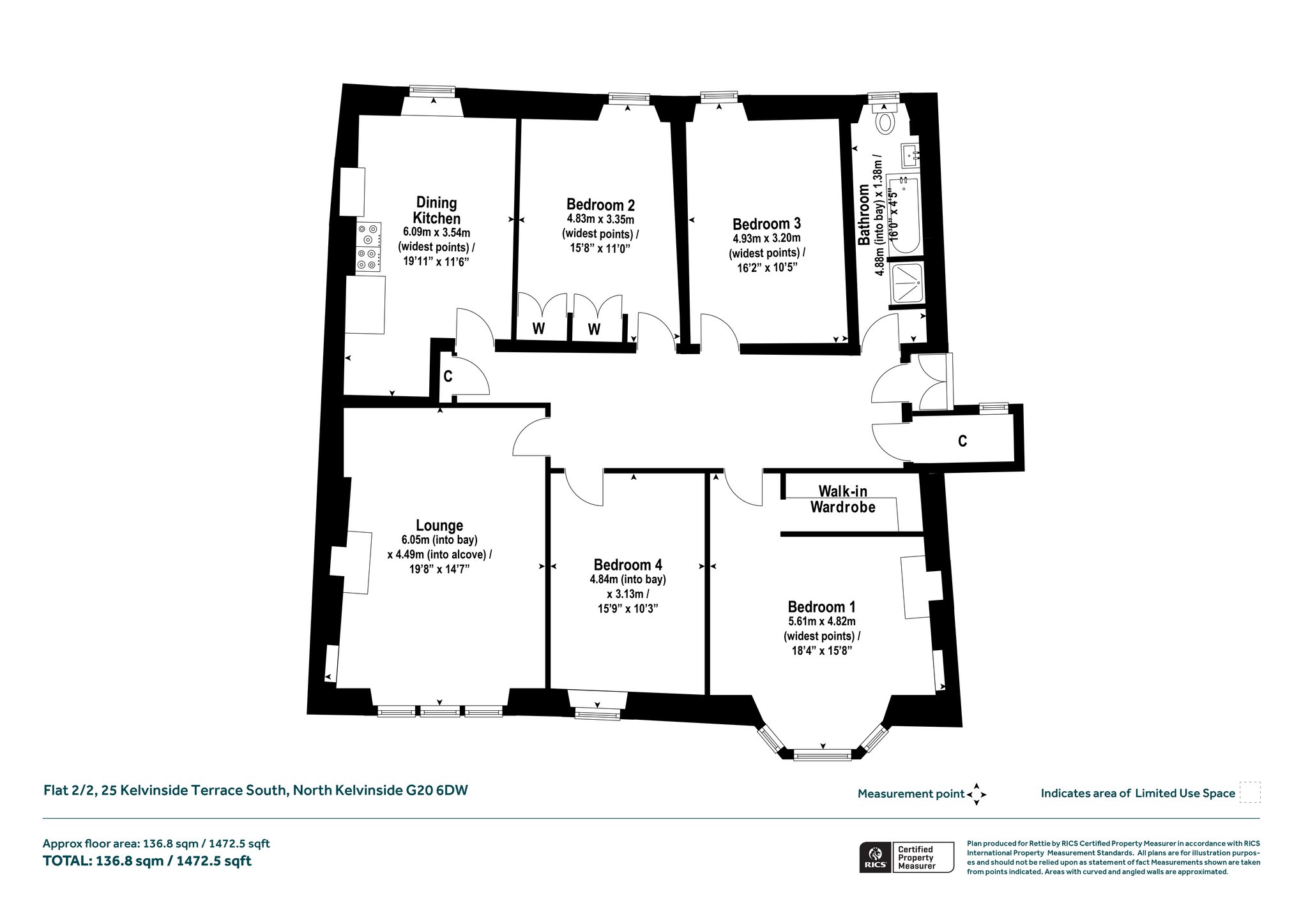
Flat 2/2, 25 Kelvinside Terrace South, North Kelvinside, Glasgow, G20 6DW

North Kelvinside, Glasgow, G20 6DW
Under Offer
Pin View on map

Fixed Price £470,000

House

Upper Floor Apartment

Bed

4 Bedrooms

Bathroom

1 Bathroom

Reception

1 Reception Room

Size

1,472 sq.ft

Tree

Communal Garden

Parking

On Street/Permit

Telephone

Property Description

Unexpectedly back on the market

This extremely bright, charming four-bedroom flat enjoys a south-facing frontage and occupies a second-floor position within a blonde sandstone tenement building in the incredibly popular North Kelvinside district.

Kelvinside Terrace South is a quiet yet particularly convenient West End address and has the advantage of the buildings being on one side of the road only, resulting in a quite spectacular front outlook to the beautiful mature trees which line the Kelvin Walkway.

Internally the flat is extremely well proportioned and extends to five adaptable apartments of a fabulous main lounge, a large fitted dining kitchen, four bedrooms and a four-piece bathroom. There are delightful traditional features including fireplaces, natural wood finishes, wooden flooring and detailed cornice work.

Situation

25 Kelvinside Terrace South is an incredibly convenient West End address with an excellent range of amenities available within walking distance on Byres Road and Great Western Road. Transport facilities include a regular bus service, Hillhead and Kelvinbridge underground and an excellent road network links to the Clyde Tunnel and expressway for the M8. The area as a whole proves popular with those requiring access to Glasgow University and Kelvingrove Park. It is also close to local hospitals including Gartnavel General and The Queen Elizabeth University Hospital accessed via the Clyde Tunnel.

Accommodation

  • Security entry system to communal entrance close
  • Entrance vestibule with double storm doors
  • Large, welcoming reception hall with two storage cupboards off, wooden flooring and ornate ceiling cornice
  • South-facing main lounge with three-section window to the front, focal point fireplace, wooden flooring and ornate ceiling cornicing .
  • Large dining kitchen with window to the rear, recess and at the back of the room, worktop surfaces and built-in window seat
  • South-facing bedroom one (principal) with three-section bay window to the front, focal point fireplace, wooden flooring and rich ornate cornicing
  • “Pod” style dressing room at the back of bedroom one
  • Bedroom two with window to the rear, wooden flooring and built-in wardrobe/storage
  • Bedroom three with window to the rear and wooden flooring
  • Bedroom four with window to the front and wooden flooring
  • Bathroom with window to the rear and four-piece white suite including a separate shower cubicle

EPC: C
Council Tax: E
Tenure : Freehold

More Details

Situation: Communal Garden
Council Tax Band: E
Tenure: Freehold

Contact Us

Jennifer Ward

Jennifer Ward

Senior Sales Negotiator
Anne Sutherland

Anne Sutherland

Associate Director
Craig Roberts

Craig Roberts

Mortgage & Protection Advisor
Mortgage Calculator
Monthly payments
Please set an interest rate.

Your home may be repossessed if you do not keep up repayments on your mortgage. There may be a fee for mortgage advice. The actual amount you pay will depend upon your circumstances.

Tax Calculator
LBTT calculator for properties purchased in Scotland. Stamp Duty calculator for properties purchased in England.
Land & buildings transaction tax (LBTT)
= £0
New build house with stone and timber cladding

Looking To Sell Or Let?

Rettie is one of the most trusted and well-respected names in property. Our unrivalled market knowledge helps people from around the world buy, sell, let and develop property in Scotland and the North East of England - from city apartments and rural cottages to large townhouses and prime country homes, farms and estates. We deal with some of the most prestigious properties on the market, but provide the same exceptional standards of service and value for money to all our clients.