Flat 0/3, 1 Dick Street, North Kelvinside, Glasgow, G20 6JF
Property Description
Set within a quiet green pocket of North Kelvinside is this modern one bedroom ground floor apartment, balancing city convenience with peaceful ambience. Everyday amenities, public transport, educational establishments, and the heart of the West End are within easy reach, making this a compelling consideration for first time buyers, professionals, or investors.
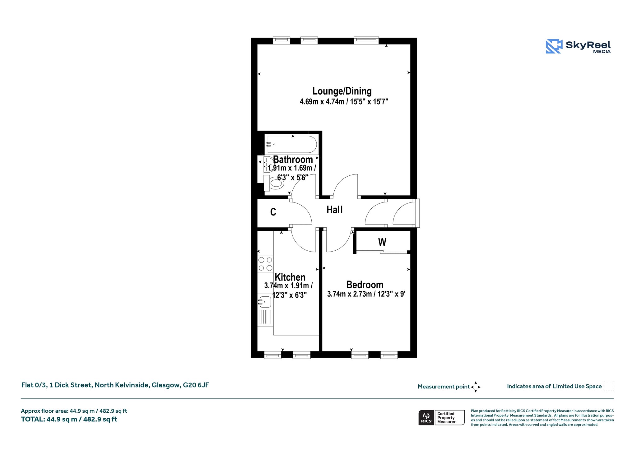
The layout flows naturally from an inviting hallway into a generous living room with three windows and a dining recess, also ideal for a dedicated work-from-home solution. The separate kitchen, with potential for dining, keeps cooking neatly out of sight yet sociable, while the double bedroom benefits from fitted wardrobes. A three-piece bathroom with electric shower completes the accommodation, and a further hall cupboard provides imperative storage provision.
The surrounding gardens are luscious and expansive, with “The Kelvin Way” and famed Kelvingrove Park just a short stroll past the Kelvin Stevenson Memorial Church. Nearby you will find plenty of cafés and boutiques, while Kelvinbridge Underground places the city centre and beyond within easy reach. Riverside paths along the Kelvin offer miles of walking and cycling, and cultural landmarks including Kelvingrove Art Gallery & Museum and the Botanic Gardens are in close proximity. Private residents’ off-street parking provides exceptional convenience, rounding off a superb opportunity in a fantastic Glaswegian West End setting.
Accommodation
- Secure communal entrance.
- Hallway with storage off.
- Spacious lounge with three windows to the side and brilliant dining recess.
- Separate kitchen with fitted units and cabinetry, double window to the side, free standing fridge and washing machine, and space for a dining table.
- Double bedroom with twin windows to the side and integrated wardrobes.
- Three piece bathroom with electric shower over bath.
- Off street residents’ parking.
- Communal garden.
- Electric heating.
More Details
EPC: D
Council Tax: C
Tenure: Freehold
Your home may be repossessed if you do not keep up repayments on your mortgage. There may be a fee for mortgage advice. The actual amount you pay will depend upon your circumstances.
Similar Properties
Looking To Sell Or Let?
Rettie is one of the most trusted and well-respected names in property. Our unrivalled market knowledge helps people from around the world buy, sell, let and develop property in Scotland and the North East of England - from city apartments and rural cottages to large townhouses and prime country homes, farms and estates. We deal with some of the most prestigious properties on the market, but provide the same exceptional standards of service and value for money to all our clients.
