2 Park Terrace East Lane, Park, Glasgow, G3 6HG

Park, Glasgow, G3 6HG
Sold
Pin View on map

Offers Over £129,000

House

Ground Floor House

Bed

1 Bedroom

Bathroom

1 Bathroom

Reception

1 Reception Room

Size

646 sq.ft

Tree

Private Garden

Parking

Off Street Parking

Telephone

Property Description

Located within the highly desirable Park District of Glasgow’s West End, this traditional mews-style duplex presents a rare opportunity for buyers seeking a project in one of the city’s most exclusive neighbourhoods and benefits further from a private terrace to rear.

Tucked away on a quiet cobbled lane just off Park Street South, the property enjoys a peaceful, almost hidden position between Park Circus and Park Terrace, just a stone’s throw from the open green space of Kelvingrove Park.

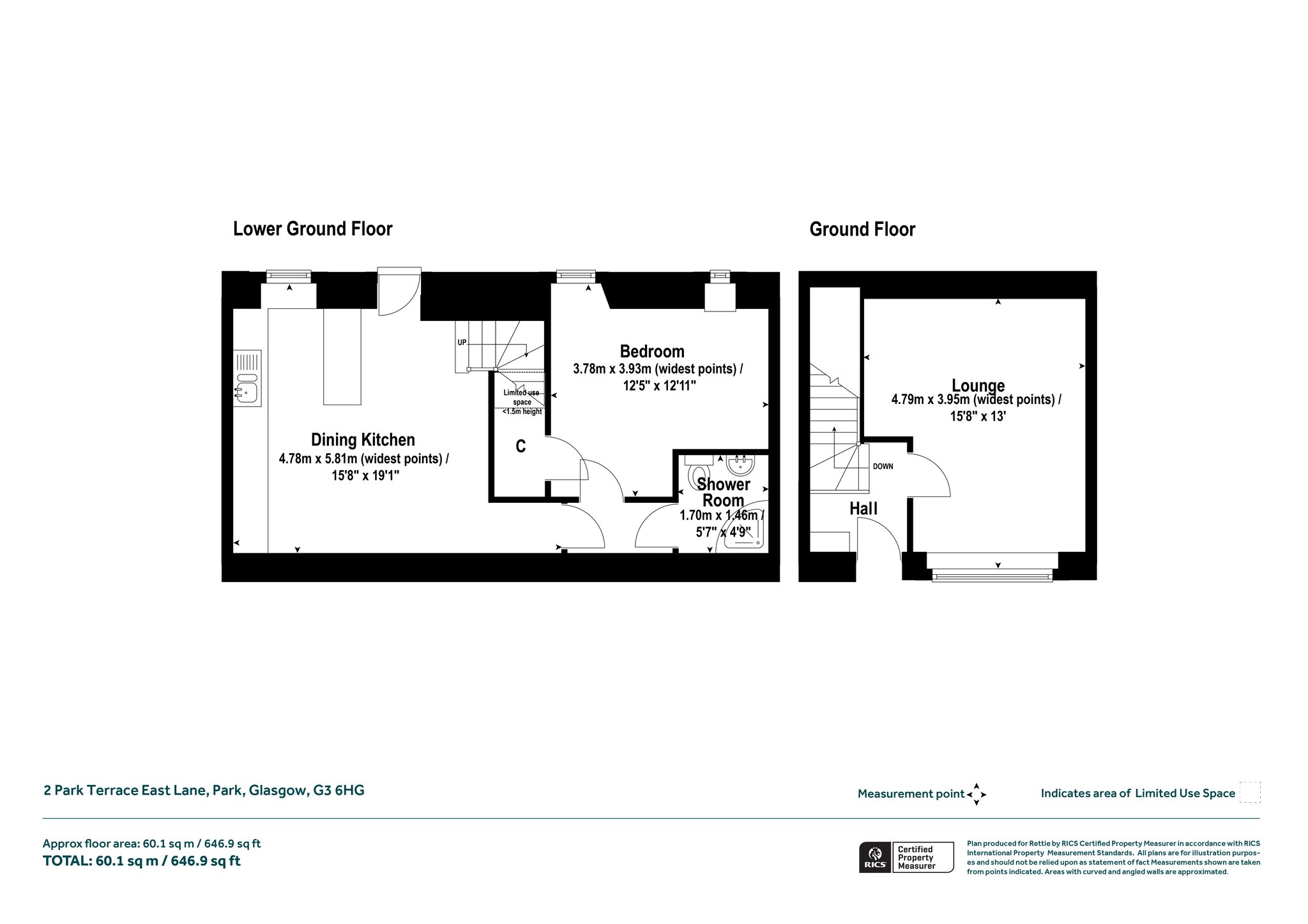
Set over two levels and accessed via its own private main door, the accommodation offers a well-proportioned layout with excellent potential for reconfiguration or upgrading. The ground floor comprises an entrance vestibule and a bright living room, while a staircase descends to the lower ground level, where you’ll find a large dining kitchen, a generous double bedroom, and a shower room. A door from the dining kitchen leads out to a private, covered terrace area which has been laid to decking.

While the property is currently presented in basic condition, it offers tremendous scope for improvement. Prospective buyers should refer to the Home Report and damp proofing survey, which outline the essential modernisation and remedial works required. With vision and investment, this home could be transformed into a stylish and comfortable residence, perfectly positioned between the vibrancy of Byres Road and the convenience of Glasgow City Centre.

This is an exciting opportunity for developers, investors, or owner-occupiers keen to add value and create a bespoke home in an outstanding location.
________________________________________
Attributes
• Sought-after Park District location – One of Glasgow’s most prestigious and architecturally rich neighbourhoods
• Peaceful mews lane setting – Tucked away between Park Circus and Park Terrace
• Private rear terrace.
• Private main door entry – Desirable and secure duplex arrangement
• Spacious dining kitchen – Offering excellent renovation potential
• Flexible accommodation over two levels – Includes generous living room, double bedroom, and shower room
• Moments from Kelvingrove Park – Enjoy easy access to green space and outdoor amenities
• Convenient for transport links – Quick access to M8 motorway and Glasgow Airport
• Requires modernisation – Ideal for buyers looking for a project or investment
• Excellent development potential – Scope to create a stylish home in a high-demand location

EPC: D
Council Tax: D
Tenure : Freehold

More Details

Situation: Private Garden
Council Tax Band: D
Tenure: Freehold

Contact Us

Lyndsey Mercer

Lyndsey Mercer

Sales Negotiator
Craig Roberts

Craig Roberts

Mortgage & Protection Advisor
Mortgage Calculator
Monthly payments
Please set an interest rate.

Your home may be repossessed if you do not keep up repayments on your mortgage. There may be a fee for mortgage advice. The actual amount you pay will depend upon your circumstances.

Tax Calculator
LBTT calculator for properties purchased in Scotland. Stamp Duty calculator for properties purchased in England.
Land & buildings transaction tax (LBTT)
= £0
New build house with stone and timber cladding

Looking To Sell Or Let?

Rettie is one of the most trusted and well-respected names in property. Our unrivalled market knowledge helps people from around the world buy, sell, let and develop property in Scotland and the North East of England - from city apartments and rural cottages to large townhouses and prime country homes, farms and estates. We deal with some of the most prestigious properties on the market, but provide the same exceptional standards of service and value for money to all our clients.