Flat 7, 3 Coopers Well Street, Partick, Glasgow, G11 6QE
Property Description
A bright and well-proportioned three-bedroom apartment forming part of a modern, well-maintained development located just off the foot of Byres Road in the heart of Glasgow’s West End. The property occupies a highly convenient yet peaceful setting, perfectly placed for immediate access to the area’s superb range of amenities, cafés, restaurants, and transport links.
This well-appointed apartment also benefits from a private allocated parking space within the secure underground residents’ car park—an excellent advantage in such a central location. The development itself is factored and well cared for, with secure entry, tidy communal hallways, a lift, and a well-lit parking area.
Internally, the property is presented in bright, neutral tones throughout, with fresh décor and a neat presentation that allows any incoming buyer to move in and enjoy immediately. The accommodation is versatile and well laid out, appealing to a wide range of purchasers, in particular students and academics who wish to reside near Glasgow University.
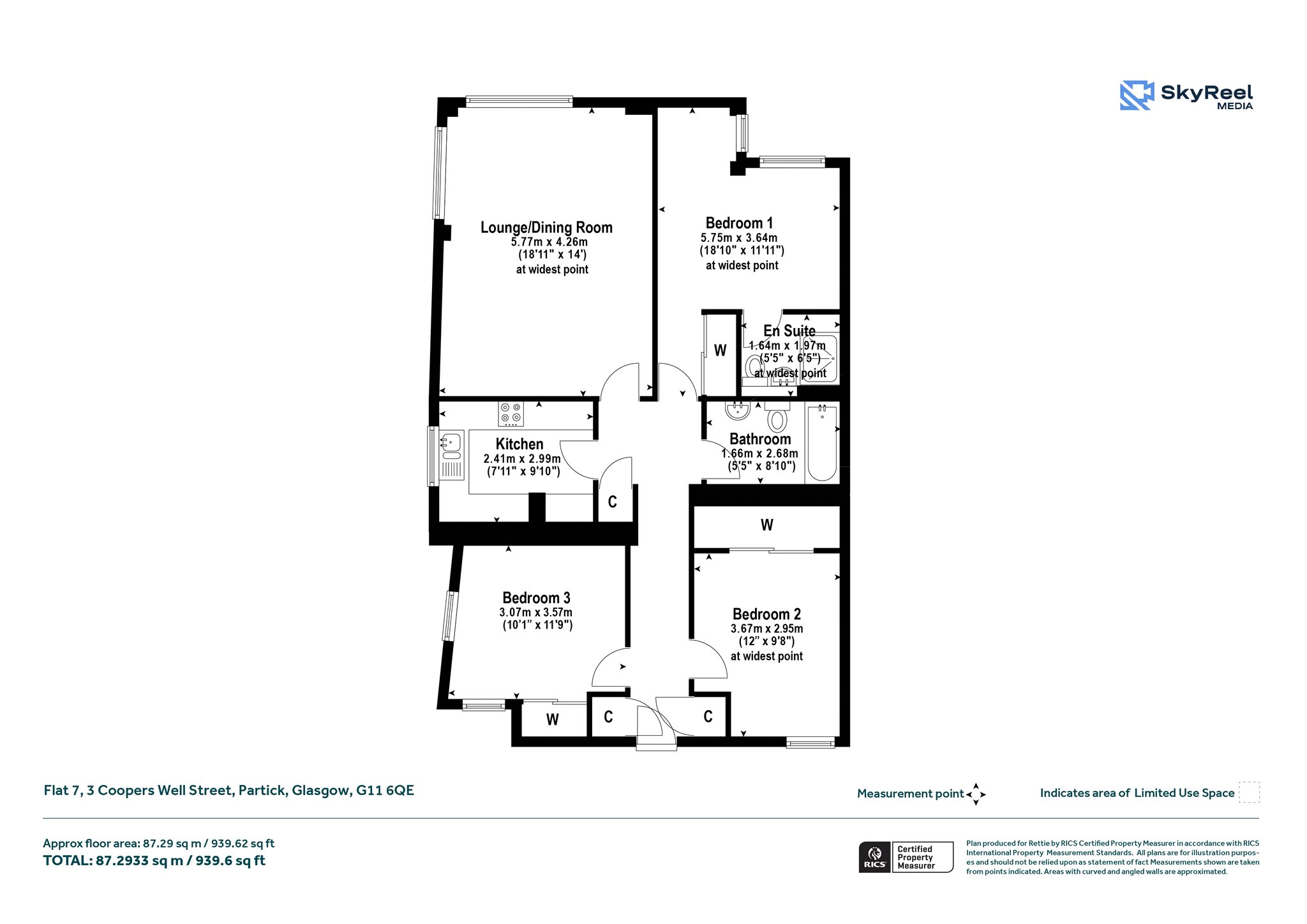
In brief, the accommodation extends to: a welcoming reception hall with three useful storage cupboards, a spacious corner living and dining room with twin aspects and open outlooks towards Byres Road, and a fitted galley-style kitchen with a good range of wall and base units along with integrated appliances. There are three well-proportioned double bedrooms, each with built-in wardrobes, while the principal bedroom also benefits from an en-suite shower room. Completing the accommodation is a main bathroom with white suite, shower over bath, and neutral tiling.
Externally, residents benefit from the security and convenience of the underground car park, along with well-tended communal areas and modern lift access to all floors.
Coopers Well Street enjoys a prime West End location just a short stroll from Byres Road, offering easy access to a wide selection of shops, bars, cafés, and restaurants, along with the Botanic Gardens, Kelvinhall Underground Station, and numerous bus routes. The location is ideal for professionals, academics, and students alike, providing excellent connectivity while retaining the charm and character for which the West End is renowned.
Attributes
- Bright, well-maintained three-bedroom modern apartment
- Superb central West End location just off Byres Road
- Secure underground allocated parking space
- Peaceful yet highly convenient setting close to all amenities
- Spacious corner-positioned living and dining room with twin aspect
- Fitted galley-style kitchen with integrated appliances
- Three double bedrooms, all with built-in wardrobes
- Principal bedroom with private en-suite shower room
- Main bathroom with white suite and shower over bath
- Secure door entry, lift access, and well-kept communal areas
- Ideal for professionals, academics, or students
- Within walking distance of Glasgow University and the Botanic Gardens
- Excellent transport links including underground, bus routes, and nearby road networks
More Details
EPC: C
Council Tax: F
Tenure: Freehold
Your home may be repossessed if you do not keep up repayments on your mortgage. There may be a fee for mortgage advice. The actual amount you pay will depend upon your circumstances.
Similar Properties
Looking To Sell Or Let?
Rettie is one of the most trusted and well-respected names in property. Our unrivalled market knowledge helps people from around the world buy, sell, let and develop property in Scotland and the North East of England - from city apartments and rural cottages to large townhouses and prime country homes, farms and estates. We deal with some of the most prestigious properties on the market, but provide the same exceptional standards of service and value for money to all our clients.
