Offers Over £225,000
Ground Floor Apartment
2 Bedrooms
1 Bathroom
1 Reception Room
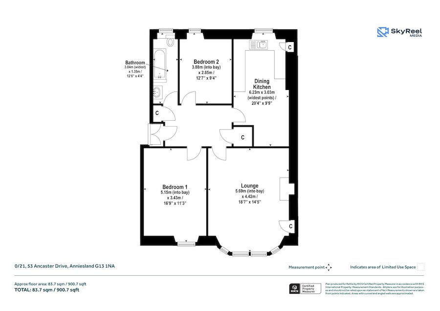
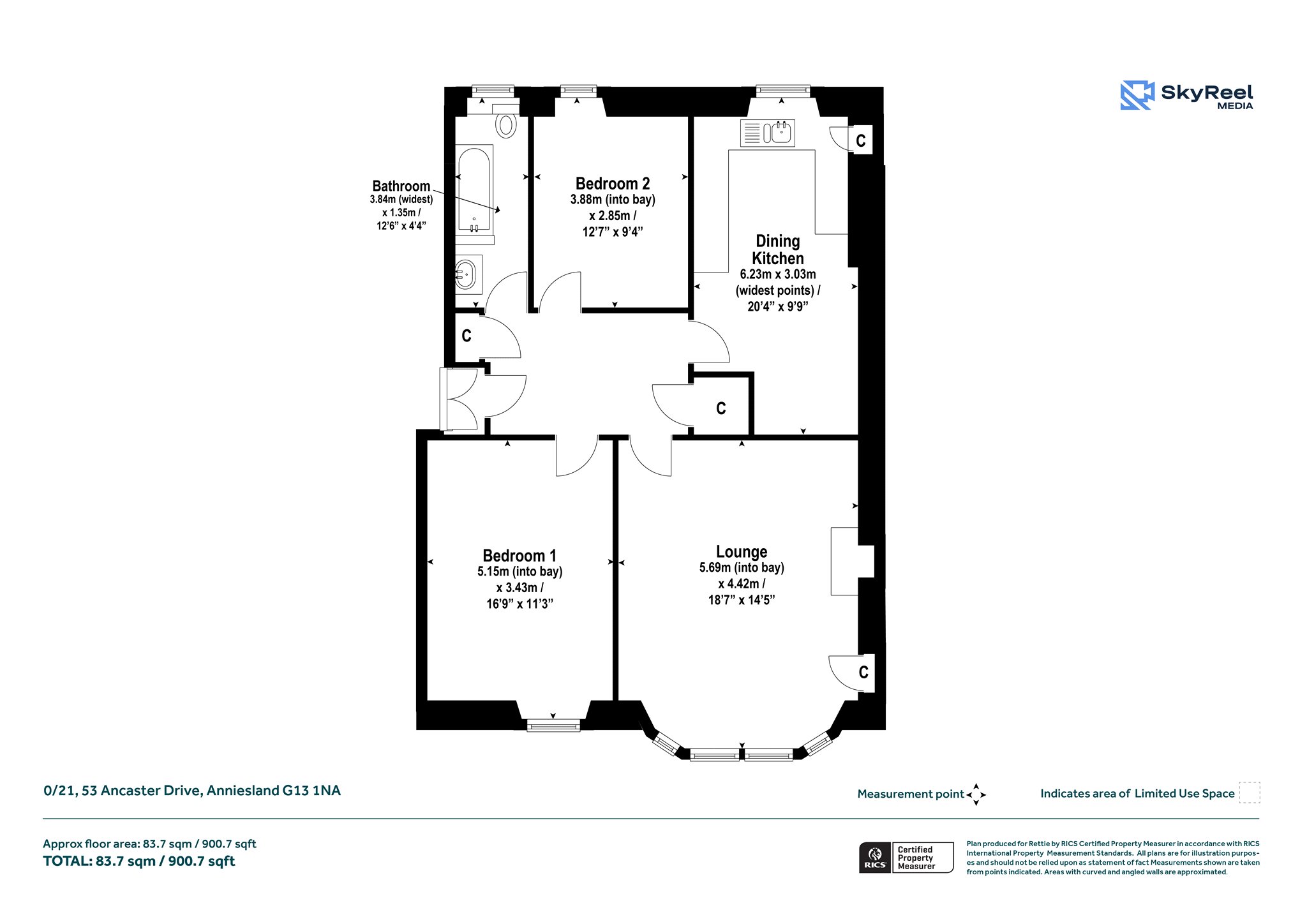
900 sq.ft
Private Garden
On Street/Permit
Property Description
Enjoying a quiet yet convenient location, this superb two-bedroom flat occupies a ground floor position within an elegant red sandstone tenement, this appealing property has the significant advantage of being situated List One catchment area for Jordanhill School making the property ideal for young families, first-time buyers, or professionals alike.
Internally, the accommodation is comfortably proportioned and immaculately presented throughout and includes a welcoming reception hall, an impressive bay windowed lounge, a separate dining kitchen, two generous double bedrooms and a contemporary three-piece bathroom suite with stylish tiling and fittings.
Located just off of Great Western Road, 53 Ancaster Drive enjoys a peaceful, leafy setting while being within easy reach of excellent amenities. Nearby, Anniesland Cross offers a variety of local shops, cafes, restaurants, and supermarkets, while Crow Road Retail Park provides further retail options. The area is exceptionally well connected, with Jordanhill and Anniesland train stations offering quick links to Glasgow city centre and beyond. Outdoor enthusiasts will appreciate the proximity to Victoria Park, the Forth and Clyde Canal walkways, and a range of local sports clubs.
Accommodation:
- Security entry system
- Communal entrance close
- Storm door entrance vestibule leading into broad and welcoming reception hall with two useful storage cupboards off
- Superb lounge with four section bay window, focal point fireplace and shelved press
- Modern dining kitchen complete with a range of base and wall units, appliances, dining recess and window to the rear
- Bedroom one with window to the front
- Bedroom two with window to the rear
- Stylish three-piece bathroom comprising bath, over bath shower, toilet and wash hand basin. Window to the rear
- Gas central heating
- Double glazing
- Well-maintained shared garden to the rear of the building
More Details
Situation: Private Garden
Council Tax Band: D
Tenure: Freehold
Your home may be repossessed if you do not keep up repayments on your mortgage. There may be a fee for mortgage advice. The actual amount you pay will depend upon your circumstances.
Similar Properties
Looking To Sell Or Let?
Rettie is one of the most trusted and well-respected names in property. Our unrivalled market knowledge helps people from around the world buy, sell, let and develop property in Scotland and the North East of England - from city apartments and rural cottages to large townhouses and prime country homes, farms and estates. We deal with some of the most prestigious properties on the market, but provide the same exceptional standards of service and value for money to all our clients.
