1/1, 551 Sauchiehall Street, Charing Cross, Glasgow, G3 7PQ
Offers Over £345,000
First Floor Apartment
3 Bedrooms
2 Bathrooms
1 Reception Room
1,666 sq.ft
Property Description
Occupying a preferred first floor position within a handsome traditional sandstone building, this substantial three-bedroom flat offers an exceptional blend of classic character, generous proportions and a highly convenient setting. Perfectly positioned, the property sits right on the cusp of Glasgow’s vibrant West End and the bustling City Centre, making it an ideal home for those seeking both lifestyle and connectivity.
The accommodation is immaculately presented throughout and enjoys an abundance of natural light, enhancing the sense of space and comfort within each room. The standout feature of the home is the superb main lounge, a bright and welcoming living space with pleasant aspects along Sauchiehall Street - ideal for both relaxing and entertaining.
To the rear, a modern dining kitchen provides a stylish and practical hub for everyday living, offering ample space for dining and a contemporary finish. The principal bedroom is particularly generous and benefits from a stylish en suite shower room. Two further bedrooms, both of excellent size, offer flexibility for family living, guests or home working. A well-appointed three-piece bathroom, accessed from the reception hall, completes the internal accommodation.
The location is a key highlight of this property. Charing Cross is renowned for its superb range of local amenities, all within easy walking distance. Residents can enjoy an array of cafés, restaurants, bars and boutique shops, as well as larger supermarkets and everyday conveniences. The nearby West End offers a wealth of cultural attractions, including Kelvingrove Park, the University of Glasgow and an eclectic mix of independent retailers and eateries, while the City Centre provides extensive shopping, leisure and business facilities.
Excellent transport links are available, with Charing Cross railway station close at hand, as well as easy access to the M8 motorway, making commuting straightforward. Regular bus services and nearby subway connections further enhance accessibility across the city.
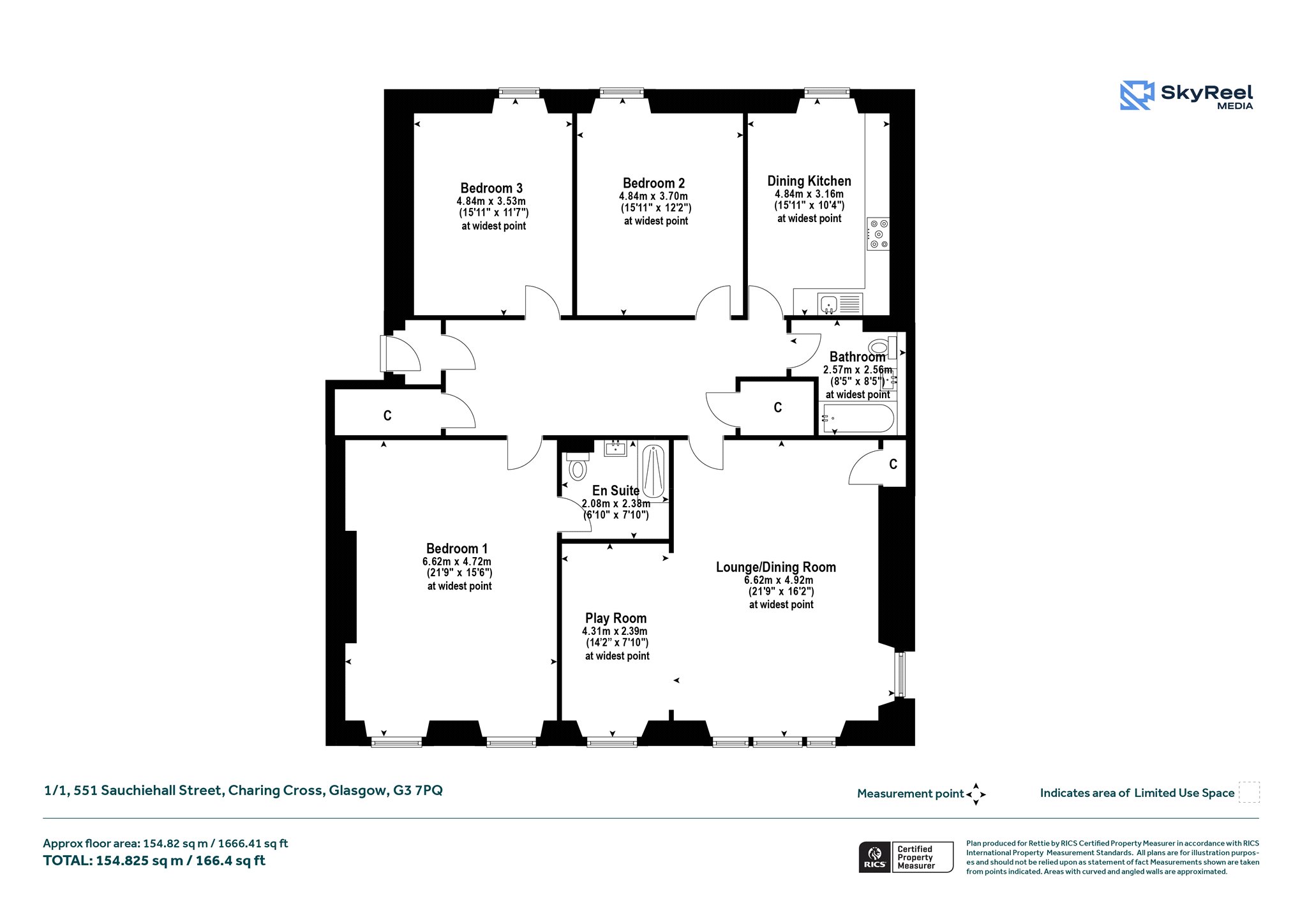
Accommodation:
- Security entry system
- Communal entrance close
- Broad and welcoming reception hall with wooden flooring, ceiling cornice and two useful storage cupboards off
- Outstanding main longe with three section window to the front, additional window to the front, window to the side, ornate ceiling cornice, ceiling rose and shelved press
- Modern dining kitchen complete with a range of base and wall units, appliances and window to the rear
- Bedroom one with two windows to the front, wooden flooring and ornate ceiling cornice
- Stylish en suite shower room comprising three-piece suite
- Bedroom two with window to the rear
- Bedroom three with window to the rear
- Three-piece bathroom comprising bath, over bath shower, toilet and wash hand basin
- Gas central heating
- Well-presented shared garden to the rear of the building
- Availability of on street residents’ parking permit
More Details
Situation: Contact branch
Council Tax Band: E
Tenure: Freehold
Your home may be repossessed if you do not keep up repayments on your mortgage.
There may be a fee for mortgage advice. The actual amount you pay will depend upon your circumstances. The fee is up to 1% but a typical fee is 0.3% of the amount borrowed.
Similar Properties
Looking To Sell Or Let?
Rettie is one of the most trusted and well-respected names in property. Our unrivalled market knowledge helps people from around the world buy, sell, let and develop property in Scotland and the North East of England - from city apartments and rural cottages to large townhouses and prime country homes, farms and estates. We deal with some of the most prestigious properties on the market, but provide the same exceptional standards of service and value for money to all our clients.
