Property Description
Melrose Gardens is an attractive and, being a cul-de-sac, particularly peaceful address in the leafy West End district of North Kelvinside. Known for its superb collection of beautiful red sandstone tenements, this charming locale attracts a broad spectrum of buyers including professional couples, students, and academics who wish to live within walking distance of Glasgow University & Glasgow School of Art. In recent years this location has also become extremely sought-after amongst those with an artistic or creative background, who wish to be well-positioned for gaining quick access to the Royal Conservatoire, National Theatre, Whisky Bond, and Civic House. Melrose Gardens is also very well-placed for quick access to major road networks and lies within minutes’ drive of access points to the M8 motorway – making this a brilliant address for professionals who split their working week between Glasgow and Edinburgh.
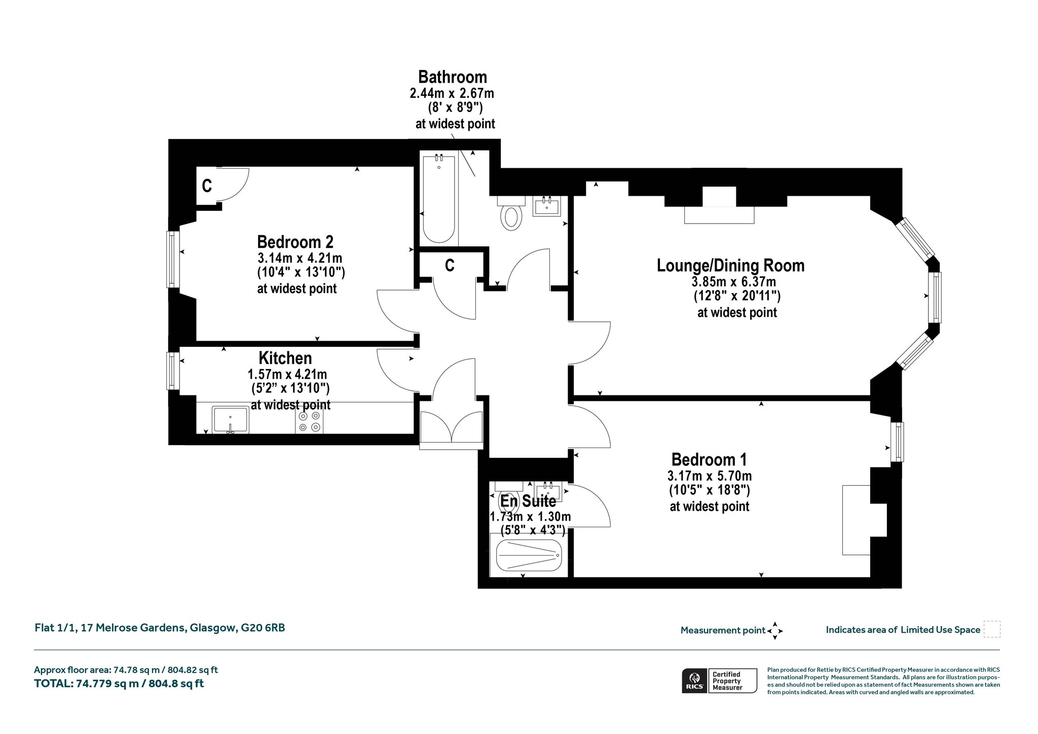
As you will see from the attached photographs, HD video and floorplan – this is a beautiful two-bedroom apartment, offering comfortable, sympathetically modernised accommodation, which has been decorated beautifully throughout in a stylish combination of tones that have been skillfully selected to complement the Victorian architecture of this stunning home. It is plain to see that the current owner has a real understanding of design and a background in architecture – which has resulted in a presentation of rare calibre and consistency. Traditional features have been celebrated and emphasised during the re-working and upgrading of the accommodation and, as such, there are beautiful period details throughout. Even the bathroom and en-suite tiling are a nod to the Victorian era in which the building was constructed. That said, modern comforts and luxurious touches have also been carefully incorporated to enhance the feel and usability of the home.
In Brief, The Accommodation Extends To
A welcoming reception hall with stripped, sanded and stained floorboards that continue seamlessly throughout the home and complement each of the principal apartments. The living room is of lovely proportions and features a bay window that floods the space with natural light. A beautiful traditional fireplace with inlaid oval mirror, elegant, blue-toned tiling and gas insert creates a warm focal point. The galley kitchen is smartly designed with sleek matte cabinetry, oak butcherblock work surfaces and integrated appliances – and includes a charming window seat to perch on with a morning coffee.
The principal bedroom is also of generous proportions and features a small cast iron fireplace with midnight blue tiling – a feature that inspired the colour scheme for the room. The en-suite shower room is a particularly elegant and well-executed nod to the property’s period of construction, incorporating an open shower, traditional chrome fixtures and a striking solid marble basin sourced from Italy.
The second bedroom is similarly spacious and can easily accommodate a king-sized bed, free-standing wardrobes and a reading chair by the window. Located at the quiet rear elevation, it enjoys peaceful views over the mature shared gardens. Completing the accommodation is the beautifully styled internal bathroom, with blush pink tiling complemented by a contrasting band of white with black edging – another clever nod to the Victorian palette. A lovely bath with shower over, fluted glass door and elegant fixtures complete the look with charm and sophistication.
To the rear of the building, residents benefit from a superb open garden space, the result of combining gardens from surrounding tenements several years ago. This creates a particularly expansive and communal outdoor area that neighbours can enjoy when the weather permits. Within the building, there is also a secure bike store, in which the owner has a dedicated hook that can be re-assigned to the next resident.
________________________________________
Attributes
- Beautifully presented two-bedroom apartment in peaceful red sandstone cul-de-sac
- Located in leafy North Kelvinside, within walking distance of Glasgow University
- Sympathetically modernised interior with excellent use of period features
- Elegant living room with bay window and traditional fireplace
- Smart galley kitchen with window seat and integrated appliances
- Stylish principal bedroom with cast iron fireplace and thoughtful colour scheme
- En-suite shower room with marble basin and traditionally styled fittings
- Spacious second bedroom with lovely views over shared rear gardens
- Stunning internal bathroom with Victorian-inspired tiling and fluted glass
- Access to expansive shared garden grounds
- Secure bike storage within the building
- Perfect for professionals, creatives, students or academics
- Easy access to M8 motorway, ideal for commuters to Glasgow and Edinburgh
- Close to the Royal Conservatoire, Whisky Bond, and Civic House
- Updated heating system including column radiators and a new boiler.
- Double glazed windows.
More Details
EPC: C
Council Tax: C
Tenure: Freehold
Your home may be repossessed if you do not keep up repayments on your mortgage. There may be a fee for mortgage advice. The actual amount you pay will depend upon your circumstances.
Similar Properties
Looking To Sell Or Let?
Rettie is one of the most trusted and well-respected names in property. Our unrivalled market knowledge helps people from around the world buy, sell, let and develop property in Scotland and the North East of England - from city apartments and rural cottages to large townhouses and prime country homes, farms and estates. We deal with some of the most prestigious properties on the market, but provide the same exceptional standards of service and value for money to all our clients.
