3/1, 32 Strathblane Gardens, Anniesland, Glasgow, G13 1BF
Offers Over £235,000
Upper Floor Apartment
3 Bedrooms
2 Bathrooms
1 Reception Room
1,367 sq.ft
Communal Garden
Off Street Parking
Property Description
An immediately impressive and rarely available penthouse-style apartment forming part of a modern, well-kept development located in the popular Anniesland district. This superb three-bedroom apartment enjoys excellent natural light and offers spacious and versatile accommodation presented in walk in condition throughout.
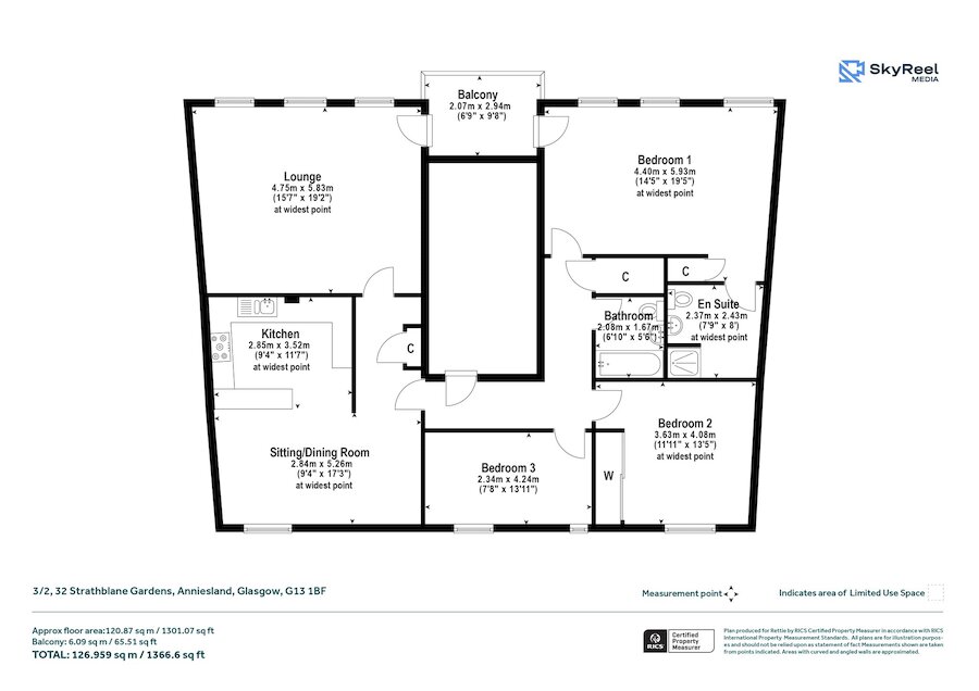
Occupying a prominent third floor position the internal layout includes a welcoming reception hall, a fabulous main lounge with direct access to a private south facing balcony. In addition, there is a spacious sitting/dining room, a modern, open plan kitchen, three spacious double bedrooms, an en suite shower room and a three-piece bathroom off the reception hall. Additional features include an attic/loft space, accessed via the reception hall that provides invaluable additional storage, an allocated parking space and a private, south facing balcony accessed from the lounge or bedroom one.
Strathblane Gardens is set within a highly regarded residential pocket of Anniesland, popular with professionals and families alike. The area offers a wealth of local amenities, including a wide selection of shops, cafés, and restaurants at Anniesland Cross and nearby Great Western Road. Excellent transport links include Anniesland Train Station and regular bus services providing easy access to Glasgow’s West End and City Centre. For outdoor enthusiasts, the open spaces of Dawsholm Park, the Forth and Clyde Canal, and Glasgow Botanic Gardens are all within easy reach.
Accommodation:
- Security entry system
- Communal entrance hall
- Welcoming reception hall with two useful storage cupboards off together with access to a large attic/loft space
- Superb main lounge with three windows to the front and door to private balcony
- Versatile sitting/dining room with window to the rear
- Impressive open plan kitchen complete with a range of base and wall unit, appliances and breakfasting bar
- Bedroom one with three windows to the front and door to balcony
- Stylish en suite shower comprising three-piece suite
- Bedroom two with window to the rear and fitted wardrobes
- Adaptable third bedroom with window to the rear
- Three-piece bathroom comprising bath, over bath shower, toilet and wash hand basin
- Gas central heating
- Double glazing
- Allocated parking space
- Additional visitor parking
- Well-maintained communal garden grounds
More Details
EPC: C
Council Tax: E
Tenure: Freehold
Your home may be repossessed if you do not keep up repayments on your mortgage. There may be a fee for mortgage advice. The actual amount you pay will depend upon your circumstances.
Similar Properties
Looking To Sell Or Let?
Rettie is one of the most trusted and well-respected names in property. Our unrivalled market knowledge helps people from around the world buy, sell, let and develop property in Scotland and the North East of England - from city apartments and rural cottages to large townhouses and prime country homes, farms and estates. We deal with some of the most prestigious properties on the market, but provide the same exceptional standards of service and value for money to all our clients.
