Ground Floor, 13 Belmont Crescent, Kelvinbridge, Glasgow, G12 8EU
Property Description
An attractive and substantial two-bedroom elevated ground floor conversion, occupying a prime position within an impressive curving blonde sandstone terrace, formed around spectacular semi-circular resident’s gardens, in Kelvinbridge – not far from The Botanic gardens. Benefiting from a south-easterly outlook, this elegant conversion enjoys excellent exposure to natural light and has the rare distinction of being the only townhouse on Belmont Crescent to feature rear-facing bay windows—overlooking the residents’ garden at the rear of Number 13.
Belmont Crescent is a highly desirable address, situated near the Botanic Gardens and just off Great Western Road in the West End of Glasgow. Renowned as one of the city’s finest examples of Victorian crescent architecture, the terrace was designed by architect John Honeyman and completed between 1869 and 1870. The graceful Classical-style homes are arranged in a sweeping curve around beautifully maintained residents’ pleasure gardens, complete with lawns, mature trees, and vibrant planting. According to record, the townhouses were originally constructed to a speculative standard, with buyers given freedom to complete their internal layouts to suit. It is thought that the first owner of Number 13 elected to make their property entirely unique by adding the rear-facing bay windows—a feature not found in any other home on the crescent.
The location is extremely convenient. A wide range of amenities on Great Western Road and Byres Road are within easy walking distance, with cafés, restaurants, independent shops, and transport links all close at hand. Kelvinbridge Underground is just a short stroll away, while the University of Glasgow is less than half a mile from the property, making this an ideal base for professionals, academics, or anyone keen to enjoy the very best of West End living.
The property is entered via a secure doorway with intercom system that leads into a well-maintained communal hallway, with lovely entact original features that set the tone for character found throughout the building.
Internally, this is a bright, elegant home, filled with character and offering generous, comfortable accommodation. Period features are complemented by neutral décor and high ceilings, with substantial window arrangements ensuring superb levels of natural light throughout.
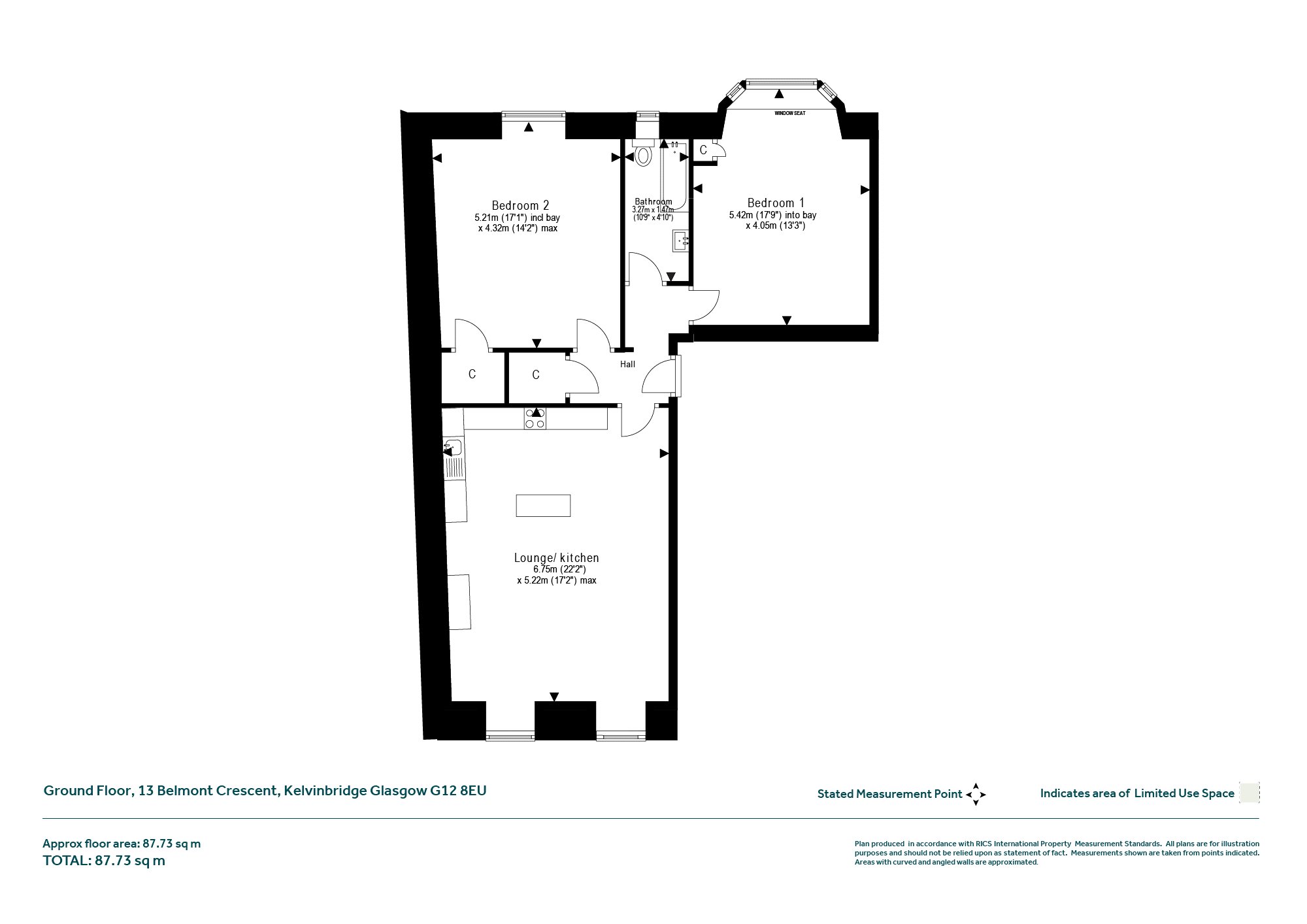
Once inside the apartment itself – which is the only residence upon this level within the building a broad entrance hall offers two storage cupboards and provides access to each of the principal apartments.
The heart of the home is a bright, front-facing open-plan living, dining, and kitchen area. Twin picture windows overlook the central pleasure gardens of Belmont Crescent, flooding the space with natural light and creating a perfect setting for both everyday living and entertaining.
There are two particularly spacious king-sized bedrooms, both of which are located to the rear and overlook the rear garden. The principal is of superb proportions and has a roomy cupboard. The second bedroom is a distinctive feature of this property: set to the rear, it is enhanced by a unique bay window which provides a charming seating area and offers outlooks across the enclosed residents’ garden.
The accommodation is completed by a well-proportioned bathroom, fitted with a white three-piece suite and shower over bath.
Attributes
- Attractive and substantial elevated ground floor conversion within an elegant blonde sandstone terrace
- Unique among Belmont Crescent homes as the only townhouse with rear-facing bay windows
- South-easterly orientation providing excellent levels of natural light
- Positioned within one of Glasgow’s finest Victorian crescents, designed by John Honeyman (1869–70)
- Overlooks beautifully maintained semi-circular residents’ pleasure gardens to the front
- Two particularly spacious king-sized bedrooms, including one with unique bay window seating area overlooking the rear gardens
- Bright open-plan living, dining, and kitchen with twin picture windows facing central gardens
- Retained period detailing, high ceilings, and neutral décor throughout
- Secure entry system leading to well-presented communal hallway with original features
- Within walking distance of the Botanic Gardens, Great Western Road, Byres Road, and Kelvinbridge Underground
- Less than half a mile from the University of Glasgow – ideal for professionals, academics, or students
More Details
EPC: C
Council Tax: D
Tenure: Freehold
Your home may be repossessed if you do not keep up repayments on your mortgage.
There may be a fee for mortgage advice. The actual amount you pay will depend upon your circumstances. The fee is up to 1% but a typical fee is 0.3% of the amount borrowed.
Similar Properties
Looking To Sell Or Let?
Rettie is one of the most trusted and well-respected names in property. Our unrivalled market knowledge helps people from around the world buy, sell, let and develop property in Scotland and the North East of England - from city apartments and rural cottages to large townhouses and prime country homes, farms and estates. We deal with some of the most prestigious properties on the market, but provide the same exceptional standards of service and value for money to all our clients.
