Property Description
A beautifully appointed, professionally extended traditional two-bedroom mid-terrace villa offering extremely comfortable, versatile family living space adjacent to Victoria Park & within minutes’ walk of numerous amenities in the desirable district of Victoria Park.
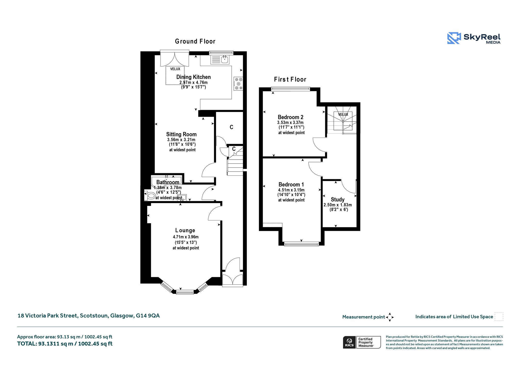
As you will see from the attached photographs, HD video & floorplan – this is a an extremely attractive family home which has been extended and upgraded throughout, resulting in attractive living quarters that are ready to be moved into and enjoyed instantly.
Internally the property has been carefully improved and meticulously maintained by the current owners who have opted for a bright, neutral colour scheme and a minimal approach to furnishing. As such the property has a modern, elegant interior in which traditional features have been skilfully blended with contemporary fixtures and finishes, which combine to create a comfortable and highly functional living space that will appeal to professional couples and growing families.
In brief the accommodation extends to; entrance hall with staircase leading off to upper level, front facing traditional bay window living room with shelved shallow press, fabulous open plan family kitchen which has been extended to create a particularly impressive main public space complete with doors to rear garden and Velux window over dining area. The main bathroom is positioned on the ground floor and features a contemporary white suite, stone coloured tiling and shower over bath. Downstairs cupboard.
The stairway with half landing leads on to the upper level where there are two spacious double bedrooms and a third room which is utilised as a home office.
In terms of private outdoor space the property has a front garden which is has mature hedging around its border and a gate providing access to a paved pathway to the front door. To the rear of the property is a good-sized enclosed family garden which is laid to a neat combination of low maintenance materials including concrete pavers, chipped sections and central lawn . A wonderful outdoor space for kids or pets to play in safely, or for intimate family bbqs when the weather permits.
Victoria Park Street is an attractive address of traditional stone-built homes, situated South of Victoria Park. The local area is home to a broad selection of amenities including everything from schools & supermarkets to restaurants, leisure facilities and of course the large expanse of local parkland, from which the address takes its name.
This beautiful family home is located just over 1.5 miles from Byres Road & as such is extremely popular with young professionals, couples or families who have outgrown an apartment and are in search of a traditional home with a private garden, while retaining close proximity to Glasgow’s West end. The area is hugely popular with healthcare professionals who work at the QEUH and prefer to walk or cycle to work – the home being just 1.5 miles from the hospital’s main entrance.
The address is extremely well-positioned for gaining quick access to public transport and major road networks, being minutes from the Clyde Tunnel & Clydeside Expressway and therefore ideal for those commuting throughout West Central Scotland or Edinburgh for business.
Attributes
Beautifully appointed, professionally extended traditional two-bedroom mid-terrace villa
Situated in the highly desirable Victoria Park district of Glasgow’s West End
Adjacent to Victoria Park and within minutes’ walk of excellent local amenities
Extensively upgraded and meticulously maintained throughout
Elegant interior combining traditional character with contemporary finishes
Spacious bay-windowed living room with feature press
Impressive open-plan family kitchen and dining area with Velux window and doors to garden
Modern ground-floor bathroom with white suite, stone-toned tiling and shower-over-bath
Two generous double bedrooms on upper level plus additional home office/study room
Front garden with mature hedging and paved path to entrance
Enclosed rear garden with lawn, paved and chipped areas — ideal for children, pets and outdoor dining
Approximately 1.5 miles from Byres Road and the Queen Elizabeth University Hospital
Excellent access to public transport, the Clyde Tunnel and Clydeside Expressway for commuting
More Details
EPC: C
Council Tax: D
Tenure: Freehold
Your home may be repossessed if you do not keep up repayments on your mortgage.
There may be a fee for mortgage advice. The actual amount you pay will depend upon your circumstances. The fee is up to 1% but a typical fee is 0.3% of the amount borrowed.
Similar Properties
Looking To Sell Or Let?
Rettie is one of the most trusted and well-respected names in property. Our unrivalled market knowledge helps people from around the world buy, sell, let and develop property in Scotland and the North East of England - from city apartments and rural cottages to large townhouses and prime country homes, farms and estates. We deal with some of the most prestigious properties on the market, but provide the same exceptional standards of service and value for money to all our clients.
